| Adres: | Koningin Wilhelminalaan 32, 4247 EN Kedichem |
| Prijs | € 685.000,- k.k. |
| Type object | Woonhuis, eengezinswoning, twee onder een kap woning |
| Perceeloppervlakte | 295 m² |
| Woonoppervlakte | 169 m² |
| Aanvaarding | In overleg |
Volledig gerenoveerd, uitgebouwd en klaar voor de volgende eigenaar! Deze twee-onder-een-kapwoning in een rustige straat verrast zodra je binnenstapt. In 2022 is de woning uitgebreid, verduurzaamd en volledig gerenoveerd, met oog voor detail en kwaliteit. Het resultaat is een huis dat aanvoelt als nieuw, maar mét karakter en volop ruimte. Op de begane grond vind je een ruime woonkamer, een open keuken en twee multifunctionele ruimtes. Op de verdiepingen zijn vier slaapkamers en twee badkamers aanwezig, wat het huis geschikt maakt voor verschillende woonwensen. Ook op het gebied van duurzaamheid zit je hier goed: energielabel A++, 15 zonnepanelen en een hybride warmtepomp zorgen voor comfortabel en energiezuinig wonen. Als kers op de taart kun je hier 2 auto's parkeren op eigen terrein! Kedichem is rustig en groen en ligt op korte afstand van Leerdam, Gorinchem en de A2. Scholen, sportvoorzieningen en dagelijkse voorzieningen zijn allemaal dichtbij. Wij adviseren je de brochure van deze woning te downloaden van onze website. Hierin tref je uitgebreide informatie met extra foto's evenals plattegronden en kadastrale gegevens.
Bij binnenkomst in de hal voelt het direct goed. De hal is strak afgewerkt met een visgraatvloer, warme wandkleuren en zwarte details die door de hele woning terugkomen. Het toilet is volledig betegeld en voorzien van een wandcloset en een fonteintje. Vanuit de hal loop je de keuken in. Zwarte fronten, composiet werkblad in marmeruitvoering, een centraal spoeleiland met barkrukken en AEG inbouwapparatuur. De inductiekookplaat, de afzuigkap die in de kastenwand is geïntegreerd en de marmerimitatie spatwand maken dit tot een keuken die helemaal af is. Het grote raam aan de voorzijde zorgt voor licht en zicht op straat. In open verbinding met de keuken staat de woon/eetkamer van circa 35 m². Aan de ene kant de zithoek met een houtkachel, ingebouwde wandkasten en een sfeer die uitnodigt om te blijven zitten. Aan de andere kant de eethoek, met doorzicht naar de keuken en naar de tuin. De uitbouw aan de achterzijde, afgewerkt met een lichtkoepel, geeft de ruimte een extra dimensie. De harmonicapui over de volledige breedte vouwt volledig open, waarna het terras gewoon onderdeel wordt van de woonkamer. Naast de woonkamer, bereikbaar via stijlvolle stalen deuren met glas, ligt een multifunctionele ruimte van circa 10 m². Nu ingericht als werk- en speelkamer, maar net zo geschikt als televisiekamer of thuiskantoor. Aansluitend is er een tweede ruimte van circa 16 m² met opstelling voor witgoed en een gootsteen, ideaal als bijkeuken.
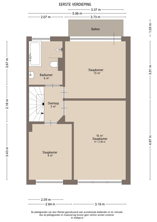
Via de houten open trap kom je op de eerste verdieping. Vanaf de overloop zijn drie slaapkamers en de badkamer bereikbaar. De ruime slaapkamer aan de voorzijde heeft toegang tot een balkon. De grootste slaapkamer ligt aan de achterzijde. Een ruime, lichte kamer met volop ruimte voor een tweepersoonsbed en kledingopslag. De derde slaapkamer ligt ook aan de achterzijde en is momenteel ingericht als kinderkamer, maar ook geschikt als werk- of logeerkamer. De badkamer op deze verdieping is functioneel en netjes afgewerkt met een ligbad, douche, toilet en wastafelmeubel, alles voorzien van zwarte kranen.
De tweede verdieping is de kers op de taart. Via de trap kom je op de overloop, die toegang geeft tot de masterbedroom en een berging. De kamer is voorzien van een ingebouwde open kledingkast, een dubbele wastafel op een zwart zwevend meubel, een verlichte ronde spiegel en een volledig nieuwe doucheruimte die in 2022 is aangelegd: een ruime inloopdouche met regendouche en zitbank, volledig betegeld in betonlook. Ook is er een separaat toilet.
De slaapkamer aan de voorzijde heeft een smal balkon op het zuiden.
De achtertuin is in 2022 geheel gerenoveerd. Aansluitend aan de grote pui ligt het terras met ruimte voor zowel een loungehoek als een eettafel. Naast het grasveld is de trampoline ingegraven, ideaal voor de kinderen. Achterin de tuin bevindt zich een berging met overkapping.
Voor technische kenmerken en bijzonderheden verwijzen wij je naar de brochure. Kedichem is een klein, pittoresk dorp aan de rivier de Linge, met ongeveer 900 inwoners. Het dorp heeft een landelijke en rustige sfeer, met veel natuur en recreatiemogelijkheden. De ligging langs de Linge maakt Kedichem bijzonder geschikt voor liefhebbers van watersport en buitenrecreatie. Hier kun je genieten van wandelen, fietsen en varen langs de rivier. Het dorp beschikt over een basisschool, een dorpshuis en enkele sportfaciliteiten, waaronder een tennisbaan en een zwembad. Voor dagelijkse boodschappen en middelbare scholen kun je terecht in het nabijgelegen Leerdam, dat op slechts 10 minuten rijden ligt. Dankzij de nabijheid van de A15 en A27 zijn ook steden zoals Utrecht en Rotterdam snel bereikbaar. Kedichem biedt een rustige, landelijke woonomgeving voor gezinnen en natuurliefhebbers die graag in de buurt van water en natuur willen wonen. Het is een plek waar je echt tot rust kunt komen, zonder ver van stedelijke voorzieningen te zijn. Interesse gewekt? Schakel meteen je eigen aankoopmakelaar in. Jouw aankoopmakelaar komt op voor jouw belang en bespaart je tijd, geld en zorgen.
| Referentienummer | 07054 |
| Vraagprijs | € 685.000,- k.k. |
| Inrichting | Niet gestoffeerd |
| Inrichting | Niet gemeubileerd |
| Aanvaarding | In overleg |
| Laatste wijziging | Maandag 4 mei 2026 |
| Type object | Woonhuis, eengezinswoning, twee onder een kap woning |
| Soort bouw | Bestaande bouw |
| Bouwperiode | 1972 |
| Dakbedekking | Bitumen Dakpannen |
| Type dak | Zadeldak |
| Isolatievormen | Dakisolatie Dubbel glas HR-glas Muurisolatie |
| Perceeloppervlakte | 295 m² |
| Woonoppervlakte | 169 m² |
| Woonkameroppervlakte | 45 m² |
| Keukenoppervlakte | 21 m² |
| Inhoud | 586 m³ |
| Oppervlakte externe bergruimte | 6 m² |
| Oppervlakte gebouwgebonden buitenruimte | 3 m² |
| Balkonoppervlakte | 3 m² |
| Aantal bouwlagen | 3 |
| Aantal kamers | 6 (waarvan 4 slaapkamers) |
| Aantal badkamers | 1 (en 2 aparte toiletten) |
| Ligging | Aan rustige weg In centrum Nabij school |
| Type | Voortuin |
| Oriëntering | Zuiden |
| Staat | Goed onderhouden |
| Tuin 2 - Type | Achtertuin |
| Tuin 2 - Hoofdtuin | Ja |
| Tuin 2 - Oriëntering | Noorden |
| Tuin 2 - Heeft een achterom | Ja |
| Tuin 2 - Staat | Goed onderhouden |
| Energielabel | A++ |
| CV ketel | Vaillant VHR / Quatt Warmtepomp |
| Warmtebron | Gas |
| Bouwjaar | 2004 |
| Combiketel | Ja |
| Eigendom | Eigendom |
| Aantal parkeerplaatsen | 2 |
| Warm water | CV-ketel |
| Verwarmingssysteem | Centrale verwarming Houtkachel Vloerverwarming (gedeeltelijk) Warmtepomp |
| Ventilatie methode | Natuurlijke ventilatie |
| Keukenvoorzieningen | Inbouwapparatuur Spoeleiland |
| Badkamervoorzieningen | Inloopdouche Ligbad Toilet Wastafelmeubel |
| Heeft een balkon | Ja |
| Glasvezelaansluiting aanwezig | Ja |
| Tuin aanwezig | Ja |
| Heeft rolluiken | Ja |
| Heeft schuur/berging | Ja |
| Heeft zonnepanelen | Ja |
| Kadastrale aanduiding | Kedichem B 2977 |
| Perceeloppervlakte | 34 m² |
| Omvang | Geheel perceel |
| Kadastrale aanduiding | Kedichem B 2433 |
| Perceeloppervlakte | 261 m² |
| Omvang | Geheel perceel |