Beschrijving
Sfeervolle jaren ’30 eengezinswoning met royale tuin én toplocatie in Krommenie!
Op zoek naar een karakteristieke woning waarin je zo kunt intrekken? Deze jaren ’30 eengezinswoning heeft het allemaal: een lichte woonkamer met erker, een heerlijke woonkeuken in de uitbouw, drie ruime slaapkamers én een fijne voor- én achtertuin. Dit alles in een rustige, kindvriendelijke wijk op loopafstand van het centrum en het station!
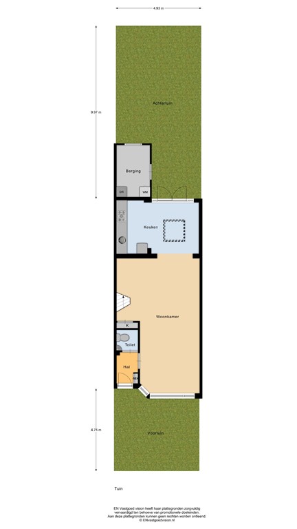
De woonkamer is een echte sfeermaker: dankzij de erker valt het licht prachtig naar binnen en de uitbouw met lichtkoepel zorgt voor extra ruimte en een mooi open leefgedeelte. De openslaande deuren naar de tuin maken het woongeluk compleet, binnen en buiten lopen hier moeiteloos in elkaar over.
De ligging is ideaal. Aan het begin van de straat vind je een speeltuintje en in de directe omgeving liggen scholen, sportclubs en het populaire zwembad De Crommenije. Het gezellige dorpscentrum van Krommenie biedt een divers aanbod aan winkels en horeca, en ook het Rosariumplein ligt om de hoek voor dagelijkse boodschappen. Het station Krommenie-Assendelft is op loopafstand: binnen een halfuur sta je op Amsterdam Centraal. Met de auto zijn de A8 en A9 uitstekend bereikbaar.
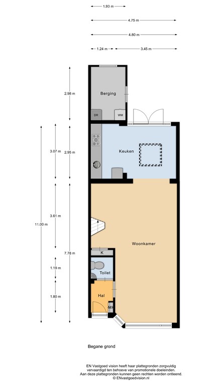
Begane grond
Entree, hal met meterkast, toilet en toegang tot de woonkamer. De lichte living heeft een karakteristieke erker aan de voorzijde en een open keuken met granieten aanrechtblad aan de achterzijde. De keuken is voorzien van combi magnetron, gaskookplaatt, vaatwasser en afzuigkap. De uitbouw is voorzien van een lichtkoepel en biedt ruimte aan een woonkeuken. Via de openslaande deuren stap je zo de achtertuin in. In de aangebouwde berging bevinden zich de aansluitingen voor wasmachine en droger.
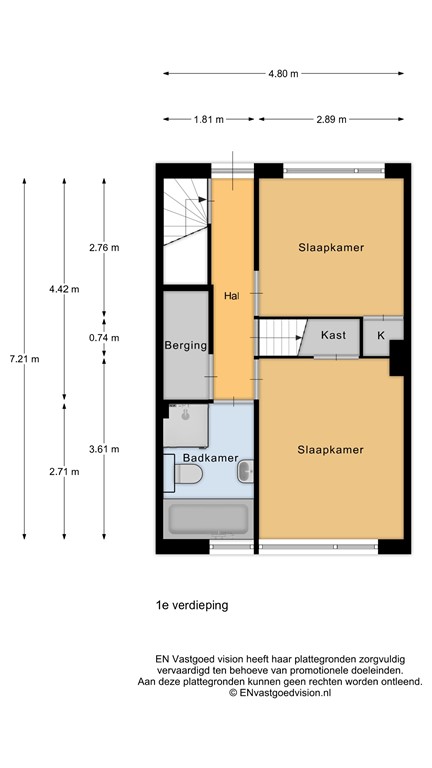
Eerste verdieping
Overloop met toegang tot twee ruime slaapkamers. De nette badkamer is uitgerust met een ligbad, douche, toilet en wastafelmeubel.
Tweede verdieping
Ruime voorzolder met bergruimte achter de knieschotten. Vanuit hier bereik je de derde slaapkamer, vergroot dankzij een dakkapel. De cv-installatie is keurig weggewerkt in een ingebouwde kast.
Bijzonderheden
• Woonoppervlakte 104 m2
• Inhoud 370 m3
• Energielabel C
• Spouwmuur isolatie 3 jaar geleden
Plattegronden
177761245_agavestraat_11_tuin_20251008_8386e6.jpg
177761245_agavestraat_11_begane_grond_20251008_cabb88.jpg
177761245_agavestraat_11_1e_verdieping_20251008_97a6d3.jpg
177761245_agavestraat_11_2e_verdieping_20251008_a8a9c8.jpg