Beschrijving

Gezinswoning met drie slaapkamers, zonnige tuin en eigen garage

n de rustige en geliefde Brugemeester Loysonstraat in Landgraaf staat deze twee-onder-een-kapwoning met garage. Het huis biedt een prettige indeling met een doorzonwoonkamer, open keuken en drie slaapkamers. Praktische extra’s zoals grotendeels kunststof kozijnen met HR++ glas, rolluiken en zes zonnepanelen zorgen voor extra comfort en gebruiksgemak. De nette voortuin, de handige provisiekelder en de achtertuin met overkapping en veel privacy maken het geheel compleet.

De ligging is bovendien bijzonder gunstig: op loopafstand vind je supermarkten, basisscholen en sportvoorzieningen. Ook het gezellige winkelcentrum van Landgraaf en diverse eetgelegenheden zijn snel bereikbaar. Dankzij de nabijgelegen uitvalswegen sta je binnen enkele minuten in Heerlen of Kerkrade en ben je via de A76 of N281 snel onderweg richting Maastricht, Aken of Eindhoven.

Indeling

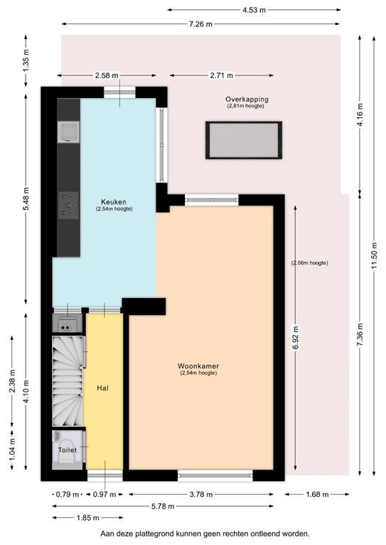
De voortuin is netjes en onderhoudsvriendelijk aangelegd. Via de entree met tegelvloer kom je in de ontvangsthal met garderobe, meterkast (vernieuwd in 2016) en toegang tot de provisiekelder. In deze kelder bevinden zich tevens de witgoedaansluitingen. Daarnaast is er op de begane grond een separaat toilet aanwezig, uitgerust met staand closet en fonteintje. De woonkamer is een fijne doorzonkamer met veel daglicht en een laminaatvloer. Dankzij de rolluiken is er eenvoudig een gezellige sfeer en privacy te creëren. De woonkamer loopt door in een uitbouw, waar de open keuken is gesitueerd. De keuken is eveneens voorzien van laminaatvloer en is zowel via de woonkamer als via de hal bereikbaar. Hier vind je volop kastruimte en inbouwapparatuur: keramische kookplaat, afzuiging, heteluchtoven, koelkast, vriezer en een vaatwasser (nieuw in 2025). Een muurkast biedt plaats aan de cv-installatie. Vanuit de keuken is er toegang tot de achtertuin.

Eerste verdieping

De trap met tapijt leidt naar de overloop met laminaatvloer. Op deze verdieping bevinden zich drie slaapkamers, allen voorzien van laminaatvloeren, rolluiken en Duco Dauerlüftung. Dankzij het daglicht zijn de kamers prettig in gebruik, of het nu als slaapkamer, logeer- of werkkamer is.

De badkamer (2011) is modern en compleet: geheel betegeld, met een zwevend badkamermeubel met wasbak en spiegel, een toilet en een inloopdouche met glazen wand. De badkamer is compact maar compleet ingericht met een douchecabine, wastafel, zwevend toilet en raam met Dauerlüftung en rolluik. Via de kastruimte in de kleine slaapkamer is middels een losse trap de bergzolder te bereiken.

Tuin

De achtertuin is onderhoudsvriendelijk aangelegd en biedt verrassend veel ruimte en privacy. Direct achter de woning bevindt zich een royaal terras met een overkapping, voorzien van een lichtkoepel. Hierdoor kun je hier niet alleen tijdens zonnige dagen, maar ook bij minder weer heerlijk buiten zitten. Verder is er voldoende plek voor groen of speelruimte en staat er een praktische schuur voor extra bergruimte. Via de tuin bereik je de ruime garage met sectionaalpoort, die ook toegankelijk is vanaf de achterzijde van het perceel.

Bijzonderheden

Bijzonderheden:

- Twee-onder-een-kapwoning met garage
- Energielabel C
- Grotendeels kunststof kozijnen met HR++ glas
- Rolluiken aanwezig
- 6 zonnepanelen
- Meterkast vernieuwd in 2016
- 3 slaapkamers
- Garage met sectionaalpoort bereikbaar via achterzijde

*** Opgegeven tuinmaten zijn circa maten ***

Kenmerken