Beschrijving

Instapklare tussenwoning in het centrum van Leerdam!

In het centrum van Leerdam, aan een autoluw pad, ligt deze verrassend ruime en goed onderhouden tussenwoning uit 1984 met een lichte woonkamer en moderne keuken uit 2021. Op de 1e verdieping zijn 2 ruime slaapkamers en een badkamer beschikbaar en de 2e verdieping biedt een extra slaap/-werkkamer.
Vanuit de voorzijde van de woning heb je uitzicht op het Bridgemuseum en de watertoren.
Aan de achterzijde van de woning ligt de tuin met een sfeervolle overkapping en ook aan de voorzijde is plaats voor een zitje en er is een berging.

Wij adviseren je de brochure van deze woning te downloaden van onze website. 
Hierin tref je uitgebreide informatie met extra foto's evenals plattegronden en kadastrale gegevens.

Indeling

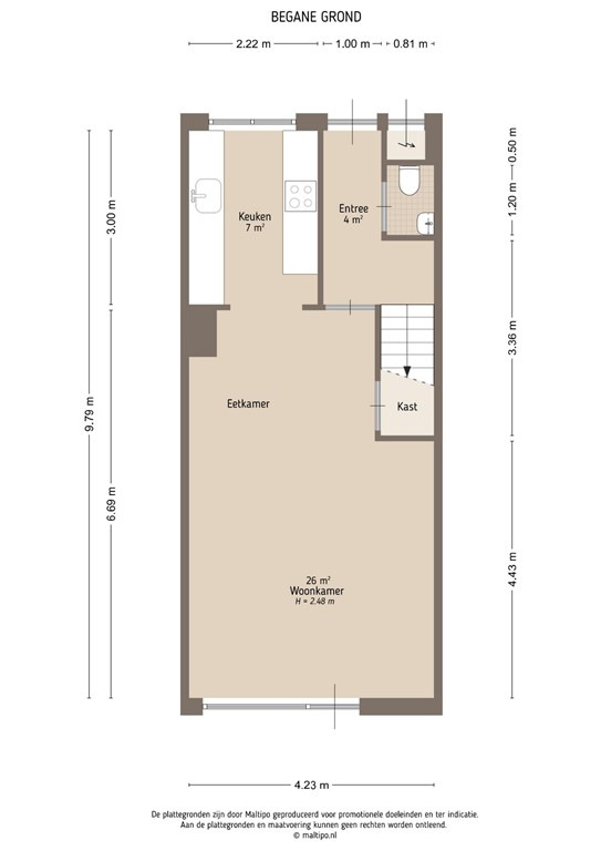
Je komt binnen in de hal met garderobe, een toilet met fonteintje en de trap naar de 1e verdieping. Via een deur met glaspanelen loop je de sfeervolle woonkamer in met een laminaatvloer en veel lichtinval door het grote raam en de tuindeur aan de achterzijde. Er is extra bergruimte in de trapkast.
De lichte moderne keuken ligt aan de voorzijde en is compleet uitgerust met een inductiekookplaat met afzuigkap, oven, vaatwasser, koelkast en vriezer. 
Terwijl je kookt, kijk je uit op de voortuin en richting het Bridgemuseum.

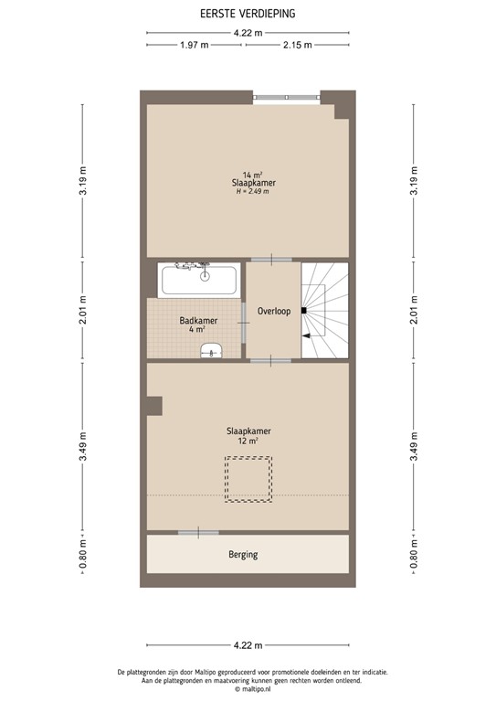
Eerste verdieping

Op de eerste verdieping zijn twee ruime slaapkamers en een badkamer beschikbaar. 
Slaapkamer I ligt aan de voorzijde en kijkt uit op de tuin van het Bridgemuseum en de watertoren. Slaapkamer II ligt aan de achterzijde en beschikt over een groot dakraam voor de mooie lichtinval.
De moderne badkamer is uitgevoerd in zwart-wit en beschikt over een ligbad met douche, een wastafelmeubel en een grote kast.

Tweede verdieping

Een vaste open trap brengt je naar de zolderverdieping. 
De ruimte is geschikt als werk/- en slaapkamer. Hier is ook de aansluiting voor de wasmachine, droger en is de Cv-installatie geplaatst. Er is voldoende bergruimte achter de knieschotten.

Tuin

De achtertuin is verzorgd aangelegd met bestrating, een groen gazon en een  overkapping achterin de tuin. Hier zit je beschut en kun je in alle seizoenen genieten. 
De voortuin ligt op het oosten en daar kan je in de ochtend genieten van een kopje koffie.

Bijzonderheden

Voor technische kenmerken en bijzonderheden verwijzen wij je naar de brochure. 

Leerdam is een levendige stad met een rijke historie en staat bekend als dé glasstad van Nederland. Het centrum biedt een divers winkelaanbod, gezellige terrassen, supermarkten en een NS-station met directe verbinding naar Geldermalsen en Dordrecht. Scholen, sportverenigingen en medische voorzieningen zijn in de buurt aanwezig. En dankzij de ligging aan de Linge, de historische stadswal en diverse wandelroutes woon je hier midden in de natuur, met het comfort van de stad om de hoek.

Interesse gewekt? Schakel meteen je eigen aankoopmakelaar in.
Jouw aankoopmakelaar komt op voor jouw belang en bespaart je tijd, geld en zorgen.

Kenmerken