| Prijs | € 595.000,- k.k. |
| Type object | Woonhuis, eengezinswoning, half vrijstaande woning |
| Perceeloppervlakte | 250 m² |
| Woonoppervlakte | 102 m² |
| Aanvaarding | In overleg |
| Status | Verkocht |
Sta eens stil voor dit huis en voel de sfeer van de wijk — rustig, groen en vriendelijk. Je hoort de vogels, ziet de kinderen spelen, en merkt meteen: dit is een plek waar je wilt wonen. De gevel heeft die authentieke uitstraling die je absoluut nieuwsgierig maakt. En terecht, want wat je binnen aantreft overtreft alle verwachtingen. Achter deze voordeur schuilt namelijk verrassend veel ruimte, warmte en mogelijkheden. Het is een half vrijstaande woning met een giga achtertuin, een "schuur" welke makkelijk kan worden veranderd in nog meer woonoppervlak, 3 prima slaapkamers en de jaren 30 details zijn ook nog aanwezig. Naast de gigantische woonkamer van 42m2 (zonder keuken en bijkeuken), de authentieke open keuken met moderne apparatuur is er een achtertuin van dik 100m2....Dat lees je goed. Dit is nog zonder de "schuur". Deze woning ligt in de populaire en karaktervolle wijk Kerkwijk – een van de fijnste plekken van Leiderdorp om te wonen. Kerkwijk staat bekend om haar rustige straten, groene lanen en vriendelijke buurtgevoel. Hier vind je die gemoedelijke sfeer waar buren elkaar nog kennen en kinderen veilig buiten kunnen spelen. De wijk is perfect gelegen: centraal, maar toch heerlijk rustig. Op loopafstand vind je winkels voor de dagelijkse boodschappen, basisscholen, speeltuintjes en sportverenigingen. Ook het gezellige oude dorp van Leiderdorp met haar leuke horeca en ambachtelijke winkels ligt vlakbij. Voor natuurliefhebbers is dit een ideale plek: je wandelt of fietst zó naar het park De Houtkamp of de Kagerplassen. Een heerlijke omgeving om te ontspannen, te sporten of gewoon even buiten te zijn. Daarnaast is de bereikbaarheid uitstekend. Binnen een paar minuten rijd je op de A4 of N11, waardoor steden als Leiden, Den Haag, Amsterdam en Alphen aan den Rijn eenvoudig bereikbaar zijn. En ook met het openbaar vervoer is de wijk goed ontsloten. Van deze woning is ook een bouwkundige keuring en een eigen website beschikbaar. Url van de website is straatnaam, dan het huisnummer en dan .nl. Behalve de foto’s op groot formaat zijn er ook allerlei handige tools. De relevante documentatie kan je hier vinden.
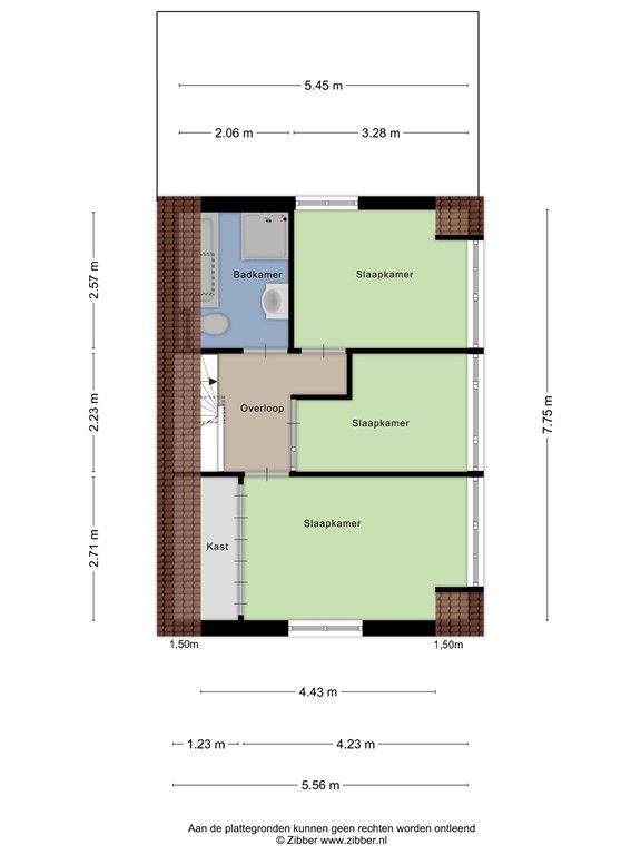
We komen binnen in de hal, waar direct de kenmerkende jaren ’30 details opvallen: de fraaie deurkozijnen, de brede trapopgang en de details op de trapleuning. De hal is royaal van formaat en voorzien van een uitgebreide meterkast, handige trapkast en een net, ruim toilet met een fonteintje. En dan de woonkamer… wauw. Wat een licht, wat een ruimte — maar liefst 42 m² aan woonplezier en dat is zonder de keuken en de bijkeuken! De erker aan de voorzijde zorgt voor een charmant uitzicht en prachtige lichtinval. De houtkachel (ter overname) brengt direct sfeer en warmte, terwijl de authentieke open keuken met moderne apparatuur de perfecte balans biedt tussen karakter en comfort. Dankzij de latere aanbouw geniet je van extra leefruimte: een plek waar je echt alle kanten mee op kunt. Richt het in als royale eethoek, een speelruimte, of misschien zelfs een rustige werkplek. Bij de bezichtiging ga je pas echt ervaren hoe groot de woonkamer is, want wij zien dat niet zo vaak namelijk. Vanuit de woonkamer openen de dubbele tuindeuren naar de gigantische achtertuin. En die tuin… die is echt uitzonderlijk! Meer dan 100 m² eigen buitenruimte waar je volledig kunt ontspannen. Hier kun je loungen in de zon, tuinieren, barbecueën met vrienden of een zwembad plaatsen voor de kinderen. Achterin de tuin staat een grote schuur — ideaal voor opslag, hobby’s of als werkruimte. En het mooiste? Deze schuur biedt de mogelijkheid om te worden verbouwd tot volwaardige woonruimte, gastenverblijf of atelier. Een unieke kans voor wie nét dat beetje extra woonruimte of werkruimte zoekt. Grenzend aan de woonkamer vind je ook nog een praktische bijkeuken met ruimte voor de wasmachine, de cv-ketel en een tweede toegang naar de tuin. We gaan naar boven. Op de eerste etage kom je via de overloop opnieuw de charme van de jaren ’30 tegen. Er zijn drie slaapkamers, waarvan twee met dakkapellen die voor veel licht en extra ruimte zorgen. De master bedroom heeft een mooie vaste kast en voelt warm en comfortabel aan. Alles is netjes en strak afgewerkt. De badkamer is keurig en compleet, voorzien van een ligbad, aparte douche, tweede toilet en een wastafel met meubel. Tot slot is er nog een kleine vliering voor extra bergruimte. Kortom: Dit is een huis dat alles heeft: ruimte, karakter, een heerlijke sfeer en een tuin die je zelden tegenkomt. Een plek waar binnen en buiten perfect in balans zijn — klaar voor een nieuw hoofdstuk met nieuwe herinneringen. Zie jij jezelf hier al wonen? Dan is dit het moment. Kom kijken, laat je verrassen en voel hoe dit huis jou welkom heet.
- Oplevering ca half december - Gigantische achtertuin met separate werkplek - Veel living op de bgg - Bouwkundige keuring is via hoogmadeseweg28.nl te downloaden
| Referentienummer | 05981 |
| Vraagprijs | € 595.000,- k.k. |
| Status | Verkocht |
| Aanvaarding | In overleg |
| Laatste wijziging | Woensdag 3 december 2025 |
| Type object | Woonhuis, eengezinswoning, half vrijstaande woning |
| Soort bouw | Bestaande bouw |
| Bouwperiode | 1926 |
| Dakbedekking | Bitumen Dakpannen |
| Type dak | Zadeldak |
| Isolatievormen | Dakisolatie Dubbel glas Spouwmuren |
| Perceeloppervlakte | 250 m² |
| Woonoppervlakte | 102 m² |
| Inhoud | 360 m³ |
| Oppervlakte externe bergruimte | 18 m² |
| Aantal bouwlagen | 2 |
| Aantal kamers | 4 (waarvan 3 slaapkamers) |
| Aantal badkamers | 1 (en 1 apart toilet) |
| Ligging | Aan rustige weg Dichtbij openbaar vervoer In woonwijk Nabij school Nabij snelweg Nabij winkelcentrum Open ligging |
| Type | Achtertuin |
| Hoofdtuin | Ja |
| Oriëntering | Zuidoost |
| Heeft een achterom | Ja |
| Staat | Normaal |
| Tuin 2 - Type | Voortuin |
| Tuin 2 - Oriëntering | Noord west |
| Tuin 2 - Heeft een achterom | Ja |
| Tuin 2 - Staat | Normaal |
| Energielabel | D |
| CV ketel | Vaillant Ecotec Plus |
| Warmtebron | Gas |
| Bouwjaar | 2013 |
| Combiketel | Ja |
| Eigendom | Eigendom |
| Warm water | CV-ketel |
| Verwarmingssysteem | Centrale verwarming Houtkachel |
| Ventilatie methode | Natuurlijke ventilatie |
| Keukenvoorzieningen | Inbouwapparatuur |
| Badkamervoorzieningen | Douche Ligbad Toilet Wastafel Wastafelmeubel |
| Heeft kabel-tv | Ja |
| Heeft een rookkanaal | Ja |
| Tuin aanwezig | Ja |
| Telefoonaansluiting aanwezig | Ja |
| Beschikt over een internetverbinding | Ja |
| Heeft schuur/berging | Ja |
| Heeft een dakraam | Ja |
| Heeft zonwering | Ja |
| Kadastrale aanduiding | Leiderdorp B 976 |
| Perceeloppervlakte | 156 m² |
| Omvang | Geheel perceel |
| Eigendomsituatie | Eigen grond |
| Kadastrale aanduiding | Leiderdorp B 998 |
| Perceeloppervlakte | 94 m² |
| Omvang | Geheel perceel |
| Eigendomsituatie | Eigen grond |