| Prijs | € 635.000,- k.k. |
| Type object | Woonhuis, eengezinswoning, tussenwoning |
| Perceeloppervlakte | 135 m² |
| Woonoppervlakte | 119 m² |
| Aanvaarding | In overleg |
| Status | Verkocht |
Hier loop je een huis binnen dat klopt. Alles is af. Luxe, modern en tot in detail verzorgd – op een fijne locatie met vrij uitzicht aan de voorzijde. We heten je van harte welkom op de Kom van Aaiweg 11 Leiderdorp. Wij durven te zeggen..... dit is absoluut jouw thuis als je van jaren 30, ruimte, details, sfeer en een populaire locatie (Kerkwijk) houdt. De woning zelf is luxe, modern en tot in detail afgewerkt. Daarnaast ook nog energiezuinig door het B label. Naast een uitgebouwde woonkamer van circa 12 meter diep zijn (ja dat lees je goed) is aan alles gedacht. Dankzij ook de breedte van 5 meter is het een huis dat echt anders aanvoelt dan gemiddeld. De stalen deuren, houten vloer en strakke afwerking maken het geheel stijlvol en warm. De luxe open keuken is compleet uitgerust en perfect verbonden met de eetruimte. Vergeet de openslaande deuren niet aan de achterkant. Die brengen je naar de zonnige achtertuin met schuur en achterom. Met momenteel 3 slaapkamers, maar eenvoudig uit te breiden naar 4 of zelfs 5 slaapkamers, is dit een flexibel gezinshuis in een luxe jasje. Wat te denken van de badkamer. Modern en luxe uitgevoerd en voelt als een kleine wellness. Conclusie: Alles in deze woning is strak, modern en instapklaar. Locatie is natuurlijk de populaire Kerkwijk. Om de hoek van scholen, winkels, natuur en uitvalswegen zijn binnen 5 minuten bereikbaar. Sporten is aan de overkant of je loopt gewoon even de polder in. Van deze woning is ook een eigen website beschikbaar. Url van de website is straatnaam, dan het huisnummer en dan .nl. Behalve de foto’s op groot formaat zijn er ook allerlei handige tools. De relevante documentatie kan je hier vinden. Je kan ook zelf je afspraak maken via onze website of bv funda. Wel zo makkelijk.
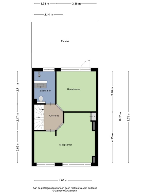
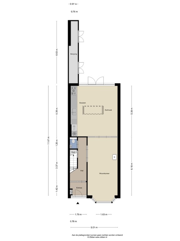
Je komt aan bij de Kom van Aaiweg 11 en ziet direct dat het ruim is opgezet. Zie dat vrij uitzicht aan de voorzijde en draai je even om naar het huis. We gaan via de verzorgde voortuin naar binnen. Hier stap je de vestibule in met de gave doorraaideur en daarachter de lange gang welke is voorzien van een trapkast en modern hangend toilet met fontein. Vergeet je de paneeldeuren en de originele trapopgang niet in je op te nemen? Echt heel mooi dat dit er nog in zit. Door naar de woonkamer… wauw. Dit is écht een parel. Dankzij de uitbouw is de ruimte vanaf de erker maar liefst circa 12 meter diep tot de openslaande deuren naar de tuin. Daar is menig eigenaar in de buurt vast jaloers op. Wat een lengte, wat een licht en wat een afwerking. De uitbouw is zo’n tien jaar geleden gerealiseerd, maar oogt alsof het gisteren is gedaan. De voorkamer is diep, strak en geeft je een heerlijk vrij uitzicht over het parkje aan de voorzijde – Hierdoor heb je dus ook heel veel daglicht toetreding naar binnen. De sfeer is perfect in balans. De houtkachel (ter overname) geeft net dat extra warme accent, al is het (isolatie)comfort in dit huis sowieso al hoog. Via prachtige stalen deuren wordt de ruimte subtiel verdeeld in een voor- en achterkamer, met een mooie houten vloer die alles verbindt. Achterin bevindt zich de luxe, moderne open keuken. Volledig uitgerust met alle denkbare inbouwapparatuur: koel-vriescombinatie, oven, vaatwasser, 5-pits gaskookplaat, afzuigkap en veel lades. Alles klopt hier – praktisch én stijlvol. Let vooral dus op de breedte: maar liefst 5 meter. Geïsoleerd van binnenuit en een (eet)ruimte waar veel mensen van dromen. Via de openslaande deuren stap je zo de zonnige achtertuin in, gelegen op het noordwesten. Circa 30 m², met achterom en een schuur voorzien van elektra. Een fijne plek om lang buiten te zitten met zon in de namiddag en de avond. Op naar de eerste etage. Ook boven ervaar je ruimte en luxe. De verdieping telt nu twee slaapkamers (voorheen drie) en heeft werkelijk een schitterende badkamer. Een echte wellness-sfeer met een hangend toilet, een breed wastafelmeubel en een diepe inloopdouche. De voorslaapkamer was oorspronkelijk opgesplitst in twee kamers. De huidige bewoners hebben hier een stijlvolle en-suite kledingruimte van gemaakt, echt heel gaaf. Met een eenvoudige wand is hier weer een extra kamer te creëren. De tweede slaapkamer aan de achterzijde is strak afgewerkt, heerlijk licht (groot genoeg voor minimaal een tweepersoonsbed) en biedt toegang tot het platte dak van de uitbouw. Let je ook weer op alle details wat dit huis zo bijzonder maakt? Door naar de zolderverdieping. Deze bestaat nu uit een ruime voorzolder met de cv-opstelling (Intergas HRE, 2016), de wasmachineaansluiting, kastruimte en veel extra bergruimte. Daarnaast is er een grote voorslaapkamer met een dakkapel. Ook hier zie je weer dat alles strak en goed is afgewerkt. Op zolder zijn nog toekomstmogelijkheden: een vierde slaapkamer is eenvoudig te realiseren of de voorslaapkamer te vergroten dmv een grotere dakkapel. Natuurlijk horen daar wel de betreffende vergunningen bij. Kortom: zoek je een luxe, modern en instapklaar huis met een uitgebouwde woonkamer, luxe keuken en modern en luxe sanitair en maar liefst 3 tot 5 slaapkamers? Dan is dit jouw huis. Hier hoef je niets meer te doen – alleen nog wonen en genieten.
- Oplevering begin juni - Energielabel B - Luxe modern en strak afgewerkt
| Referentienummer | 05999 |
| Vraagprijs | € 635.000,- k.k. |
| Status | Verkocht |
| Aanvaarding | In overleg |
| Laatste wijziging | Donderdag 5 maart 2026 |
| Type object | Woonhuis, eengezinswoning, tussenwoning |
| Soort bouw | Bestaande bouw |
| Bouwperiode | 1940 |
| Dakbedekking | Bitumen Dakpannen |
| Type dak | Zadeldak |
| Isolatievormen | Dakisolatie Dubbel glas HR-glas Muurisolatie Spouwmuren Vloerisolatie Volledig geïsoleerd |
| Perceeloppervlakte | 135 m² |
| Woonoppervlakte | 119 m² |
| Inhoud | 423 m³ |
| Oppervlakte externe bergruimte | 6 m² |
| Aantal bouwlagen | 3 |
| Aantal kamers | 5 (waarvan 3 slaapkamers) |
| Aantal badkamers | 1 (en 1 apart toilet) |
| Ligging | Aan rustige weg Dichtbij openbaar vervoer In woonwijk Nabij school Nabij snelweg Nabij winkelcentrum Open ligging |
| Type | Achtertuin |
| Hoofdtuin | Ja |
| Oriëntering | Noord west |
| Heeft een achterom | Ja |
| Staat | Prachtig aangelegd |
| Tuin 2 - Type | Voortuin |
| Tuin 2 - Oriëntering | Zuidoost |
| Tuin 2 - Staat | Normaal |
| Energielabel | B |
| CV ketel | Intergas HRE |
| Warmtebron | Gas |
| Bouwjaar | 2016 |
| Combiketel | Ja |
| Eigendom | Eigendom |
| Warm water | CV-ketel |
| Verwarmingssysteem | Centrale verwarming Houtkachel |
| Keukenvoorzieningen | Inbouwapparatuur |
| Badkamervoorzieningen | Inloopdouche Toilet Wastafel Wastafelmeubel |
| Heeft kabel-tv | Ja |
| Heeft een rookkanaal | Ja |
| Glasvezelaansluiting aanwezig | Ja |
| Tuin aanwezig | Ja |
| Telefoonaansluiting aanwezig | Ja |
| Beschikt over een internetverbinding | Ja |
| Heeft schuur/berging | Ja |
| Heeft een dakraam | Ja |
| Kadastrale aanduiding | Leiderdorp A 4337 |
| Perceeloppervlakte | 135 m² |
| Omvang | Geheel perceel |
| Eigendomsituatie | Eigen grond |