Beschrijving

Soms klopt het gewoon. De hoogte, het licht, het uitzicht — en het gevoel dat je hier elke dag nét iets rustiger thuiskomt. Dit goed ingedeelde 4-kamerappartement op de 6e etage combineert ruimte en licht met een verrassend vrij uitzicht over groen en water. Een plek waar wonen prettig en overzichtelijk aanvoelt. Er moet wel even geklust worden om echt lekker te wonen! 

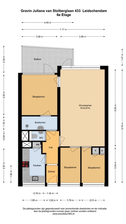
De woonkamer is royaal en licht, met grote raampartijen die de ruimte open en rustig maken. Hier heb je alle vrijheid om een fijne zithoek te creëren en een eettafel te plaatsen waar je echt kunt zitten — of dat nu met vrienden is of gewoon met een kop koffie aan het einde van de dag. Vanuit de woonkamer loop je direct door naar het balkon: een heerlijke buitenplek op hoogte, met weinig inkijk en uitzicht dat elke dag anders is. Groen, water en lucht — het gevoel van ruimte is hier continu aanwezig.

De woning beschikt over drie slaapkamers, praktisch en prettig van formaat. Ideaal voor een gezin, maar ook perfect als je thuiswerkt, een hobbyruimte zoekt of graag een logeerkamer hebt. De kamers zijn licht en vormen een fijne, rustige basis om helemaal naar eigen smaak in te richten.
De keuken is functioneel opgezet en biedt alles wat je nodig hebt voor het dagelijks gebruik. De badkamer en het separate toilet zijn centraal in de woning gelegen. Alles is redelijk onderhouden maar biedt een solide basis voor wie het stap voor stap wil moderniseren.

Ook het complex zelf voelt verzorgd aan. De algemene ruimtes zijn ruim en licht en dragen bij aan een prettige woonbeleving. Daarnaast is er een externe berging op de begane grond — ideaal voor fietsen en extra spullen.

De omgeving
De Gravin Juliana van Stolberglaan staat bekend om haar combinatie van ruimte, groen en bereikbaarheid. Je woont hier rustig, met water en groen in de directe omgeving, maar tegelijk op korte afstand van winkels, scholen en sportvoorzieningen. The Mall of the Netherlands, het centrum van Leidschendam en openbaar vervoer liggen allemaal binnen handbereik. Ook uitvalswegen richting Den Haag, Rotterdam en Utrecht zijn snel bereikbaar. Dit is wonen met balans: rustig wonen, maar niets hoeven missen.

Kenmerken:
•	Gelegen op de 6e etage
•	Ca. 67,4 m² woonoppervlakte (NEN 2580)
•	Drie slaapkamers
•	Royale en lichte woonkamer
•	Balkon met vrij uitzicht over groen en water (ca. 9 m²)
•	Externe berging ca. 5 m²
•	Energielabel C
•	Actieve VvE
o	Bijdrage: € 177,24 per maand
o	Voorschot stookkosten: € 112,56 per maand
o	Waterkosten: € 16,44 per maand

Een appartement dat rust, ruimte en ligging op een prettige manier samenbrengt.
Dit is zo’n woning waar je je snel thuis voelt — en die je het liefst zelf even ervaart.

Kenmerken