Beschrijving

Ben jij op zoek naar een appartement waar je niet hoeft te schikken, maar juist kunt creëren? Waar je niet betaalt voor keuzes van een ander, maar alles zélf bepaalt? Dan is dit ruime 3-kamerappartement op de eerste etage een kans die je zelden tegenkomt.

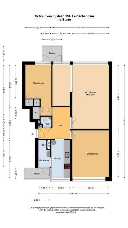
Met circa 79 m² woonoppervlakte, twee slaapkamers, twee balkons en een aparte berging is de basis hier meer dan goed. De indeling klopt, de ruimtes zijn licht en de ligging is sterk. De afwerking is gedateerd — en dat is precies waar de mogelijkheden beginnen.

De woonkamer is royaal en biedt alle ruimte voor een moderne, open leefruimte met grote raampartijen en veel daglicht. Zie het al voor je: een strakke vloer, rustige tinten, een moderne keukenopstelling en een eigentijdse woonstijl die helemaal bij jou past.
De huidige keuken, badkamer en het separate toilet zijn functioneel maar toe aan vernieuwing, wat dit appartement ideaal maakt voor kopers met visie.
Aan zowel de voor- als achterzijde beschik je over een balkon, waardoor je op elk moment van de dag buiten kunt zitten. Daarnaast is er een externe berging op de begane grond — praktisch voor fietsen en extra opslag.
Ligging & omgeving
De locatie is een groot pluspunt. Je woont hier direct nabij The Mall of the Netherlands, met winkels, horeca en voorzieningen letterlijk om de hoek. Openbaar vervoer, uitvalswegen richting Den Haag en Rotterdam én groen voor een wandeling of fietstocht zijn allemaal binnen handbereik.
Belangrijk om te weten
•	Woonoppervlakte ca. 79 m²
•	2 slaapkamers
•	2 balkons
•	Externe berging ca. 6 m²
•	Verwarming via blokverwarming
•	Warm water via elektrische boiler
•	Energielabel F
•	Actieve VvE
•	Servicekosten € 266,00 per maand
o	Voorschot stookkosten: € 83,33
o	Water: € 15,00
Dit appartement vraagt om renovatie, maar biedt daarvoor in ruil iets zeldzaams: volledige vrijheid om er jouw thuis van te maken, op een locatie die staat als een huis.
Nieuwsgierig? Kom kijken — en ontdek vooral wat hier allemaal mogelijk is.

Kenmerken