Beschrijving

Deze ruime hoekwoning van ca. 126 m² met uitgebouwde woonkamer, garage en vier slaapkamers is gelegen in de gewilde Zuiderzeewijk van Lelystad. De woning heeft kunststof kozijnen, kunststof gevelbekleding, 6 zonnepanelen en een elektrische boiler. De woning wordt aangeboden middels een bieden vanaf-prijs.

Welkom aan het Amsteldiep 20 – een ruime, goed onderhouden hoekwoning met volop leefruimte en duurzame voorzieningen. De Zuiderzeewijk is een van de eerste wijken van Lelystad en staat bekend om haar groene karakter, rustige straten en centrale ligging nabij winkelcentrum ’t Lelycentre, scholen, speelgelegenheden en openbaar vervoer. De wijk biedt een fijne, gemoedelijke sfeer waar kinderen veilig kunnen opgroeien. Via de nabijgelegen uitvalswegen ben je bovendien in korte tijd op de A6 richting Almere, Amsterdam of Emmeloord.

Begane grond
Via de verzorgde voortuin met stenen berging en garage bereik je de entree van de woning. In de hal bevinden zich de meterkast, het toilet, de trapopgang naar de eerste verdieping en toegang tot de woonkamer. De ruime woonkamer is aan de achterzijde over de volle breedte uitgebouwd, wat zorgt voor extra leefruimte en veel lichtinval middels een dakkoepel. Met dubbele schuifdeuren is de zonnige achtertuin toegankelijk. Aan de voorzijde bevindt zich de keuken in praktische hoekopstelling, voorzien van diverse inbouwapparatuur zoals een gaskookplaat, combi-oven en vaatwasser. De gehele verdieping is voorzien van een tapijtvloer (linoleum).

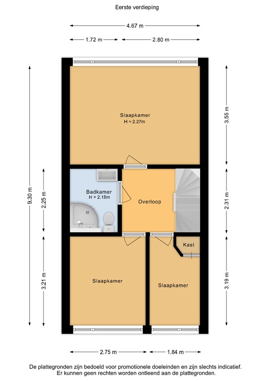
Eerste verdieping
Via de vaste trap kom je op de overloop die toegang biedt tot drie ruime slaapkamers en de badkamer. De kamers zijn goed in te delen, licht en comfortabel. De badkamer is modern afgewerkt en voorzien van een wastafelmeubel, douchecabine en tweede toilet. 

Tweede verdieping
De tweede verdieping is bereikbaar via een vaste trap. Dankzij het platte dak (vervangen in 2017) is de zolder verrassend ruim en goed bruikbaar. Hier bevindt zich de vierde slaapkamer, de opstelling van de elektrische boiler en de aansluiting voor de wasmachine. Via de overloop is ook het dakterras te bereiken, gelegen op het westen.

Tuin
De woning beschikt over een voortuin met berging, een zij tuin en een ruime achtertuin op het zuidwesten, waar je van de middag- en avondzon kunt genieten. De tuin is verzorgd aangelegd, voorzien van een terras en beplanting, en heeft een achterom voor extra gemak. Via de voorzijde en achterzijde is de garage te bereiken welke in 2022 is aangebouwd. Dankzij de hoekligging heb je hier veel privacy en een rustige ligging.

Bijzonderheden
- Hoekwoning van 126m2 met uitbouw en aangebouwde garage
- Volledig kunststof kozijnen en kunststof gevelbekleding 
- 6 zonnepanelen en elektrische boiler
- Plat dak zolder vernieuwd in 2017
- 4 slaapkamers en dakterras
- Ruime achtertuin op het zuidwesten met berging en achterom
- Gelegen in de groene en kindvriendelijke Zuiderzeewijk
- Nabij scholen, winkelcentrum ’t Lelycentre, openbaar vervoer en uitvalswegen
- Aanvaarding in overleg

Disclaimer: Alhoewel zorgvuldig samengesteld, kunnen er aan deze tekst geen rechten worden ontleend. Wij staan dan ook niet in voor de juistheid en volledigheid van de getoonde gegevens. De woning is ingemeten volgens de normen vastgelegd in de NEN 2580. Toch kunnen er altijd verschillen ontstaan tussen de opgegeven maten en de werkelijkheid. Indien de maten voor u belangrijk zijn nodigen wij u van harte uit de maten op voorhand op juistheid te controleren. Het meetrapport is beschikbaar en ter inzage.

Kenmerken