Beschrijving

Prachtig chalet op EIGEN grond!
In een fantastisch, natuurrijke omgeving gelegen luxueuze vrijstaande recreatiewoning op Europarcs Resort "De Kraaijenbergse Plassen". Dit 6-persoons chalet is opgeleverd in 2020, beschikt over 3 slaapkamers en is gelegen op een eigen perceel van maar liefst 339 m².

De woning is gelegen vlakbij de hoofdentree, ideaal als je houdt van heerlijk fietsen en struinen door Maasheggen UNESCO. De Maasheggen is het oudste cultuurlandschap van Nederland. Er is geen gebied in Europa waar natuur, landschap, economie én cultuur zo zichtbaar en langdurig met elkaar verweven zijn. Op enkele meters bevindt zich tevens het zandstrand voor een frisse duik in de "Kraaijenbergse Plassen" of voor een heerlijke boottocht. 

Deze vakantiewoning is gebouwd en geplaatst in 2020 en daarmee nog splinternieuw! De woning is volledig geïsoleerd en voorzien van dubbele beglazing en een c.v.-combiketel. De woning word je volledig gestoffeerd en gemeubileerd opgeleverd (exclusief persoonlijke zaken), zodat het genieten direct kan beginnen.

Vraagprijs: €132.500,- k.k. BTW verlegd (artikel 37.d)

Indeling

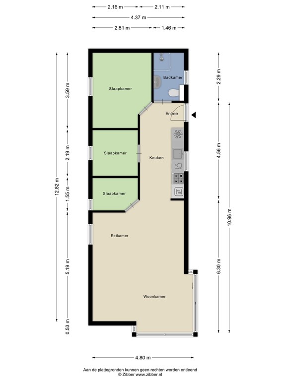
Begane grond: 
Moderne open keuken voorzien van de benodigde inbouwapparatuur, te weten: gaskookplaat, afzuigkap, combimagnetron, koel-/ vriescombinatie, vaatwasser en spoelbak, ruime woonkamer met grote raampartijen voor volop lichtinval en schuifpui naar het sfeervolle terras, slaapkamer met stapelbed en kastruimte, slaapkamer met twee eenpersoonsbedden en kastruimte, ouderlijke slaapkamer met twee eenpersoonsbedden en riante kastruimte, badkamer voorzien van douche, wastafel en toilet.  

Diverse gegevens: 
Tv-zenders worden ontvangen via een CAI aansluiting en ook is er beschikking over een internetverbinding. De tuin is aangelegd wat volledig past bij de uitstraling van het park met o.a. siergras en borders. Tevens beschikt het chalet over een eigen parkeerplaats aan de achterzijde. Het park is het gehele jaar geopend en huisdieren zijn toegestaan. Door de ligging aan de recreatieplassen zijn er vele mogelijkheden voor de (water)liefhebbers zoals o.a. duiken, zwemsport, watersporten en het varen met een bootje op de Maas. Daarnaast zijn er vele wandel- en fietsmogelijkheden in de directe omgeving zoals in het UNESCO Maasheggengebied aan de Maas.

Kenmerken