| Prijs | € 595.000,- k.k. |
| Type object | Woonhuis, herenhuis, twee onder een kap woning |
| Perceeloppervlakte | 375 m² |
| Woonoppervlakte | 158 m² |
| Aanvaarding | In overleg |
| Status | Verkocht onder voorbehoud |
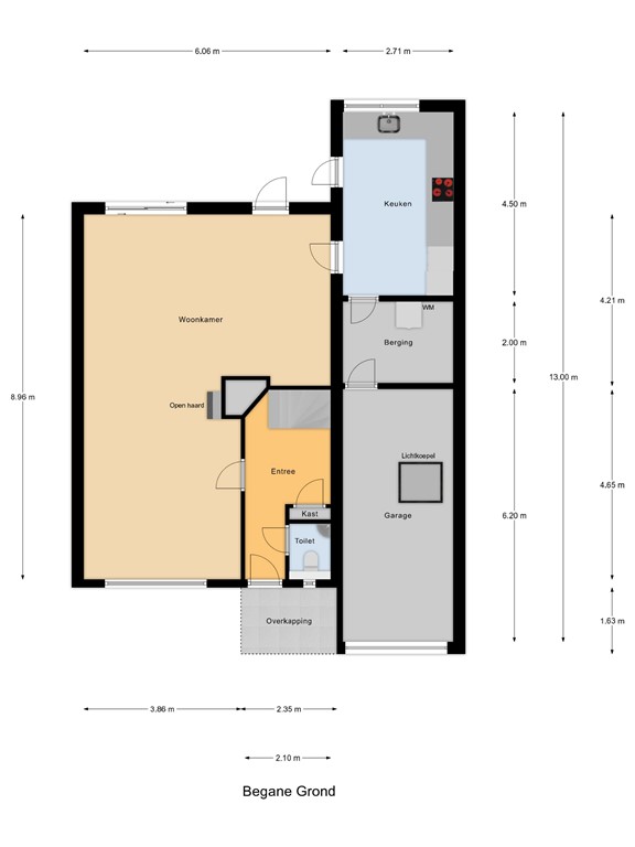
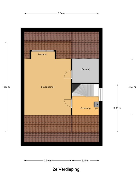
Oost West Thuis Best/Home is where the heart is. Vele jaren geleden kwam mijn opdrachtgeefster voor haar grote liefde vanuit het oosten naar het westen. Inmiddels zit de arbeid carrière er bijna op, worden beide verkopers dit jaar trotse eigenaren van 'het welbekende pasje' en gaan ze samen met veel liefde (terug) naar het oosten. Ze hebben inmiddels een supergave woning gekocht, maar ze laten en ook eentje achter! Een prachtige kans voor u, op een heerlijk ruime 2/1-kapwoning (bouwjaar 1976) met (parkeerplaats voor en in de) garage, een voortuin en een diepe, vrije en zonnige achtertuin (met 2 houten bergingen), grenzend aan een waterpartij, met aansluitend daaraan een parkje. De ligging is ideaal, rustig aan de buitenrand van een mooie groene wijk, op loopafstand van de basisschool en geringe afstand van de sporthal en de buitensporten (voetbal, tennis en honkbal). In de straat is er enkel en alleen bestemmingsverkeer. En u rijdt binnen twee minuten op de uitvalswegen richting Dordrecht en Rotterdam. Geen wonder dat mijn opdrachtgevers het hier al meer dan 23 jaar volhouden, in een voor 2 personen wel heel erg ruime woning! De bruto inhoud is maar liefst 618 m³, de gebruiksoppervlakte wonen is 158 m², de overige inpandige ruimte (garage) 17 m², de externe bergruimte 24 m³, de gebouwgebonden buitenruimte 7 m². De totale perceelgrootte is 375 m² eigen grond In die 23 jaar is er goed onderhoud gepleegd, flink gemoderniseerd en bovenal ook verduurzaamd! De woning is voorzien van een keurig Energielabel A. Het dak is aan de westzijde belegd met 15 zonnepanelen (300WP elk, system size 4500 kw geplaatst in 2018), de woning is voorzien van een hybride warmtepomp (Daikin 2022), geheel van dubbele beglazing (aan achterzijde tripel glas in kunststof kozijnen), van gevel- en dakisolatie. Het platte dak van de keuken en de garage werd in 2019 geïsoleerd en voorzien van een hele nieuwe laag dakbedekking en dakhout. Leest u nog mee? Heb ik uw aandacht nog? Bent u al enthousiast geworden?? Mooi, dan is het nu tijd voor de indeling, De indeling is als volgt: via de overdekte entree en de voordeur betreedt u de hal met toilet, meterkast, trapopgang en toegang tot de L-vormige woonkamer van 45 m² (896 x 606/386) met inbouw houtkachel , openslaande deuren naar de tuin en toegang tot de dichte eetkeuken (450 x 271) met luxe - in 2022 vernieuwde - complete hoekinbouwkeuken (Tieleman). Vanuit de keuken biedt een loopdeur toegang tot de tuin, voorts is er een deur naar de bijkeuken/binnen berging (271 x 200) met aansluitingen en afvoeren t.b.v. de wasapparatuur en met toegang tot de garage (binnenwerkse hoofdmaten 620 x 271) met lichtkoepel en elektrisch bedienbare garagedeur met afstand bediening. Op de eerste verdieping is de indeling als volgt: overloop, prachtige ouderslaapkamer (488 x 379) met openslaande/kanteldeur naar het balkon (290 x 106), voorts een prima tweede slaapkamer (398 x 283), een leuke derde slaapkamer (420 x 218) en de nette en royale badkamer (314 x 224) met ligbad, inloopdouche, tweede toilet, designradiator en badkamermeubel met wastafel. Via een vaste trap bereikt u de tweede verdieping, die als volgt is ingedeeld: voorzolder met de warmtepomp, toegang tot de grote vierde slaapkamer (459 x 379 op de 1.50 meterlijn) met dakkapel en toegang tot een afgescheiden bergruimte. Rustig en prettig wonen met alle voorzieningen binnen handbereik, dat is wonen aan de Fazant in Maasdam. Maak snel een afspraak om te kijken of u net zo enthousiast zult worden van deze woning/locatie als de makelaar reeds is.
| Referentienummer | 07073 |
| Vraagprijs | € 595.000,- k.k. |
| Status | Verkocht onder voorbehoud |
| Aanvaarding | In overleg |
| Laatste wijziging | Woensdag 18 maart 2026 |
| Type object | Woonhuis, herenhuis, twee onder een kap woning |
| Soort bouw | Bestaande bouw |
| Bouwperiode | 1976 |
| Dakbedekking | Dakpannen |
| Type dak | Zadeldak |
| Keurmerken | Energie prestatie advies |
| Isolatievormen | Dakisolatie Driedubbel glas Dubbel glas HR-glas Muurisolatie Spouwmuren |
| Perceeloppervlakte | 375 m² |
| Woonoppervlakte | 158 m² |
| Inhoud | 618 m³ |
| Oppervlakte overige inpandige ruimten | 17 m² |
| Oppervlakte externe bergruimte | 24 m² |
| Oppervlakte gebouwgebonden buitenruimte | 7 m² |
| Aantal bouwlagen | 3 |
| Aantal kamers | 5 (waarvan 4 slaapkamers) |
| Aantal badkamers | 1 (en 1 apart toilet) |
| Ligging | Aan bosrand Aan rustige weg Beschutte ligging Dichtbij openbaar vervoer In woonwijk Nabij school Nabij snelweg Open ligging Vrij uitzicht |
| Type | Achtertuin |
| Hoofdtuin | Ja |
| Oriëntering | Oosten |
| Heeft een achterom | Ja |
| Staat | Goed onderhouden |
| Tuin 2 - Type | Achtertuin |
| Tuin 2 - Oriëntering | West |
| Tuin 2 - Staat | Goed onderhouden |
| Energielabel | A |
| Aantal parkeerplaatsen | 2 |
| Aantal overdekte parkeerplaatsen | 1 |
| Warm water | Elektrische boiler |
| Verwarmingssysteem | Warmtepomp |
| Ventilatie methode | Mechanische ventilatie |
| Keukenvoorzieningen | Inbouwapparatuur |
| Badkamervoorzieningen | Inloopdouche Ligbad Toilet Wastafel Wastafelmeubel |
| Parkeergelegenheid | Aangebouwde stenen garage |
| Heeft een balkon | Ja |
| Heeft een rookkanaal | Ja |
| Tuin aanwezig | Ja |
| Heeft een garage | Ja |
| Heeft schuur/berging | Ja |
| Heeft een schuifpui | Ja |
| Heeft zonnepanelen | Ja |
| Heeft ventilatie | Ja |
| Kadastrale aanduiding | Maasdam A 2501 |
| Perceeloppervlakte | 375 m² |
| Omvang | Geheel perceel |
| Eigendomsituatie | Eigen grond |