Prijs | € 475.000,- k.k. |
Type object | Woonhuis, eengezinswoning, tussenwoning |
Perceeloppervlakte | 161 m² |
Woonoppervlakte | 120 m² |
Aanvaarding | In overleg |
Status | Nieuw in verkoop |
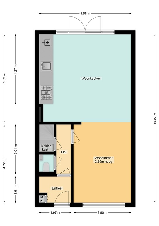
De verkoop is gestart met een LIVE VIDEO bezichtiging op woensdag 15 oktober en deze staat online op onze website. Mocht u geïnteresseerd zijn n.a.v. de video om nog echt in de woning te kijken, neem dan snel contact op! RIANTE EN INSTAPKLARE EENGEZINSWONING MET UITGEBOUWDE WOONKEUKEN, 4 SLAAPKAMERS, MODERNE BADKAMER, ACHTERTUIN OP HET OOSTEN MET STENEN SCHUUR EN OVERKAPPING EN 2 PARKEERPLAATSEN OP EIGEN TERREIN. Maar liefst 120 m2 woongenot in de centraal gelegen en gewilde wijk Sluispolder. Een ideale woning voor gezinnen die houden van koken en tafelen met vrienden en familie aan een lange tafel in de woonkeuken. Indeling: Entree via de voortuin met ruimte voor het parkeren van 2 auto's op eigen terrein; tochtportaal met kapstok en meterkast; hal met bergkast onder trap en modern toilet met hangend closet en fonteintje. De woonkamer is voorzien van triple glas aan de voorzijde waardoor een fijne, lichte en stille ruimte ontstaat die doorloopt in de royale woonkeuken. Deze woonkeuken heeft een aanbouw aan de achterzijde met dubbele deuren die toegang bieden tot de achtertuin. De moderne en goed onderhouden keuken met composiet blad is voorzien van diverse inbouwapparatuur en de ruimte leent zich voor een lange eettafel. Op de vloer ligt PVC, de muren zijn glad gestuct en het plafond is voorzien van spotjes. De achtertuin op het oosten is onderhoudsarm en voorzien van een stenen schuur met achterom en houten overkapping. De eerste verdieping heeft 3 ruime slaapkamers waarvan de voorste grote slaapkamer een rolluik voor het raam heeft. De moderne en ruime badkamer is voorzien van een tweede toilet, inloopdouche met regendouche, dubbel wastafelmeubel, spiegelkast en spotjes in het plafond. De tweede verdieping heeft een grote overloop waar de wasmachine en droger staan en de opstelplaats voor de HR-ketel. Een ideale ruimte voor het drogen van de was en als werk- of speelplek. Tevens bevindt zich hier nog een ruime slaapkamer met ook een rolluik voor het raam en spotjes in het plafond. Kortom een ideale gezinswoning voor een liefhebber van koken en/of tafelen in een leuke kinderrijke wijk, op korte afstand van het levendige stadshart van Maassluis. Ben je benieuwd hoe het er in het echt uitziet? Maak dan snel een afspraak voor een bezichtiging! Bijzonderheden: • Gebouwd in 1957; • Gelegen op eigen grond; • Voorzien van een riante aanbouw aan de achterzijde en opbouw op de bovenverdieping; • Gebruiksoppervlakte woonruimte 120 m2; • Energielabel D, geldig tot 30-06-2030, ivm aanpassing dubbel glas naar triple glas waarschijnlijk nu een C-label; • Instapklaar en modern; • Vier slaapkamers; • Zeer nette en moderne badkamer (2020) met inloopdouche, tweede toilet en dubbele wastafel; • Royale en moderne woonkeuken (2016) met diverse inbouwapparatuur zoals een vaatwasser, oven, 5-pits gaskookplaat, afzuigkap en koel-vriescombinatie; • Achtertuin op het oosten met achterom, schuur en overkapping; • Voorzijde voorzien van kunststof kozijnen met Tripleglas, achterzijde HR ++ glas en dubbelglas op de tweede verdieping; • Voorzijde voorzien van zonwering op de begane grond en rolluik op de eerste etage en achterzijde voorzien van zonwering op de begane grond en rolluik op de tweede verdieping; • Ramen voorzien van vliegenhorren; • Elektra: 8 groepen, 1 hoofdschakelaar en 2 aardlekschakelaars; • Cv-ketel merk: Vaillant, bouwjaar 2019; • Ruimte om 2 auto's te parkeren op eigen terrein voor het huis; • Gelegen op loopafstand van het centrum van Maassluis, het Vondel- en Wipperspark, speeltuintje aan de Da Costaplein, sportfaciliteiten, basisonderwijs en het openbaar vervoer (zoals bus naar het Westland en metro naar Rotterdam en Hoek van Holland strand) en gunstig gelegen t.o.v. snelweg A20; Verkoopcondities: • Biedingen verlopen via divamakelaars.nl/eerlijkbieden • Oplevering in overleg, op korte termijn mogelijk; • Notaris keuze aan koper mits gelegen in de omgeving Maassluis; • Ongeacht het bouwjaar en de staat van onderhoud zal een ouderdomsclausule worden opgenomen. Enthousiast over deze woning, maar uw eigen woning nog niet verkocht? Neem contact op met ons kantoor voor een gratis waardebepaling. Wij plannen dan direct een afspraak met de makelaar en heeft u op korte termijn beter inzicht in uw mogelijkheden. KAN IK DIT BETALEN? Als extra service maken wij graag GRATIS EN VRIJBLIJVEND een hypotheek berekening door een van onze samenwerkende onafhankelijk hypotheekadviseurs. Wij kennen geen lange wachttijden waardoor vaak nog dezelfde dag een afspraak ingepland kan worden. Uiteindelijk kunnen wij indien gewenst de gehele financieringsaanvraag verzorgen. Wij hebben deze informatie, zoals u van ons mag verwachten, met veel zorg samengesteld. Toch komt het in uitzonderlijke gevallen voor dat blijkt dat de informatie niet volledig is. Daarom aanvaarden wij, als verkopend makelaar, geen aansprakelijkheid voor de juistheid en/of volledigheid ervan. Wat betekent dat er geen rechten ontleend kunnen worden aan de vermelde gegevens. We verstrekken u deze informatie om u uit te nodigen voor het plannen van een bezichtiging en het doen van een bod onder voorbehoud en gunning. Toelichtingsclausule meetinstructie De Meetinstructie is gebaseerd op de BBMI. De Meetinstructie is bedoeld om meer eenduidige manier van meten toe te passen voor het geven van een indicatie van de gebruiksoppervlakte. De meetinstructie sluit verschillen in meetuitkomsten niet volledig uit, door bijvoorbeeld interpretatieverschillen, afrondingen of beperkingen bij het uitvoeren van de meting
Referentienummer | DIVA09415 |
Vraagprijs | € 475.000,- k.k. |
Status | Nieuw in verkoop |
Aanvaarding | In overleg |
Laatste wijziging | Donderdag 16 oktober 2025 |
Type object | Woonhuis, eengezinswoning, tussenwoning |
Soort bouw | Bestaande bouw |
Bouwperiode | 1957 |
Dakbedekking | Dakpannen |
Type dak | Zadeldak |
Keurmerken | Energie prestatie advies |
Isolatievormen | Driedubbel glas Dubbel glas HR-glas Vloerisolatie |
Perceeloppervlakte | 161 m² |
Woonoppervlakte | 120 m² |
Inhoud | 410 m³ |
Oppervlakte externe bergruimte | 7 m² |
Aantal bouwlagen | 3 |
Aantal kamers | 5 (waarvan 4 slaapkamers) |
Aantal badkamers | 1 (en 1 apart toilet) |
Ligging | Aan rustige weg Dichtbij openbaar vervoer In woonwijk Nabij school Nabij snelweg Zelfstandig |
Type | Voortuin |
Oriëntering | West |
Staat | Normaal |
Tuin 2 - Type | Achtertuin |
Tuin 2 - Hoofdtuin | Ja |
Tuin 2 - Oriëntering | Oosten |
Tuin 2 - Heeft een achterom | Ja |
Tuin 2 - Staat | Normaal |
Energielabel | D |
CV ketel | Vaillant |
Warmtebron | Gas |
Bouwjaar | 2019 |
Combiketel | Ja |
Eigendom | Eigendom |
Aantal parkeerplaatsen | 2 |
Warm water | CV-ketel |
Verwarmingssysteem | Centrale verwarming |
Ventilatie methode | Mechanische ventilatie Natuurlijke ventilatie |
Keukenvoorzieningen | Inbouwapparatuur |
Badkamervoorzieningen | Douche Dubbele wastafel Inloopdouche Toilet |
Glasvezelaansluiting aanwezig | Ja |
Tuin aanwezig | Ja |
Heeft rolluiken | Ja |
Heeft schuur/berging | Ja |
Heeft zonwering | Ja |
Heeft ventilatie | Ja |
Kadastrale aanduiding | Maassluis D 7219 |
Perceeloppervlakte | 161 m² |
Omvang | Geheel perceel |
Eigendomsituatie | Eigen grond |