Beschrijving
-OPENHUIS- zaterdag 28 maart 2026
Royaal wonen met garage, riante tuin en eindeloze mogelijkheden!
Bent u op zoek naar een huis dat écht alles biedt? Deze verrassend ruime gezinswoning combineert rust, comfort en een zee aan ruimte. Met vier grote slaapkamers, een inpandige garage en een tweede verdieping met potentie voor nog eens twee extra kamers, is dit de ideale plek voor een groeiend gezin of werken aan huis.
De woning is gelegen op een zeer gunstige locatie in de wijk Steendijkpolder. Het gelijknamige winkelcentrum bevindt zich op loopafstand, net als diverse sportverenigingen zoals tennis, hockey, voetbal en de wandelsportvereniging, jeu de boules en zelfs het Maassluisse muziekgebouw. Voor nog meer ontspanning kun je heerlijk wandelen in het park of fietsen langs de Waterweg richting Hoek van Holland. Recreatiemogelijkheden te over zoals aan de nabijgelegen manege en de Oranjeplassen.
Indeling
Riante living met volop lichtinval
Bij binnenkomst valt direct de praktische en royale indeling op. De woonkamer, gelegen aan de tuinzijde, is een oase van licht dankzij de grote raampartijen. Hier geniet u van een vrij zicht op de groene achtertuin. Er is meer dan genoeg plek voor een riante zithoek waar het hele gezin samenkomt.
Woonkeuken in topconditie
Aan de voorzijde vindt u de ruime woonkeuken. Hoewel de keuken een klassieke basis heeft, is deze in uitmuntende staat en voorzien van een tijdloos granieten aanrechtblad. Dankzij de jonge inbouwapparatuur (ca. 4 jaar oud) kookt u hier direct met modern gemak.
Er is bovendien volop ruimte voor een grote eettafel; dé plek voor uitgebreide ontbijtjes en gezellige diners.
Comfort: Bijkeuken en inpandige garage
Geen gesleep met spullen: via de hal bereikt u direct de inpandige garage met elektrische deur. Ideaal voor de auto, fietsen of als hobbyruimte. Aangrenzend vindt u de praktische bijkeuken met aansluitingen voor witgoed en extra bergruimte.
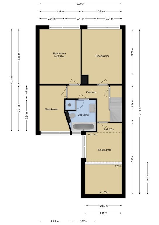
Eerste verdieping
Vier slaapkamers en complete badkamer
Op de eerste verdieping wachten vier ruime slaapkamers op u. Bijzonder is de slaapkamer boven de garage, die door de extra ruimte perfect is als werk- of speelkamer. De badkamer is compleet uitgerust met een groot ligbad, aparte douche, wastafelmeubel en een tweede toilet. De frisse wit-zwart styling zorgt voor een tijdloze uitstraling.
Tweede verdieping
Verrassende tweede verdieping: Ruimte voor meer!
De tweede verdieping is een absolute troef. De huidige open ruimte met sfeervol schuin dak is nu al een eyecatcher, maar biedt ook de mogelijkheid om eenvoudig twee extra slaapkamers te realiseren. De cv-ketel is netjes weggewerkt in een kast op de voorzolder, waar u tevens een schat aan extra bergruimte vindt.
Tuin
Buitenleven: Zonnige tuin op het noorden
De fraai aangelegde achtertuin van ca. 70 m² is een paradijs voor tuinliefhebbers. Door de gunstige ligging geniet u hier tot in de late uurtjes van de zon. De tuin biedt veel privacy, veel vast groen en is via een handige achterom bereikbaar.
Ook de voortuin is royaal, wat zorgt voor een fijne afstand tot de straat.
Bijzonderheden
Oplevering medio mei 2026
Bijzonderheden
• Ruime tussenwoning op ca. 219 m² eigen grond
• Lichte woonkamer en royale keuken
• 4 slaapkamers + ruime tweede verdieping
• Bijkeuken en inpandige garage
• Achtertuin ca. 70 m² op noorden met achterom
Dichtbij
• Winkelcentrum Steendijkpolder (loopafstand)
• Sportverenigingen, park en Waterweg
• Metro en snelweg binnen ca. 5 minuten
• Winkelcentrum Koningshoek
Deze informatie is door ons met de nodige zorgvuldigheid samengesteld. Onzerzijds wordt echter geen enkele aansprakelijkheid aanvaard voor enige onvolledigheid, onjuistheid of anderszins, dan wel de gevolgen daarvan
Plattegronden
181172026_maeterlinckdree_begane_grond_first_design_20260115_d4a03e.jpg
181172026_maeterlinckdree_begane_grond_first_design_20260115_ccf948.jpg
181172026_maeterlinckdree_verdieping_1_first_design_20260115_91690c.jpg
181172026_maeterlinckdree_verdieping_2_first_design_20260115_acafc6.jpg