Beschrijving

Stop met zoeken en begin met inpakken! Ben jij klaar voor je eerste échte thuis of zoek je de perfecte plek voor jouw groeiende gezin? Deze ruime 4-kamer maisonnette in de geliefde Vogelbuurt is dé plek waar jouw nieuwe hoofdstuk begint. Met drie slaapkamers, een heerlijk lichte woonkamer en alle voorzieningen om de hoek. Dit is de plek waar je zorgeloos kunt gaan genieten.

De Schollevaarstraat ligt in de rustige Vogelbuurt, op loopafstand van alle gemakken. Voor winkelen kun je terecht in het overdekte winkelcentrum Koningshoek biedt meer dan 60 winkels, terwijl cultuur en de bibliotheek samenkomen in het nabijgelegen Theater Koningshof. Met de metro vanaf station Maassluis West ben je bovendien snel in Rotterdam of op het strand. Alles wat je nodig hebt, bevindt zich dus direct om de hoek. Ook de snelweg is makkelijk bereikbaar.

Indeling

Welkom thuis aan de Schollevaarstraat. Zodra je aan komt lopen bij het complex, voelt het direct vertrouwd. Bij het verzorgde bellenbord met intercom hoor je gelijk wie er voor de deur staat; een veilig en welkom gevoel. 

De entree is licht en netjes, en wat direct opvalt is het extra stukje comfort: de traplift. Of je nu slecht ter been bent of gewoon een dag met zware boodschappentassen sjouwt, je bereikt je nieuwe thuis altijd moeiteloos en met een glimlach

Eerste verdieping

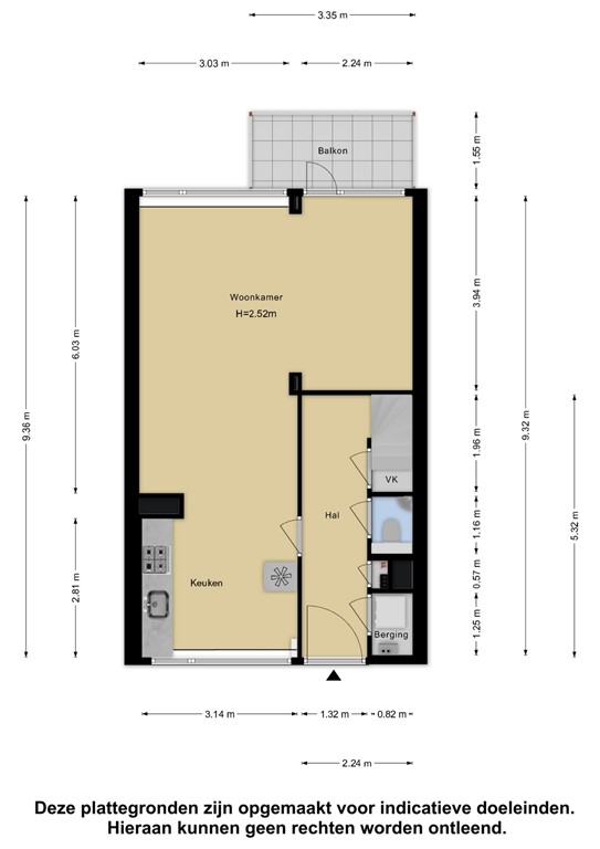
Tweede etage 
Je komt binnen in de ruime hal met meterkast , een handige bergkast, waar de wasmachine is opgesteld, en de modern afgewerkte toilet ruimte 

Praktische Keuken
Gelegen aan de voorzijde en van alle gemakken voorzien, zoals een gaskookplaat, een recirculatie kap en een koel-/vriescombinatie. Je hebt hier genoeg werkruimte om lekker te koken. 

Licht, lucht en ruimte
Stap je de woonkamer binnen, dan word je omarmd door het licht. De grote ramen aan weerszijden laten de zon heerlijk binnenstromen in de speelse L-vormige kamer. Het is zo'n plek waar je 's avonds heerlijk wegkruipt op de bank, maar waar ook genoeg ruimte is voor een lange eettafel om uitgebreid te borrelen met vrienden. En met de balkondeur open, haal je buiten lekker naar binnen en ideaal om even buiten te zitten met een kop koffie.

Tweede verdieping

Jouw eigen plekje om tot rust te komen
De bovenverdieping verrast door de rust en de ruimte. De master bedroom aan de achterzijde is heerlijk royaal – een echte 'oase van rust' waar je de hectiek van de dag zo vergeet. De badkamer nodigt uit tot ontspanning; zak lekker onderuit in een warm bad na een lange werkdag. 

Of je nu een extra werkkamer nodig hebt of droomt van een inloopkast, de kamers aan de voorzijde bieden je alle vrijheid om het huis precies zo in te delen als bij jouw leven past.

Balkon

Heerlijk genieten van je eerste kopje koffie in de ochtend zon, dat kan zeker op dit balkon

Bijzonderheden

Extra ruimte voor al je spullen
Niet alleen in het appartement heb je alle ruimte, ook aan de praktische zaken is gedacht. In de onderbouw beschik je over een eigen berging, ideaal voor het opruimen van de seizoensspullen of gereedschap. En je fiets? Die stal je veilig en droog in de gezamenlijke centrale ruimte. Zo blijft je eigen berging lekker overzichtelijk! 

Waarom dit jouw nieuwe plek is
Ben jij klaar om deze kans te grijpen? Kom de ruimte, het licht en het comfort zelf ervaren tijdens een bezichtiging. Met de duurzame kunststof kozijnen ben je verzekerd van een woning die klaar is voor de toekomst en waar je direct van kunt gaan genieten. Dit is dé plek    waar jouw woonavontuur begint –  Zien we je snel aan de Schollevaarstraat?? 

Oplevering eind september / begin oktober 2026

-Bijzonderheden-
•	Kunststof kozijnen
•	Lichte woonkamer
•	3 slaapkamers
•	Balkon
•	Eigenberging

-Dichtbij-
•	Metro 
•	Theater Koningshof
•	Snelweg binnen ca. 5 minuten
•	Winkelcentrum Koningshoek

In de koopovereenkomst wordt, gezien de leeftijd van de woning (ouder dan 20 jaar), standaard een ouderdomsclausule opgenomen. De verstrekte informatie is met zorg samengesteld en grotendeels gebaseerd op gegevens van derden. Aan de inhoud  van deze informatie kunnen geen rechten worden ontleend.

Kenmerken