Beschrijving
Wie op zoek is naar een comfortabele eengezinswoning in een fijne, kindvriendelijke buurt, mag deze kans aan de Tinbergendreef 4 eigenlijk niet laten schieten. Deze geschakelde woning uit 1977 combineert sfeer en eigentijds gemak, met verrassend veel ruimte verdeeld over drie goed ingedeelde woonlagen. Klaar voor een nieuw hoofdstuk – misschien wel met jou als nieuwe bewoner?
Gelegen op een uitstekende locatie, op slechts een steenworp afstand van het Vrijheidspark en op loopafstand van winkelcentrum Steendijkpolder, basisscholen en metrostation Steendijkpolder.
Indeling
Zodra je de voordeur opent, valt het daglicht je al tegemoet in de ruime hal. Hier zit alles slim ingedeeld: aan de ene kant vind je praktische zaken als de meterkast en het moderne toilet, aan de andere kant leidt de trap naar boven, en uiteraard is er toegang tot de woonkamer. Die woonkamer is écht het kloppende hart van het huis. Bijzonder detail: de authentieke vloertegeltjes herinneren nog aan het bouwjaar, maar verder is het strak en eigentijds. Dankzij de grote raampartijen – met dubbel glas! – valt het zonnetje royaal naar binnen en zorgt voor een prettige sfeer. De zithoek aan de tuinzijde nodigt uit om te ontspannen met uitzicht op het groen. Ook in de zomer zit je hier goed, want het nieuwe zonnescherm houdt de warmte buiten en het leven binnen lekker koel.
Nette keuken met alle gemakken
Grenzend aan de woonkamer bevindt zich de keuken, die in een modern jasje is gestoken en van alle gemakken is voorzien. Wat direct opvalt: het strakke granieten werkblad en de witte soft-close kastjes, die niet alleen functioneel, maar ook stijlvol ogen. Koken wordt hier bijna een hobby dankzij het complete apparatuurpakket: een koelkast met vriesvak, oven, 4-pits gaskookplaat, afzuigkap en een vaatwasser die het werk uit handen neemt. Zo blijft er genoeg tijd over voor echt gezellige momenten aan tafel!
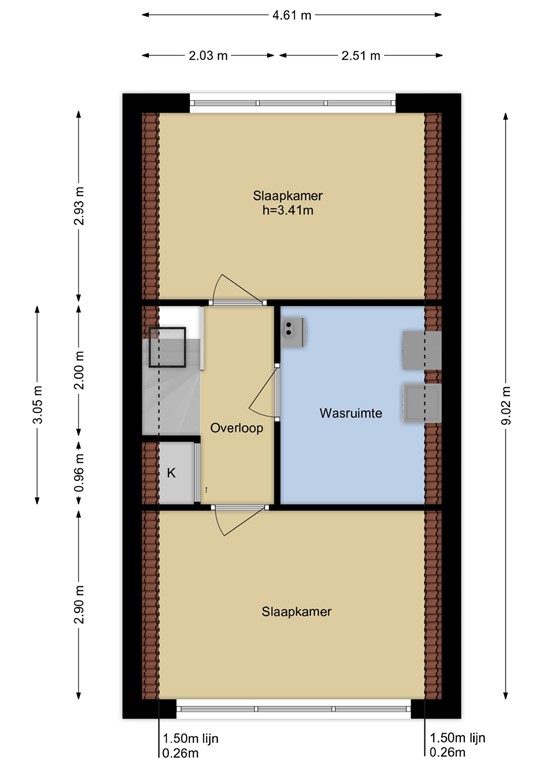
Eerste verdieping
Riant slapen en fris opstaan op de eerste etage
Via de vaste trap kom je op de eerste etage, waar twee riante slaapkamers op je wachten. Ruimte voor kasten, studeerhoek of zelfs een kinderkamer – hier kun je alle kanten op. Bovendien zijn de ramen voorzien van recent (2023) geplaatst dubbel glas, dus je zit er niet alleen comfortabel, maar ook energiezuinig bij.
De moderne badkamer is tot in de puntjes verzorgd, met een strak wastafelmeubel, inloopdouche, comfortabele handdoekradiator en een fraai zwevend toilet. Je begint je dag goed met een verfrissende douche is in deze badkamer.
Tweede verdieping
Verrassende indeling op zolder
De tweede verdieping blijft verrassen! Zeker met het daglicht wat naar binnen schijnt door het grote dakraam. Met nog eens twee grote slaapkamers is het huis uitermate geschikt voor grotere gezinnen of thuiswerkers. Dankzij het nieuwe dubbel glas (2023) zit je ook hier comfortabel. En kijk eens naar boven? De hoogte tot aan het plafond met de prachtige balken maakt dit plaatje compleet.
In het midden, slim weggewerkt, vind je de ruimte voor wasmachine, droger en cv-ketel. Zelfs dan blijft er nog bergruimte over voor koffers, dozen en wat je verder nog uit het zicht wilt plaatsen.
Tuin
Heerlijke tuin mét carport: thuiskomen wordt een feestje
Zodra je thuiskomt na een lange dag werken, rijd je moeiteloos onder je eigen carport of parkeer je op de oprit. Geen parkeerstress dus, maar altijd een plekje dichtbij huis. De tuin is netjes aangelegd en biedt volop mogelijkheden om buiten te leven. Of je nu kiest voor een plekje in de zon of liever onder de gezellige overkapping zit, aan beide zijden is er ruimte genoeg om te genieten met het gezin of vrienden.
Bijzonderheden
Oplevering: medio maart / april 2026
Bijzonderheden-
• Grotendeels Nieuw dubbel glas in 2023
• Hardhouten kozijnen
• 4 grote slaapkamers
• Nieuwe zonwering en hordeur
• Carport
-Dichtbij-
• Winkelcentrum Steendijkpolder
• Winkelcentrum Koningshoek
• Diverse basisscholen
• Metro
• Wandelgebied langs de Waterweg
• Diverse sportvelden waaronder Hockey, Tennis, Voetbal
-Clausule-
Vanwege de leeftijd van de woning zal de Ouderdomsclausule worden opgenomen in de koopovereenkomst
Plattegronden
126198495_tinbergendreef_begane_grond_first_design_20251016_166448.jpg
126198495_tinbergendreef_begane_grond_first_design_20251016_40e231.jpg
126198495_tinbergendreef_verdieping_1_first_design_20251016_21e174.jpg
126198495_tinbergendreef_verdieping_2_first_design_20251016_6fcfae.jpg
126198495_tinbergendreef_berging_first_design_20251016_e863d4.jpg