Beschrijving

Over deze woning
Op een rustige plek, omgeven door veel groen, ligt dit gezellige appartement aan de Forcadentstraat 50C in Maastricht. Het appartement bevindt zich op de derde en tevens bovenste etage van een kleinschalig complex in de geliefde wijk Malperthuis. Hier geniet je van een fijne woonomgeving met veel licht, privacy en uitzicht op het groen van het Van de Vennepark. De woning beschikt over twee slaapkamers, een balkon, loggia, én ruime berging, een compleet plaatje op een uitstekende locatie!

Van binnen
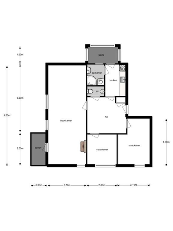
Via een gemeenschappelijke entree voor 6 appartementen bereik je middels een trap de derde etage. Bij binnenkomst tref je een ruime hal met toegang tot alle vertrekken: de woonkamer, keuken, slaapkamers en toiletruimte met fonteintje. De woonkamer (37 m²) is voorzien van een nette laminaatvloer en heeft grote raampartijen die zorgen voor veel lichtinval. Vanuit hier stap je direct het balkon op met uitzicht over het Van de Vennepark – een heerlijke plek om van de rust en het groen te genieten.
De gesloten keuken is praktisch ingericht met onder- en bovenkasten, gaskookplaat, afzuigkap en oven. Vanuit de keuken bereik je de serre (ca. 7 m²) die een verlengstuk vormt van de leefruimte en in elk seizoen te gebruiken is.
De badkamer is netjes en voorzien van een douche, wastafel, aansluiting voor de wasmachine en mechanische ventilatie. Beide slaapkamers (14 m² en 10 m²) zijn eveneens afgewerkt met laminaatvloeren en genieten van veel natuurlijk licht.
In de hal bevindt zich een handige berging met de cv-installatie (Remeha 2011, eigendom).

Van buiten
Het appartement ligt op de bovenste etage van een verzorgd complex met een gemeenschappelijke entree, trappenhuis, brievenbussen en intercom. Op de begane grond is er een ruime privéberging met daglichttoetreding en een gemeenschappelijke fietsenberging. Rondom het complex is voldoende openbare parkeergelegenheid aanwezig. De kozijnen zijn uitgevoerd in kunststof en voorzien van dubbele beglazing, wat zorgt voor een onderhoudsvriendelijke en energiezuinige afwerking.

De omgeving
In de directe nabijheid vind je het overdekte winkelcentrum Brusselsepoort met een ruim aanbod aan winkels en dagelijkse voorzieningen. Ook openbaar vervoer is op loopafstand aanwezig en de aansluiting op de uitvalswegen richting de A2 en A79 is uitstekend. Het Van de Vennepark ligt letterlijk naast de deur, ideaal voor een wandeling of sportieve activiteit. In de omgeving is bovendien een breed aanbod aan sportfaciliteiten te vinden.

De buurt
De wijk Malperthuis is een rustige, groene woonomgeving op korte afstand van het centrum van Maastricht. De wijk is ontstaan in de jaren ’50 en kenmerkt zich door kleinschalige appartementencomplexen en veel openbaar groen. Dankzij de centrale ligging tussen het stadscentrum en de westelijke rand van Maastricht is het hier prettig wonen: rustig, maar toch dicht bij alle voorzieningen. De buurt heeft een gemêleerde samenstelling met zowel jonge gezinnen als ouderen en kent een vriendelijke en betrokken sfeer.

Bijzonderheden
- Kunststof kozijnen met dubbele beglazing;
- Ruime privéberging;
- Gelegen op een rustige locatie aan het Van de Vennepark;
- Voldoende parkeergelegenheid rondom het complex;
- Energielabel: E.

Overig
Deze informatie is door ons met de nodige zorgvuldigheid samengesteld. Onzerzijds wordt echter geen enkele aansprakelijkheid aanvaard voor enige onvolledigheid, onjuist of anderszins, dan wel de gevolgen daarvan. Alle opgegeven maten en oppervlakten zijn indicatief. Van toepassing zijn de algemene voorwaarden.

Ter bescherming van de belangen van zowel koper als verkoper, wordt uitdrukkelijk gesteld dat een koopovereenkomst met betrekking tot deze onroerende zaak eerst dan tot stand komt nadat koper en verkoper de koopovereenkomst hebben getekend ("schriftelijkheidsvereiste").
De termijn die wordt opgenomen voor eventuele (overeengekomen) ontbindende voorwaarden (bv. financiering) is in de regel 4 tot 6 weken na het sluiten van de mondelinge wilsovereenkomst.
De waarborgsom/bankgarantie is 10% van de koopsom. De koper dient deze 2 weken ná het vervallen van de ontbindende voorwaarden bij de desbetreffende notaris te deponeren.
Koper is te allen tijde gerechtigd voor eigen rekening een bouwkundige keuring te (laten) verrichten dan wel andere adviseurs te raadplegen teneinde een goed inzicht te verkrijgen over de staat van onderhoud.

Gehele of gedeeltelijke overname, plaatsing op andere sites, verveelvoudiging op welke andere wijze dan ook en/of commercieel gebruik van deze informatie (zoals foto's, plattegronden, teksten etc.), is niet toegestaan, tenzij hiervoor uitdrukkelijk schriftelijke toestemming is verleend door Deniq Vastgoed, of tenzij aan de onderstaande voorwaarden wordt voldaan.
Deze informatie mag worden bekeken op een scherm, gedownload worden op een hard-disk of geprint worden, mits dit geschied voor persoonlijk, informatief en niet-commercieel gebruik, mits de informatie niet gewijzigd wordt, en mits de informatie niet wordt gebruikt in een ander werk of publicatie in welk medium dan ook.
Het beheer van de pagina's en de getoonde content op deze website wordt beheerd door Deniq Vastgoed.

Kenmerken