Beschrijving

Over deze woning

In de geliefde wijk Daalhof in Maastricht ligt dit knusse en gezellige parterre-appartement met een eigen tuin. De woning maakt deel uit van een kleinschalig appartementencomplex, maar dankzij de eigen entree vanaf de straatzijde voelt het als een zelfstandige woning. Een ideale plek voor wie comfortabel en gelijkvloers wil wonen, met alle dagelijkse voorzieningen om de hoek.

Van binnen

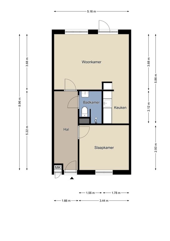
Via de eigen voordeur kom je binnen in de hal, die toegang biedt tot de woonkamer, slaapkamer en badkamer. De lichte woonkamer met open keuken heeft een gezellige indeling en directe toegang tot de tuin. De keuken is praktisch ingericht en voorzien van een keramischekookplaat, vaatwasser en koelkast. De slaapkamer ligt aan de rustige zijde van de woning, terwijl de badkamer is uitgerust met een douche, toilet, wastafel en aansluiting voor de wasmachine. De woning wordt verwarmd via een collectieve verwarmingsinstallatie en heeft een elektrische boiler (eigendom) voor warm water.

Van buiten

Achter de woning ligt een onderhoudsvriendelijke tuin, voldoende ruim om met vrienden te genieten van zonnige dagen. Dankzij de westelijke ligging kun je hier na een werkdag nog heerlijk van de zon genieten. De tuin is bereikbaar via de woonkamer en heeft bovendien een achterom. Parkeren doe je gemakkelijk op de parkeerplaats behorende bij het complex. Daarnaast is er een eigen berging aanwezig voor extra opslagruimte én is er een gezamenlijke fietsenstalling én een separate berging voor bromfietsen.

De omgeving

Daalhof is een rustige en gewilde woonwijk aan de rand van Maastricht, met een fijne mix van jonge gezinnen, stellen en senioren. In de directe omgeving vind je supermarkten, basisscholen, openbaar vervoer, een huisarts, fysiotherapeut en diverse sportvoorzieningen. Binnen enkele minuten fietsen bereik je zowel het recreatiegebied De Dousberg als het bruisende stadscentrum van Maastricht. De wijk heeft een gunstige ligging ten opzichte van uitvalswegen en biedt een prettige balans tussen stedelijk gemak en natuurlijke rust.

De buurt

Daalhof is in de jaren zeventig en tachtig ontwikkeld als ruim opgezette woonwijk met veel groen en brede lanen. De wijk heeft een vriendelijke en veilige uitstraling, met een actief buurtleven en goede voorzieningen. Bewoners waarderen vooral de gemoedelijke sfeer, de kindvriendelijke omgeving en de nabijheid van het stadscentrum. Een fijne plek voor wie op zoek is naar rust, ruimte en bereikbaarheid.

Bijzonderheden

- Knus en gezellig parterre-appartement met eigen entree;
- Onderhoudsvriendelijke tuin met achterom op het westen;
- Praktisch ingerichte keuken met inductiekookplaat, vaatwasser en koelkast;
- Eigen berging en parkeerplaats bij het complex;
- Energielabel C.

Overig

Deze informatie is door ons met de nodige zorgvuldigheid samengesteld. Onzerzijds wordt echter geen enkele aansprakelijkheid aanvaard voor enige onvolledigheid, onjuist of anderszins, dan wel de gevolgen daarvan. Alle opgegeven maten en oppervlakten zijn indicatief. Van toepassing zijn de algemene voorwaarden.

Ter bescherming van de belangen van zowel koper als verkoper, wordt uitdrukkelijk gesteld dat een koopovereenkomst met betrekking tot deze onroerende zaak eerst dan tot stand komt nadat koper en verkoper de koopovereenkomst hebben getekend ("schriftelijkheidsvereiste").
De termijn die wordt opgenomen voor eventuele (overeengekomen) ontbindende voorwaarden (bv. financiering) is in de regel 4 tot 6 weken na het sluiten van de mondelinge wilsovereenkomst.
De waarborgsom/bankgarantie is 10% van de koopsom. De koper dient deze 2 weken ná het vervallen van de ontbindende voorwaarden bij de desbetreffende notaris te deponeren.
Koper is te allen tijde gerechtigd voor eigen rekening een bouwkundige keuring te (laten) verrichten dan wel andere adviseurs te raadplegen teneinde een goed inzicht te verkrijgen over de staat van onderhoud.

Gehele of gedeeltelijke overname, plaatsing op andere sites, verveelvoudiging op welke andere wijze dan ook en/of commercieel gebruik van deze informatie (zoals foto's, plattegronden, teksten etc.), is niet toegestaan, tenzij hiervoor uitdrukkelijk schriftelijke toestemming is verleend door Deniq Vastgoed, of tenzij aan de onderstaande voorwaarden wordt voldaan.
Deze informatie mag worden bekeken op een scherm, gedownload worden op een hard-disk of geprint worden, mits dit geschied voor persoonlijk, informatief en niet-commercieel gebruik, mits de informatie niet gewijzigd wordt, en mits de informatie niet wordt gebruikt in een ander werk of publicatie in welk medium dan ook.
Het beheer van de pagina's en de getoonde content op deze website wordt beheerd door Deniq Vastgoed.

Kenmerken