Beschrijving

Direct achter de Turfmarkt staat een markante vrijstaande woning met een garage uit 1864. Dicht tegen het idyllische dorpscentrum van Makkum aan. Doordat de badkamer en een slaapkamer op de begane grond zijn, is het een levensloopbestendige woning. En dus ook uitstekend geschikt voor mensen met een beperking.

Wat opvalt als je voor de woning staat, is de mooie voortuin en de karakteristieke voorgevel. En achter deze voorgevel zit een verrassende ruimte.

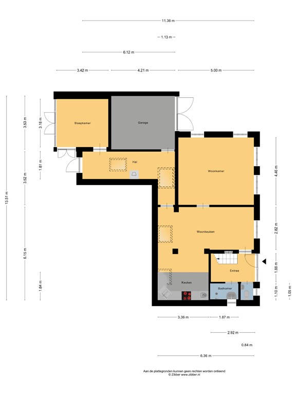
Via de hal met toilet kom je in de badkamer met douche en wastafel en in de ruime L-vormige woonkeuken met inbouwapparatuur en een plavuizenvloer met vloerverwarming. De gezellige woonkamer heeft leuk zicht op de voortuin. Laat je inspireren door de artist impressions van de mogelijkheden die deze ruimte biedt.

Via de gang met achteringang kom je in de garage met vliering, met daarachter de extra slaapkamer met openslaande deuren naar de tuin.
De tuin is besloten, heeft ruim uitzicht, ligt zonnig op het westen en is 12 meter diep.

Via een ruime overloop met dakkapel kom je in een viertal slaapkamers met een dakkapel.
Er is ook nog een zolderruimte waar je heel wat spullen kwijt kunt.

Verrassende woning hè? En dan ook nog eens op een prachtige locatie dichtbij het gezellige dorpscentrum, waar alle voorzieningen aanwezig zijn. Maak snel een afspraak voor het Start Open Huis op vrijdag 17 april. Leuk, tot dan!


Exoneratiebeding
De informatie is met grote zorgvuldigheid samengesteld. Desondanks aanvaardt de verkoper noch Hilbert Makelaardij enige aansprakelijkheid voor de onjuistheid van gegevens. De koper kan aan de inhoud van de vermelde informatie geen enkel recht ontlenen. Hij dient zelf onderzoek te plegen naar alle aspecten van de woning die voor hem van belang zijn.

Kenmerken