| Prijs | € 550.000,- k.k. |
| Type object | Woonhuis, eengezinswoning, vrijstaande woning |
| Perceeloppervlakte | 436 m² |
| Woonoppervlakte | 139 m² |
| Aanvaarding | In overleg |
| Status | Verkocht |
Een leuke en ruime vrijstaande woning. Met een extra kamer op de begane grond en een ruime tuin op het zuiden. Gelegen in een rustig en vriendelijk hofje, waar je alleen bestemmingsverkeer tegenkomt. En rij je het hofje uit? Dan zit je zo op de A7 en ben je binnen een uur bij Amsterdam, Groningen of Zwolle. Op de 9 meter lange oprit naar de garage is plek voor twee auto's. Aan de zijkant van de woning bevindt zich de entree. Via de ruime hal met toilet kom je in de L-vormige woonkamer met laminaatvloer en een doorkijkje naar de landerijen. De halfopen keuken is voorzien van diverse inbouwapparatuur. In de aanbouw vind je de bijkeuken met wasmachineaansluiting en een wastafel. Dankzij de extra kamer op de begane grond is de woning levensloopbestendig. Ideaal als werkkamer of slaapkamer. Via de bijkeuken heb je ook toegang tot de verwarmde en geïsoleerde garage. De ruime achtertuin ligt op het zuiden en is 9 meter diep en 18 meter breed. Daarnaast is er een zijtuin, een vrijstaande houten berging en een achterom. Op de verdieping zijn drie slaapkamers, waarvan één over de volle breedte van de woning. De badkamer beschikt over een douche, toilet en wastafel. Via een vaste trap kom je op de ruime bergzolder, waar eventueel nog een extra kamer gemaakt kan worden. Nou, krijg je al zin in deze leuke en ruime vrijstaande woning? En dan ook nog eens op zo'n uniek plekje in een hofje? Maak snel een afspraak voor een bezichtiging. Tot dan! Exoneratiebeding De informatie is met grote zorgvuldigheid samengesteld. Desondanks aanvaardt de verkoper noch Hilbert Makelaardij enige aansprakelijkheid voor de onjuistheid van gegevens. De koper kan aan de inhoud van de vermelde informatie geen enkel recht ontlenen. Hij dient zelf onderzoek te plegen naar alle aspecten van de woning die voor hem van belang zijn.
| Referentienummer | 00315 |
| Vraagprijs | € 550.000,- k.k. |
| Status | Verkocht |
| Aanvaarding | In overleg |
| Laatste wijziging | Zaterdag 7 februari 2026 |
| Type object | Woonhuis, eengezinswoning, vrijstaande woning |
| Soort bouw | Bestaande bouw |
| Toegankelijkheid | Mindervaliden Senioren |
| Bouwperiode | 2000 |
| Dakbedekking | Bitumen Dakpannen |
| Type dak | Zadeldak |
| Keurmerken | Energie prestatie advies |
| Isolatievormen | Dakisolatie Dubbel glas Muurisolatie Vloerisolatie Volledig geïsoleerd |
| Perceeloppervlakte | 436 m² |
| Woonoppervlakte | 139 m² |
| Woonkameroppervlakte | 64,94 m² |
| Keukenoppervlakte | 8,93 m² |
| Inhoud | 637 m³ |
| Oppervlakte overige inpandige ruimten | 32 m² |
| Aantal bouwlagen | 3 |
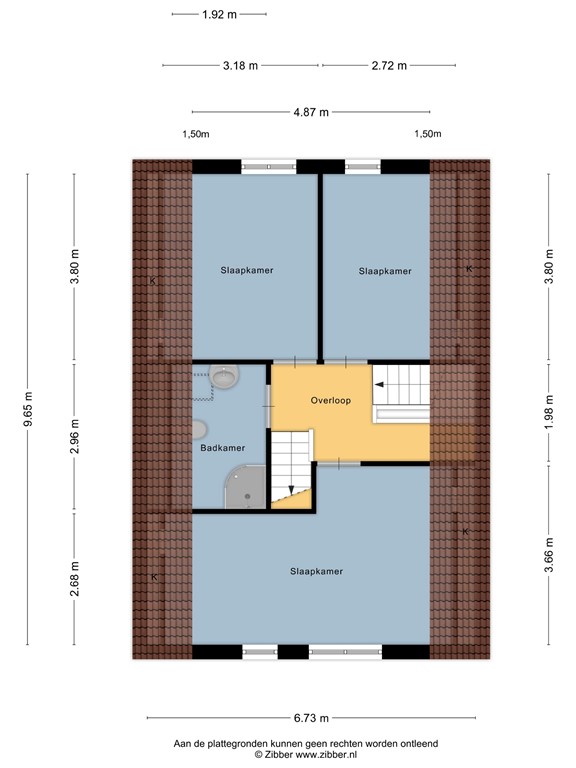
| Aantal kamers | 5 (waarvan 4 slaapkamers) |
| Aantal badkamers | 1 (en 1 apart toilet) |
| Ligging | Beschutte ligging Dichtbij openbaar vervoer In woonwijk Nabij school |
| Type | Voortuin |
| Oriëntering | Noorden |
| Staat | Goed onderhouden |
| Tuin 2 - Type | Achtertuin |
| Tuin 2 - Hoofdtuin | Ja |
| Tuin 2 - Oriëntering | Zuiden |
| Tuin 2 - Staat | Goed onderhouden |
| Tuin 3 - Type | Zijtuin |
| Tuin 3 - Oriëntering | West |
| Energielabel | B |
| CV ketel | Intergas HRC |
| Warmtebron | Gas |
| Bouwjaar | 2020 |
| Combiketel | Ja |
| Eigendom | Eigendom |
| Aantal parkeerplaatsen | 3 |
| Aantal overdekte parkeerplaatsen | 1 |
| Warm water | CV-ketel |
| Verwarmingssysteem | Centrale verwarming |
| Ventilatie methode | Mechanische ventilatie Natuurlijke ventilatie |
| Keukenvoorzieningen | Inbouwapparatuur |
| Badkamervoorzieningen | Douche Toilet Wastafel |
| Parkeergelegenheid | Aangebouwde stenen garage |
| Heeft kabel-tv | Ja |
| Tuin aanwezig | Ja |
| Heeft een garage | Ja |
| Beschikt over een internetverbinding | Ja |
| Heeft schuur/berging | Ja |
| Heeft een dakraam | Ja |
| Heeft een schuifpui | Ja |
| Heeft zonwering | Ja |
| Heeft ventilatie | Ja |
| Kadastrale aanduiding | Makkum F 510 |
| Perceeloppervlakte | 436 m² |
| Omvang | Geheel perceel |
| Eigendomsituatie | Eigen grond |