Beschrijving

Achter de dijk, met de sluizen naar het IJsselmeer, ligt midden in het centrum van het idyllische watersportdorp Makkum een unieke woning. Het zijn namelijk twee woningen die bij elkaar zijn gevoegd. Ieder met een eigen entree. Verticaal en horizontaal met elkaar verbonden. Daardoor is dit pand uitstekend geschikt voor dubbele bewoning, werken aan huis, of wonen met kantoor of winkel. Multifunctioneel dus!

En dan ook nog eens op deze toplocatie, midden in het gezellige dorpscentrum. Aan de voorzijde vind je een entree naar de voormalige winkel, met mooie Makkumer aardewerktegels van Tichelaar. Deze ruimte is nog helemaal naar eigen wens in te vullen. Bijvoorbeeld met een woonkeuken en woonkamer, of juist weer als winkel- en/of kantoorruimte. Zie de artist impressions bij de foto’s en in de video. Je kunt ook via de achterzijde binnenkomen, via een gang met keuken. En je kunt op twee manieren naar boven. Je kunt de panden dus zowel verticaal als horizontaal indelen.

Op de eerste verdieping is nu de woonkamer met de halfopen keuken. Dat is vroeger ook kantoorruimte geweest. Via een doorloop, met een deur naar het terrasje op het westen, kom je in een ruimte die voorheen als vergaderruimte werd gebruikt, maar die ook prima als slaapkamer kan dienen.

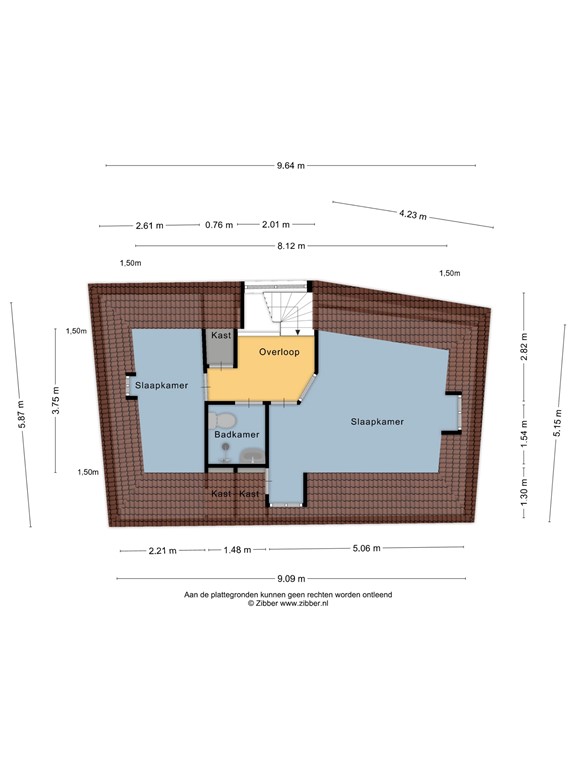
Op de tweede verdieping zijn er nog eens twee slaapkamers met dakkapellen en een badkamer met douche, wastafel en toilet. En er is een vliering.

Als je heerlijk buiten wilt ontspannen, kan dat in de ommuurde dorpstuin van 9 meter breed en 6 meter diep. Op het zuiden, dus het zonnetje komt er ook lekker bij.

Nou, wat een mogelijkheden hè! En dan ook nog eens in dit prachtige dorp aan het IJsselmeer. Met de jachthavens, het beachresort en de boulevard met gezellige terrasjes. Alle voorzieningen zijn hier aanwezig. Je bent ook zo op de A7 en binnen een uur in Amsterdam, Groningen of Zwolle. Maak snel een afspraak, leuk tot dan!

Exoneratiebeding
De informatie is met grote zorgvuldigheid samengesteld. Desondanks aanvaardt de verkoper noch Hilbert Makelaardij enige aansprakelijkheid voor de onjuistheid van gegevens. De koper kan aan de inhoud van de vermelde informatie geen enkel recht ontlenen. Hij dient zelf onderzoek te plegen naar alle aspecten van de woning die voor hem van belang zijn.

Kenmerken