Beschrijving
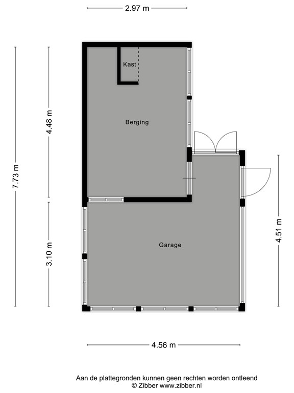
Deze knusse hoekwoning met een grote schuur is volledig geïsoleerd en heeft 6 zonnepanelen. Je loopt zo naar het gezellige dorpscentrum, een grote supermarkt, openbaar vervoer, scholen en winkels.
Via de hal, met een deur naar de kelder, kom je in de gezellige en lichte doorzonwoonkamer. De knusse keuken heeft een elektrische boiler en een originele lavetruimte. Er is ook een doucheruimte. De tuin ligt heerlijk op het zuiden en is 10 meter diep en 8 meter breed. Er is een ruime doorgang naar de grote vrijstaande stenen schuur. Ook de voortuin is maar liefst 8 meter breed.
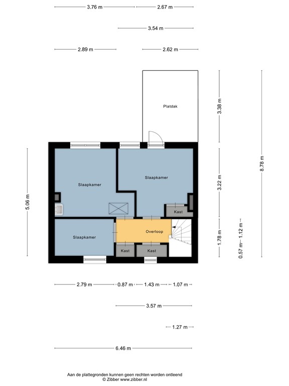
Op de verdieping zijn drie slaapkamers, waarvan één met een vaste kast en een deur naar het platje. Via een vlizotrap kom je op de bergzolder.
Makkum is een zeer geliefd watersportdorp met de oude haven en de sluizen naar het IJsselmeer. Denk ook aan de jachthavens, een recreatiepark en het strand met een gezellige boulevard aan het IJsselmeer.
Nou, krijg je er al zin in om in deze knusse hoekwoning met een grote schuur en een ruime tuin op het zuiden te gaan wonen? Maak dan snel een afspraak. Tot dan!
Exoneratiebeding
De informatie is met grote zorgvuldigheid samengesteld. Desondanks aanvaardt de verkoper noch Hilbert Makelaardij enige aansprakelijkheid voor de onjuistheid van gegevens. De koper kan aan de inhoud van de vermelde informatie geen enkel recht ontlenen. Hij dient zelf onderzoek te plegen naar alle aspecten van de woning die voor hem van belang zijn.
Plattegronden
175873120_1572423_lieuw_begane_grond_first_design_20250820_6bb2ee.jpg
175873120_1572423_lieuw_eerste_verdiepi_first_design_20250820_dc14f9.jpg
175873120_1572423_lieuw_zolder_first_design_20250820_39562a.jpg
175873120_1572423_lieuw_kelder_first_design_20250820_e6396e.jpg
175873120_1572423_lieuw_garage_first_design_20250820_a80b7a.jpg