Beschrijving
Ben je op zoek naar een prachtig uitgebouwde en sfeervol en hoogwaardig afgewerkte woning met een slaapkamer beneden? Dan is deze fraaie 2-onder-1-kapwoning wellicht jouw nieuwe woning! Kom je kijken?
De woning kenmerkt zich door het luxe en hoogwaardige afwerkingsniveau. Doordat de woning aan de achterzijde is uitgebouwd, is een ruime woonkamer met open keuken en aparte tv-hoek ontstaan. De luxe keuken is voorzien van diverse Miele apparatuur, zoals een koffie-automaat, stoomoven en vaatwasser. Daarnaast vind je in de tv-hoek een luxe tv-wand met gashaard. De garage is omgebouwd tot werkruimte en zeer geschikt voor bijvoorbeeld een schoonheids- of kapsalon aan huis. Uiteraard kan deze ruimte ook als slaapkamer gebruikt worden.
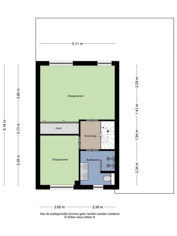
Op de eerste verdieping vind je twee slaapkamers en een luxe badkamer met onder andere een dubbele douche, sunshower en dubbel wastafelmeubel. De grootste slaapkamer is voorzien van airco. Deze is (indien gewenst) eenvoudig op te delen in twee slaapkamers.
Op de tweede verdieping vind je een ruime zolderkamer. Hier vind je tevens de cv-ketel en ruimte voor het witgoed. Ook deze ruimte is voorzien van een airco.
Achter in de tuin is een prachtig tuinhuis gerealiseerd met overdekt terras. Deze is van veel gemakken voorzien zoals elektra, sfeerverlichting en een tv-aansluiting. Je kunt hier heerlijk lang van de zomeravonden genieten.
De woning is gelegen op een hoekperceel van 362 m². Door deze hoekligging biedt de woning veel privacy. Voorzieningen zoals scholen, sportvelden en winkels zijn op loopafstand bereikbaar.
Door de goede isolatie en onder andere de aanwezigheid van 22 zonnepanelen heeft de woning energielabel A. De woning is hierdoor ook nog eens toekomstbestendig.
Bijzonderheden:
- Luxe afgewerkt;
- Ruime uitbouw over de gehele breedte van de woning;
- Slaapkamer beneden, zeer geschikt als werkruimte voor bijvoorbeeld een schoonheids- of kapsalon aan huis;
- Energielabel A: duurzaam en energiezuinig;
- Gelegen in een rustige en kindvriendelijke buurt;
- Op loopafstand van voorzieningen zoals scholen, sportvelden en het centrum van Marum;
- Uitvalswegen in de buurt: binnen 3 minuten op weg richting Groningen of Drachten;
Zie jij jezelf hier al wonen? Neem dan snel contact op voor een bezichtiging!
Plattegronden
456562_2D_Begane_grond_Marga_Klompelaan_1_Marum_02.jpg
456562_2D_Eerste_Verdieping_Marga_Klompelaan_1_Marum_03.jpg
456562_2D_Tweede_verdieping_Marga_Klompelaan_1_Marum_04.jpg
456562_2D_Berging_Marga_Klompelaan_1_Marum_01.jpg