| Adres: | Broekseweg 64, 4231 VG Meerkerk |
| Prijs | € 2.350.000,- k.k. |
| Type object | Woonhuis, woonboerderij, vrijstaande woning |
| Perceeloppervlakte | 6.950 m² |
| Woonoppervlakte | 812 m² |
| Aanvaarding | In overleg |
Waar landelijkheid en comfort elkaar vinden Aan de Broekseweg in Meerkerk ligt deze indrukwekkende voormalige boerderij; waarvan de eerste steen 7 juli 1871 gelegd is. Een plek die volstrekte rust ademt, maar tegelijk volop mogelijkheden biedt. Niet alleen door het vrijstaande woonhuis dat rond de eeuwwisseling in het achterhuis werd gerealiseerd, maar ook door het originele voorhuis met zijn karakteristieke uitstraling én het volledig daarvoor ingerichte vrijstaande in cederhout opgetrokken gastenverblijf . Dit alles op een perceel van maar liefst ≥ 7000 m2, met uitzicht over de uitgestrekte weilanden van de Alblasserwaard.
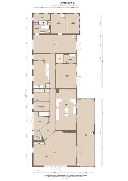
Via de lange oprit langs het voorhuis kom je uit bij de entree van het woonhuis. Op de plaats waar de oorspronkelijke hooideuren zaten is een imposante glazen gevel gekomen die de hal en trapopgang markeert. Hierdoor ervaar je meteen het ruimtelijke karakter van dit huis. De hal is licht en royaal, met aan de linkerzijde een erg ruim toilet . Vervolgens betreed je via de lange gang de woonkamer: een riante leefruimte met grote raampartijen, meerdere zithoeken, een Harrie Leenders houtkachel en dubbele tuindeuren naar het aangrenzende terras Aan de andere zijde van de woning ligt de aangrenzende serre/tuinkamer van ruim 60 m2. Deze ruimte is rondom voorzien van glas, waardoor je vanuit iedere hoek contact houdt met de tuin, boomgaard en het achterliggende landschap. Er is ruimte voor een lange eettafel, een leestafel of een creatieve werkplek. De prachtige speksteenkachel zorgt - los van de vloerverwarming -voor comfort in de winter, de zonwering doet datzelfde in de zomer. De keuken is ruim opgezet en vormt het kloppend hart van het woonhuis. Centraal staat een groot kookeiland. De keuken is semi-professioneel ingericht en van alle gemakken voorzien: een stoomoven, magnetron, aparte oven, warmhoud-lade, grote inductiekookplaat én een geïntegreerde wokbrander bieden alle ruimte voor koken op niveau. Daarnaast is onder een afneembare aanrechtblad ook een grilplaat en een frituur met onder-afzuigkap aangebracht. Tevens ruimte voor professioneel koffie en thee zetten met o.a. een extra kraan met omgekeerde osmose water speciaal voor thee zetten. De opstelling is strak en functioneel, met hoogwaardige apparatuur en een efficiënte indeling die iedere kookliefhebber zal aanspreken. Tegen de wand staat een op maat gemaakte wandtafel van massief eikenhout – een plek die uitnodigt tot langer blijven zitten. Ideaal voor een snelle kop koffie, het doornemen van de dag, of als rustige thuiswerkplek. De combinatie van praktische elementen en karaktervolle inrichting maakt deze keuken tot een plek waar je graag tijd doorbrengt. Vanuit de keuken loop je zo de bijkeuken in, met extra opbergruimte en kasten en extra koel- en vriesruimte. Verder is vanuit de gang via een vaste trap de droge prefab kelder (≥ 9 m2) bereikbaar voor o.a. de wijnen. Vanuit de gang begane grond is er tevens een doorloopmogelijkheid binnendoor naar het voorhuis. Tevens is een werkplaats voor o.a. gereedschap bereikbaar en een extra bijkeuken met o.a. kasten voor Electra, wateronthardingssysteem, data en TV’s, en centraal stofzuigersysteem.
Op de eerste verdieping liggen viervolwaardige slaapkamers waarvan 3 in de kamer een afsluitbare eigen douche en toiletruimte hebben, Tevens een zeer slaapkamer (≥ 30 m2)met eigen openhaard, balkon en prachtig uitzicht over de achtergelegen weilanden. De naastliggende zeer ruime badkamer (+ 35 m2) is stijlvol uitgevoerd met een groot meer persoons bubbel-ligbad, Turkse stoomdouchecabine, separate ruime inloopdouche, grote sauna, wastafel en toilet alsmede extra ruimte voor was en droogmachine.
Op de royale tweede verdieping zijn twee ruime slaapkamers. Een slaapkamer aan de voorzijde (+ 30 m2), met aangrenzend extra opbergruimtes en een badkamer met douche, ligbad en toilet. Aan de achterzijde kom je, via de royale dressing , in de master-bedroom (≥35 m2). Deze kamer heeft een grote raampartij waardoor er geweldig uitzicht over de landerijen is. Een genot om hier in de ochtend wakker te worden en ’s avonds te genieten van het avondlicht over de velden. Op deze verdieping is er nog een aparte technische ruimte met cv-installatie, luchtcirculatie-systeem en extra bergruimte.
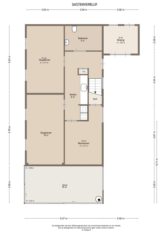
Voorhuis – karakter en potentie Aan de voorzijde van het perceel bevindt zich het oorspronkelijke maar ook geheel verbouwde, geïsoleerde en gemoderniseerde boerderijdeel. Met zijn klassieke gevel, rieten kap en nostalgische uitstraling is dit een charmante plek met veel potentie. Beneden zijn er twee zelfstandige appartementen. Aan de voorzijde appartement één met een centrale entree, twee kamers en een zeer moderne badkamer met stoomdouche, dubbele wastafels en toilet. Daarnaast een tweede appartement, met een ruime woonkeuken, slaapkamer en eveneens ruime eigen badkamer, dubbele wastafels, douche en toilet. De 1e etage is voorzien van een eigen opgang. En ingedeeld met een zeer ruime woonkamer, een keuken, twee slaapkamers en een eigen badkamer. Authentieke elementen, zoals de houten kapconstructie, zijn hier nog zichtbaar. Deze ruimte is ideaal te benutten als gastenverblijf, kantoor, atelier of zelfstandige wooneenheid. Gastenverblijf – verzorgd, compleet en verhuurklaar Helemaal achter op het erf staat een degelijk gebouwde cederhouten gastenverblijf, volledig ingericht als gastenverblijf of B&B. De indeling is overzichtelijk en praktisch. Op de begane grond is een ruime woonkamer met aangrenzende serre met houtkachel. Er zijn ook twee slaapkamers en een (ook geschikt voor invaliden) badkamer met toilet op de begane grond. De verdieping beschikt over 2 ruime slaapkamers, een badkamer met een zeer groot bad en aparte douche en een separaat toilet; alsmede een was en droogmachine ruimte. Alle verblijven zijn netjes afgewerkt, geïsoleerd en afsluitbaar. Dankzij deze opzet is het gastenverblijf ideaal voor gebruik als B&B, mantelzorgwoning of tijdelijke verhuur. De inrichting is modern, licht en comfortabel.
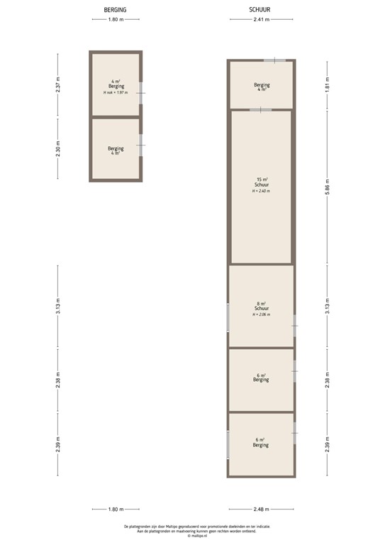
Puur genieten van het landschap Het erf ademt rust en vrijheid. Rondom de woning ligt een verzorgd aangelegde tuin met meerdere terrassen, zodat je op elk moment van de dag kunt kiezen voor zon of schaduw. Aan de zuidzijde van het hoofdverblijf ligt een ruim betegeld terras met uitzicht over de omliggende weilanden, waar de horizon eindeloos lijkt. Hier ervaar je elke dag opnieuw het ritme van de seizoenen. De beukenhagen, leibomen en vaste planten geven structuur en groenbeleving, zonder dat het onderhoud intensief is. Aan de zijkant van het perceel biedt een breed pad toegang tot het achter terrein, waar voldoende ruimte is voor parkeren (≥ 10 auto’s), manoeuvreren of het ontvangen van gasten. Hier bevinden zich ook de aparte entree van het verhuurdeel en de extra bergingen. De achterliggende schuur is opgetrokken in gepotdekselde delen en vormt samen met de inrichting van het erf een fraai geheel. De combinatie van open ruimte en functionele indeling maakt dit erf zowel praktisch als sfeervol. En met daarachter nog meer dan 1.500 m² grondoppervlak is er altijd ruimte voor nieuwe plannen: een moestuin, een paardenbak, een mantelzorgwoning, het houden van kleinvee of gewoon puur genieten van het buitenleven.
Meerkerk, centraal in de Alblasserwaard Meerkerk is een levendig dorp met een landelijke ligging en een verrassend compleet voorzieningenniveau. Het dorp beschikt over 2 basisscholen, diverse sportverenigingen en een supermarkt voor de dagelijkse boodschappen en een uitgebreid medisch centrum met meerdere huisartsen, fysio, apotheek, een grote en tandartsenpraktijk, etc.. Wat Meerkerk écht bijzonder maakt, is de omliggende omgeving: een streek met authentieke boerderijen, lokale producenten en ambachtelijke ondernemers. Zo haal je bij Vleesboerderij Barten duurzaam rund- en varkensvlees direct van het erf, kun je je eigen vis vangen bij de nabijgelegen forellenvijver, of proef je verse zuivel bij boerderijwinkels in de omgeving. De centrale ligging tussen de A27 en A15 zorgt voor een goede bereikbaarheid, met steden als Gorinchem, Dordrecht, Utrecht en Breda op korte afstand. Eveneens zeer goede busverbindingen met onder meer genoemde steden. Tegelijkertijd biedt het landschap rondom Meerkerk volop ruimte, rust en groen. Een omgeving waar je vrij woont, maar niets hoeft te missen. Technische kenmerken - Het huis beschikt over 3 geheel gescheiden CV installaties (Nefit ECO HR ketels) en boilers. - Alle installaties hebben van meet af aan jaarlijks hun onderhoudsbeurten gehad en zijn goed bijgehouden. - Eveneens zijn er 2 geheel gescheiden centrale stofzuigerinstallaties (in hoofdhuis en voorhuis). - In de keuken in het hoofdgebouw is een extra warmwaterboiler in de aanrechtkast voor snel warm water. - Tevens is in de keuken een extra kraan die speciaal water levert voor thee (omgekeerde osmose). - In het hoofdhuis is een centrale automatische ontziltingsinstallatie (beduidend minder kalkaanslag tegelwerk). - In hoofd- en voorwoning zijn 2 gescheiden lucht-ventilatie systemen aangebracht met elk meerdere inlaatpunten.\ - Er is ongeveer 300 m2 vloerverwarming (speciaal extra dik WTH-slang) in voor- en hoofdwoning aangebracht. - De 4 vloerverwarmingsverdeelstations sturen totaal 32 groepen vloerverwarming aan. - Alle met vloerverwarming uitgeruste ruimtes kunnen separaat met eigen thermostaat geregeld worden. - Totaal voor-, hoofd- en bijgebouw zijn er 29 radiatoren, waarvan een groot deel design-radiatoren. - Totaal zijn er ca. 15 buitenkranen; gedeeltelijk drinkwater en gedeeltelijk oppomp-buitenwater (besproeiing). - Totaal zijn er 28 kranen met zowel koud als warm water. - Praktisch alle slaapvertrekken hebben verduisteringsgordijnen en/of horren. - Het huis heeft in 2024 energielabel B ontvangen na uitgebreide en zeer gedetailleerde metingen.
| Referentienummer | 06950 |
| Vraagprijs | € 2.350.000,- k.k. |
| Aanvaarding | In overleg |
| Laatste wijziging | Dinsdag 30 september 2025 |
| Type object | Woonhuis, woonboerderij, vrijstaande woning |
| Soort bouw | Bestaande bouw |
| Toegankelijkheid | Mindervaliden |
| Bouwperiode | 2000 |
| Dakbedekking | Dakpannen Riet |
| Type dak | Zadeldak |
| Keurmerken | Brandveiligheid |
| Isolatievormen | Dakisolatie Dubbel glas Muurisolatie Spouwmuren Vloerisolatie Volledig geïsoleerd |
| Perceeloppervlakte | 6.950 m² |
| Woonoppervlakte | 812 m² |
| Inhoud | 2.858 m³ |
| Oppervlakte overige inpandige ruimten | 28 m² |
| Oppervlakte externe bergruimte | 47 m² |
| Oppervlakte gebouwgebonden buitenruimte | 6,6 m² |
| Balkonoppervlakte | 6 m² |
| Aantal bouwlagen | 3 (en 1 kelder) |
| Aantal kamers | 18 (waarvan 14 slaapkamers) |
| Aantal badkamers | 10 (en 2 aparte toiletten) |
| Ligging | Aan rustige weg Aan water Open ligging Platteland Vrij uitzicht |
| Type | Tuin rondom |
| Hoofdtuin | Ja |
| Oriëntering | West |
| Heeft een achterom | Ja |
| Staat | Prachtig aangelegd |
| Energielabel | B |
| CV ketel | HR ketels (meerdere) |
| Warmtebron | Gas |
| Bouwjaar | 2015 |
| Combiketel | Ja |
| Eigendom | Eigendom |
| Aantal parkeerplaatsen | 12 |
| Warm water | CV-ketel |
| Verwarmingssysteem | Centrale verwarming Houtkachel Vloerverwarming (gedeeltelijk) |
| Ventilatie methode | Mechanische ventilatie |
| Badkamervoorzieningen Badkamer 3 | Douche Dubbele wastafel Inloopdouche Jacuzzi Sauna Stoomcabine Toilet Vloerverwarming Wasmachineaansluiting |
| Badkamervoorzieningen Badkamer 8 | Douche Ligbad Toilet Wastafel |
| Heeft een balkon | Ja |
| Heeft een rookkanaal | Ja |
| Tuin aanwezig | Ja |
| Beschikt over een internetverbinding | Ja |
| Heeft een sauna | Ja |
| Heeft schuur/berging | Ja |
| Heeft een dakraam | Ja |
| Heeft een schuifpui | Ja |
| Heeft zonwering | Ja |
| Heeft een stoomcabine | Ja |
| Heeft ventilatie | Ja |