Beschrijving
*Royale twee-onder-een-kapwoning op een rustige toplocatie – Van Lyndenstraat 10-A*
Deze twee-onder-een-kapwoning is een heerlijk huis voor gezinnen, starters én doorstromers die waarde hechten aan comfortabel wonen, veel licht en een groene, rustige ligging.
*Ruimte om te leven én te genieten*
De woning (1984) staat op een royaal perceel van 400 m². De diepe, zonnige achtertuin is een geweldige plek voor iedereen: kinderen hebben alle ruimte om te spelen, huisdieren kunnen vrij rondlopen en liefhebbers van tuinieren of ontspanning kunnen er hun eigen groene paradijs creëren. Dankzij de ruime opzet van het perceel en de aangrenzende achtertuinen geniet je bovendien van optimale privacy.
*Een lichte, praktische leefruimte*
Via de entree stap je binnen in de lichte woonkamer, waar de brede schuifpui zorgt voor veel daglicht en een fijne verbinding met de tuin. De woonkamer is royaal opgezet en biedt volop mogelijkheden om jouw ideale zit- en eetkamerindeling te realiseren.
De moderne keuken (2012) bevindt zich aan de voorzijde en biedt een prettige werkruimte met uitzicht op de straat.
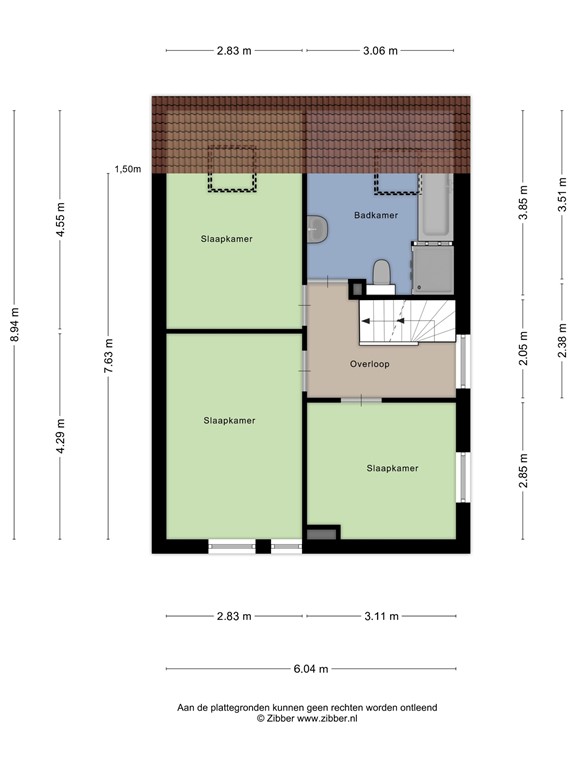
*Drie slaapkamers en tal van mogelijkheden*
Op de eerste verdieping vind je drie keurige slaapkamers – ideaal voor een gezin, logees of een rustige thuiswerkplek. De badkamer is netjes, ruim en voorzien van een ligbad, aparte douche en tweede toilet.
De tweede verdieping is een grote plus: de zolder is ruim en eenvoudig om te toveren tot één of zelfs twee extra kamers. Perfect als je meer woonruimte wilt creëren.
*Goed onderhouden en direct te betrekken*
De woning is altijd netjes bewoond en goed onderhouden. En dankzij energielabel B woon je comfortabel en energiezuiniger.
*Rustige ligging dicht bij alles*
De Van Lyndenstraat is een rustige, groene straat. De omgeving nodigt uit tot lekker naar buiten gaan: je wandelt of fietst zó de uiterwaarden in. Voorzieningen zoals een basisschool, supermarkt, sportclubs en winkels liggen op korte loop- of fietsafstand.
Nieuwsgierig geworden?
Maak snel een afspraak voor een bezichtiging – we laten je met plezier alle mogelijkheden van Van Lyndenstraat 10-A zien.
Check de eigenwoningwebsite voor documenten en meer info: www.vanlyndenstraat10a.nl
Indeling
Entree met trapopgang, meterkast en modern toilet, ruime L-vormige woonkamer met schuifpui naar tuin en lichte, half open keuken met veel berg- en werkruimte. Bijkeuken met wasmachine-opstelling.
Eerste verdieping
De overloop geeft toegang tot drie ruime slaapkamers en een grote badkamer. De badkamer is van een goed formaat. Er is een ligbad, douche, tweede toilet en een wastafel.
Tweede verdieping
Via een vaste trap kom je op de ruime zolderverdieping met CV-opstelling. De zolder is nu in gebruik als bergruimte, maar heeft mogelijkheden. Het plaatsen van een dakkapel en daardoor een extra slaap- of werkkamer kamer maken bijvoorbeeld.
Tuin
De zonnige en diepe achtertuin (20 meter) ligt op het zuid-oosten en grenst aan andere achtertuinen. Veel vrijheid en privacy dus! De ruime garage is bereikbaar via de oprit waarop je met gemak 2 of 3 auto's kwijt kunt.
Bijzonderheden
- Ligging nabij de dijk, rivier en uiterwaarden
- Energielabel B
- Diepe en vrij gelegen achtertuin
- Ruime zolder met mogelijkheden
- Goed onderhouden
- Schuifpui naar achtertuin
- Zonnepanelen
- Dorpskern op loopafstand
- Gewenste levering eind derde kwartaal 2026 (afhankelijk van oplevering nieuwe woning)
Interesse in deze woning? Graag informeren we je over:
* de verkoopprocedure
* de financieringsmogelijkheden
* de verkoopmogelijkheden en de waarde van je huidige woning
Bel of mail ons voor een oriënterend gesprek.
Millingen aan de Rijn is gelegen in het oostelijke deel van het Rijk van Nijmegen, provincie Gelderland, in het centrum van de Duffelt, hart van de Gelderse Poort. De gemeente wordt omsloten door de Rijn en de Waal, de landgrens met Duitsland en de voormalige gemeente Ubbergen. De gezellige dorpskern van Millingen aan de Rijn telt alle winkels die nodig zijn voor een comfortabel leven. En als u meer aanbod zoekt? Binnen twintig minuten bent u in het centrum van Nijmegen en binnen tien minuten in het centrum Kleve, even over de Duitse grens.
Niemand hoeft zich te vervelen in Millingen aan de Rijn. Wist u dat het verenigingsleven hier ongekend weelderig bloeit? Schutterijen, sportclubs en biljartclubs zijn nog maar een greep uit het uitnodigende aanbod van verenigingen.
Misschien hoeven we het u niet meer te vertellen, maar Millingen aan de Rijn ligt in een prachtig natuurgebied. Uiterwaarden en bosrijke vergezichten wisselen elkaar hier in een nooit vervelende cadans af. Bijna eindeloze wandel- en fietspaden strekken zich direct buiten Millingen aan de Rijn voor u uit.
Kortom, het is veilig en vertrouwd wonen in Millingen aan de Rijn.
Plattegronden
177603364_1582794_van_l_begane_grond_first_design_20251003_1bf711.jpg
177603364_1582794_van_l_eerste_verdiepi_first_design_20251003_eead80.jpg
177603364_1582794_van_l_tweede_verdiepi_first_design_20251003_15a821.jpg
177603364_1582794_van_l_garage_first_design_20251003_43bfe7.jpg
177603364-288580510-se-140227540-1759456977618.png
177603364-288598495-se-140227540-1759456977618.png
177603364-288598798-se-140227540-1759456977618.png
177603364-288600961-se-140227540-1759456977618.png