Beschrijving

NIEUW IN DE VERKOOP!
De verkoop start met een LIVE VIDEO bezichtiging op dinsdag 28 april om 14.00 uur u kunt zich hiervoor aanmelden via de website. Daarnaast is het mogelijk om de woning op basis van INDIVIDUELE afspraken te bezichtigen. Reageer via de website of bel voor een afspraak! KOM DUS NIET NAAR DE WONING ZONDER AFSPRAAK!

CHARMANTE HOEKWONING - LICHT EN STIJLVOL WONEN MET EEN ELEGANTE LIVING EN EEN OPEN, LICHTE KEUKEN IN DIRECTE VERBINDING MET DE ZONNIGE TUIN MET ACHTEROM EN BERGING – OP LOOPAFSTAND VAN STRAND EN DUINEN
Droomt u van wonen op steenworp afstand van zee, met rust én comfort binnen handbereik? Plan vandaag nog een bezichtiging en ontdek zelf wat deze verrassend complete en sfeervolle eindwoning van ca. 74m2 u te bieden heeft!

LICHT, SFEERVOL EN VERZORGD WONEN
Deze op de hoek gelegen eengezinswoning verwelkomt u direct met een prettige lichtinval en een verzorgde uitstraling. De woning is goed onderhouden en afgewerkt met strakke wanden en een warme, natuurlijke vloer, wat zorgt voor een rustige en eigentijdse basis. De open indeling en verbinding met de keuken versterken het ruimtelijke gevoel. Dankzij de hoekligging profiteert u bovendien van een aangename hoeveelheid daglicht in de leefruimtes.

KEUKEN MET BIJZONDER VEEL DAGLICHT
De half open keuken vormt een echte blikvanger binnen de woning. Dankzij de doorkijk vanuit de woonkamer, het brede daklicht en raampartij met uitzicht op de tuin wordt deze ruimte op een natuurlijke manier verlicht, wat zorgt voor een open en aangename sfeer. Hier kookt u niet alleen praktisch, maar ook in een lichte en uitnodigende omgeving die direct prettig aanvoelt.

COMFORTABEL WONEN MET DOORDACHTE VOORZIENINGEN
In deze woning staat comfort centraal. De temperatuur is eenvoudig per ruimte te regelen via een slimme thermostaat met app, zodat u zowel in de woonkamer als in de slaapkamers altijd geniet van een aangenaam binnenklimaat. De hoofdslaapkamer is bovendien voorzien van een monoblock airco, ideaal voor warme zomernachten. Daarnaast is de woning uitgerust met muurisolatie en volledig voorzien van kunststof kozijnen met dubbel glas, wat bijdraagt aan een comfortabel leefklimaat.

FIJNE TUIN MET ACHTEROM EN BERGING
De woning beschikt over een prettige tuin waar u in alle rust kunt genieten van het buitenleven. Dankzij de gunstige hoekligging profiteert u hier gemiddeld door het jaar heen van de zon tussen circa 10.00 en 17.00 uur. De praktische zij-ingang maakt de tuin goed bereikbaar, bijvoorbeeld voor fietsen. Achterin de tuin bevindt zich een schuur, ideaal voor extra opslagruimte.

IDEALE WONING VOOR STARTERS EN JONGE GEZINNEN
Of u nu uw eerste woning zoekt of een fijne plek voor uw gezin: deze woning biedt alles wat u nodig heeft. Een overzichtelijke indeling, comfortabele voorzieningen en een ligging waar u elke dag van profiteert. Daarnaast beschikt de woning over een praktische zolder met extra bergruimte, bereikbaar via een vlizotrap – ideaal voor het netjes opbergen van seizoensspullen en overige zaken.

WONEN AAN DE DUINSTRAAT – STRAND, DUINEN EN GEZELLIGHEID OM DE HOEK
De ligging aan de Duinstraat in Monster is simpelweg uitstekend. Binnen 3 tot 5 minuten wandelt u zo het duingebied in of staat u met uw voeten in het zand op het strand. In de directe omgeving vindt u de bekende molen met daartegenover een geliefde ijswinkel – een plek waar u op zonnige dagen graag even stopt. Daarnaast parkeert u hier nog gewoon gratis in de wijk en zijn dagelijkse voorzieningen binnen handbereik.

Bent u op zoek naar een sfeervolle woning op een unieke locatie dicht bij zee? Neem dan contact met ons op en ervaar zelf de charme van deze woning!

Bijzonderheden:
•	Gebouwd in 1938;
•	Gelegen op eigen grond; 
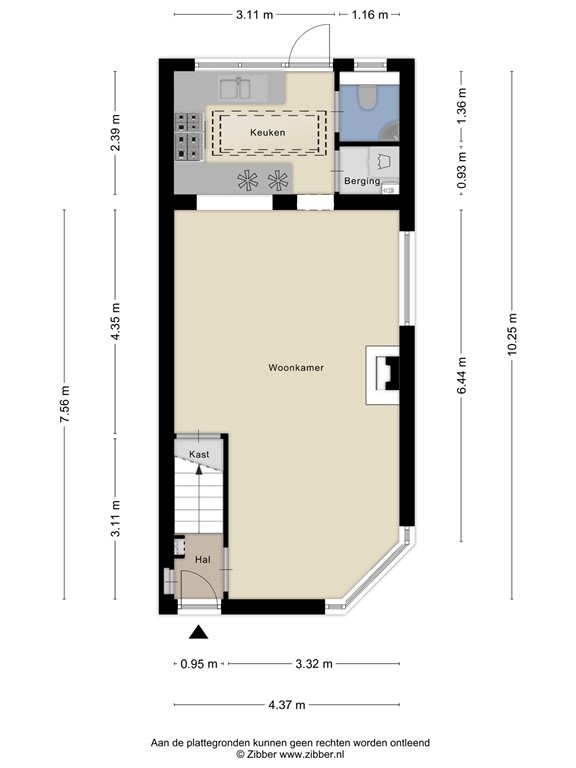
•	Gebruiksoppervlakte woonruimte 73,7 m2;
•	Energielabel D:
•   Tuin met achterom gelegen op het noordoosten;
•	Berging met elektra ca 9 m2;
•	Zolder met bergruimte te bereiken via vlizotrap;
•	Volledig voorzien van kunststof kozijnen met dubbel glas;
•	Elektra: uitgebreide groepenkast:
•	Cv-ketel merk Nefit Proline 24 KW CW 4, bouwjaar 2019;
•	Gratis parkeren in de wijk;
•	Ligging: gelegen nabij de hoofdweg, op loopafstand van het centrum en voorzieningen zoals scholen, winkels en het openbaar vervoer, en duinen en strand liggen op 3-5 minuten lopen.

Verkoopcondities:
•	Biedingen verlopen via divamakelaars.nl/eerlijkbieden 
•	Deze woning is beschikbaar voor verkoop met een aantrekkelijke minimum biedprijs;
•	Oplevering in overleg, maar op relatief korte termijn mogelijk,
•	Notaris keuze aan koper mits gelegen in Den Haag;
•	Ongeacht het bouwjaar en de staat van onderhoud zal een ouderdomsclausule worden opgenomen.

Enthousiast over deze woning, maar uw eigen woning nog niet verkocht? Neem contact op met ons kantoor voor een gratis waardebepaling. Wij plannen dan direct een afspraak met de makelaar en heeft u op korte termijn beter inzicht in uw mogelijkheden.

KAN IK DIT BETALEN?
Als extra service maken wij graag GRATIS EN VRIJBLIJVEND een hypotheek berekening door een van onze samenwerkende onafhankelijk hypotheekadviseurs. Wij kennen geen lange wachttijden waardoor vaak nog dezelfde dag een afspraak ingepland kan worden. Uiteindelijk kunnen wij indien gewenst de gehele financieringsaanvraag verzorgen.  

Wij hebben deze informatie, zoals u van ons mag verwachten, met veel zorg samengesteld. Toch komt het in uitzonderlijke gevallen voor dat blijkt dat de informatie niet volledig is. Daarom aanvaarden wij, als verkopend makelaar, geen aansprakelijkheid voor de juistheid en/of volledigheid ervan. Wat betekent dat er geen rechten ontleend kunnen worden aan de vermelde gegevens. We verstrekken u deze informatie om u uit te nodigen voor het plannen van een bezichtiging en het doen van een bod onder voorbehoud en gunning.

Toelichtingsclausule meetinstructie 
De Meetinstructie is gebaseerd op de BBMI. De Meetinstructie is bedoeld om meer eenduidige manier van meten toe te passen voor het geven van een indicatie van de gebruiksoppervlakte. De meetinstructie sluit verschillen in meetuitkomsten niet volledig uit, door bijvoorbeeld interpretatieverschillen, afrondingen of beperkingen bij het uitvoeren van de meting

Kenmerken