Beschrijving

Een complete gezinswoning in historisch Nieuwstadt

Aan de Beekstraat 33 in Nieuwstadt staat deze verzorgde tussenwoning met aanbouw, vaste trap naar de zolderverdieping en een vrijstaande garage uit 2017. De woning biedt een praktische en doordachte indeling met drie slaapkamers, een keuken uit 2021, een complete badkamer en een multifunctionele tweede verdieping. De onderhoudsvriendelijke achtertuin met overkapping en achterom maakt het geheel compleet. De roeden in de raamkozijnen geven de woning bovendien een charmante, landelijke uitstraling die mooi aansluit bij het karakter van de omgeving.

Nieuwstadt staat bekend om zijn historische karakter en charmante dorpskern, met de markante kerktoren als herkenningspunt in de omgeving. Het dorp beschikt over diverse dagelijkse voorzieningen, een basisschool en een actief verenigingsleven. Daarnaast is de ligging gunstig ten opzichte van Sittard, Geleen en de uitvalswegen richting Maastricht en Eindhoven. In de directe omgeving bevinden zich bovendien diverse wandel- en fietsroutes, waardoor ook natuurliefhebbers hier goed op hun plek zijn.

De woning is grotendeels voorzien van HR++ beglazing (met uitzondering van de voordeur en zolder) en grotendeels uitgerust met rolluiken. In 2025 is het zinkwerk van het hoofddak vernieuwd en het dak van de aanbouw is in 2019 vervangen. Daarnaast zijn er vier zonnepanelen aanwezig. De woning beschikt over energielabel D.

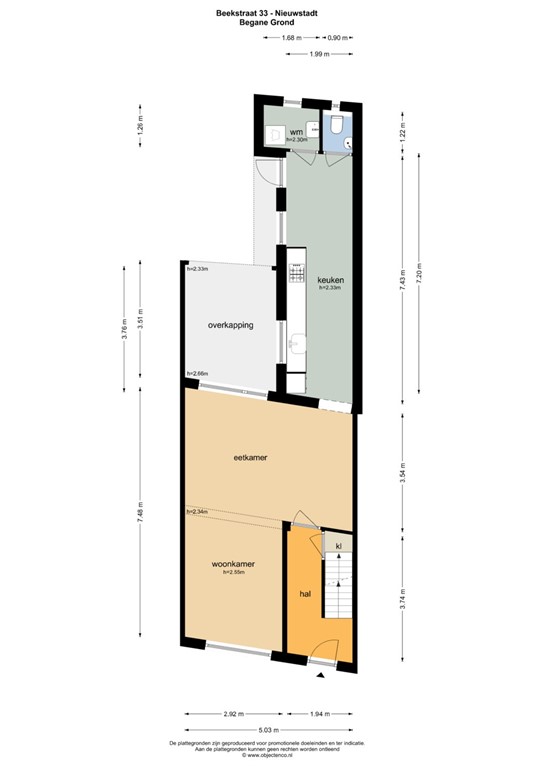
Indeling

Bij binnenkomst betreedt u de ontvangsthal met een tegelvloer, garderoberuimte en toegang tot de praktische provisiekelder, ideaal voor het opslaan van voorraad en overige spullen. Vanuit de hal loopt u door naar de woonkamer, waar de parketvloer direct warmte en sfeer geeft. Dankzij de grote raampartijen aan voor- en achterzijde valt er prettig daglicht binnen. De rolluiken zorgen voor extra comfort en privacy. De woonkamer biedt voldoende ruimte voor een gezellige zithoek aan de voorzijde en een eethoek aan de achterzijde, in directe verbinding met de keuken.

De halfopen keuken is in 2021 vernieuwd en uitgevoerd met een tegelvloer, een ruime kastindeling en voldoende werkruimte. De keuken is voorzien van AEG-inbouwapparatuur, waaronder een gasfornuis, afzuigkap, heteluchtoven en vaatwasser. Vanuit hier heeft u direct toegang tot het terras en de achtertuin. Aansluitend bevindt zich de bijkeuken met witgoedaansluitingen en het toilet, uitgevoerd met een zwevend closet en een fonteintje.

Eerste verdieping

Via de eikenhouten trap bereikt u de eerste verdieping. De overloop is afgewerkt met een laminaatvloer en biedt toegang tot drie slaapkamers en de badkamer. Alle slaapkamers zijn voorzien van een laminaatvloer en genieten van prettig daglicht. Dankzij de aanwezige rolluiken kunt u de ruimtes naar wens verduisteren. De kamers zijn praktisch van formaat en flexibel in te delen, waardoor zij geschikt zijn als slaap-, kinder-, werk- of hobbykamer. Eén van de slaapkamers beschikt bovendien over een kleine muurkast, perfect voor extra bergruimte. De badkamer is verzorgd en compleet ingericht. Hier treft u een inloopdouche met regendouche en glazen douchewand, een badkamermeubel met wastafel en spiegel met verlichting, een zwevend closet en een designradiator. Ook hier is een rolluik aanwezig.

Tweede verdieping

De tweede verdieping is bereikbaar via een vaste trap en vormt een volwaardige extra woonlaag. De gehele verdieping is afgewerkt met een linoleumvloer. Dankzij de twee dakramen valt er prettig daglicht binnen, waardoor de ruimte licht en aangenaam aanvoelt. Hier bevindt zich tevens de cv-installatie. De verdieping biedt volop mogelijkheden voor gebruik als extra slaapkamer, werkkamer of hobbyruimte. De zichtbare kapconstructie geeft het geheel bovendien een karakteristieke en sfeervolle uitstraling.

Tuin

De achtertuin is grotendeels betegeld en daardoor onderhoudsvriendelijk aangelegd. Een border met beplanting zorgt voor een groene en verzorgde uitstraling. De aanwezige verlichting en de overkapping maken het mogelijk om ook in de avonduren of bij minder goed weer comfortabel buiten te zitten. Via de achterom is de tuin eenvoudig bereikbaar en er is directe toegang tot de vrijstaande garage. 

De in 2017 gebouwde garage is zowel via de achterzijde van de tuin als via de achtergelegen oprit bereikbaar, waar u een auto op eigen terrein kunt parkeren. De garage is voorzien van een sectionaalpoort, kunststof kozijnen met HR++ beglazing en elektriciteit. De epoxy vloercoating zorgt voor een nette en duurzame afwerking, waardoor de ruimte geschikt is voor het stallen van een auto, fietsen en overige spullen.

Bijzonderheden

- Vrijstaande garage (bouwjaar 2017) met oprit
- Keuken vernieuwd in 2021 (AEG inbouwapparatuur)
- Dak aanbouw vernieuwd in 2019
- Zinkwerk hoofddak vernieuwd in 2025
- Grotendeels kunststof kozijnen met HR++ beglazing
- Grotendeels voorzien van rolluiken
- Vier zonnepanelen
- Drie slaapkamers en tweede verdieping
- Onderhoudsvriendelijke tuin met overkapping en achterom
- Energielabel D
- Gelegen in historisch en centraal Nieuwstadt

De informatie is met de nodige zorgvuldigheid door ons samengesteld. Er kunnen geen rechten worden ontleend aan deze advertentie en brochure en aanvaarden wij geen enkele aansprakelijkheid voor enige onvolledigheid, onjuistheid of anderszins, dan wel de gevolgen daarvan. Maatvoeringen en oppervlakten zijn indicatief.

Kenmerken