Beschrijving

Deze ruime maisonnette woning is centraal gelegen binnen de populaire woonwijk Hatertse Hei. 
De ligging is gunstig nabij de Radboud universiteit. In de directe omgeving zijn tal van winkels en andere voorzieningen beschikbaar. 

Het complex werd recentelijk royaal verduurzaamd. Er werden kunststof kozijnen geplaatst voorzien van tripel glas. De gevels en het dak werden geïsoleerd. Er werden zonnepanelen geplaatst. Al met al hebben deze maatregelen ervoor gezorgd dat er momenteel een gunstig energielabel A+ van toepassing is. 

De woning bestaat uit 2 woonlagen waarbij de eerste woonlaag o.a. is voorzien van een woonkamer en dichte keuken. Binnen de inpandige berging staat de CV ketel opgesteld en de wasmachine. 

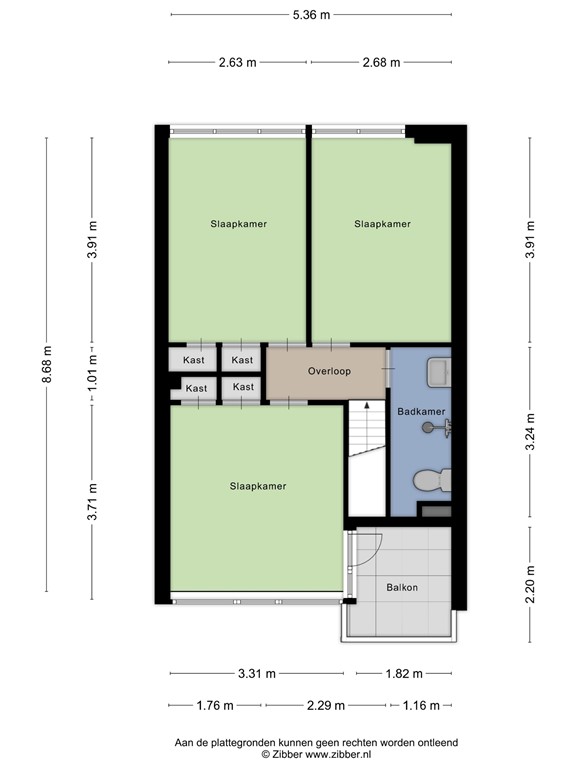
De bovenliggende woonlaag telt 3 ruime slaapkamer waarvan 1 met balkon. Er is een eenvoudige badkamer aanwezig. 

Voor de indeling en bijhorende maatvoering verwijzen wij naar de bijgaande plattegronden. 

In de onderbouw is een beging beschikbaar. 

Dit appartement zal worden opgeleverd zoals zichtbaar op de foto's en zoals getoond tijdens de bezichtiging.
De verkoper heeft de woning nooit zelf bewoond

Algemeen: 

De renovatie van het complex / de woning is enkele maanden terug afgerond
VvE bijdrage is 292,70
Gunstig energielabel A+ 
Bouwjaar complex 1964
Woonoppervlak 90 m2
Balkon 4 m2
Er is een meetrapport beschikbaar
Diverse winkels op het voorliggende plein beschikbaar

Kenmerken