Beschrijving

Op een unieke locatie in het prachtige duingebied van Noordwijk ligt deze vrijstaande bungalow (woonoppervlakte: ca. 46 m² ) met een zonnige tuin rondom en eigen parkeergelegenheid. Hier geniet u van rust, ruimte en natuur, met het strand en de duinen op korte afstand.

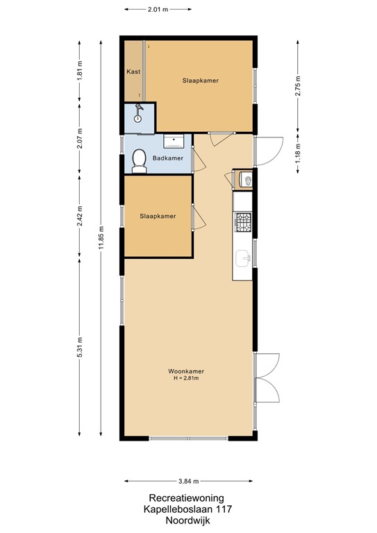
De woning is praktisch ingedeeld met een lichte woonkamer, open keuken, twee slaapkamers en een moderne badkamer. De openslaande deuren naar het terras zorgen voor een heerlijk binnen-buiten gevoel. De tuin is onderhoudsvriendelijk aangelegd en biedt meerdere zitplekken om van de zon te genieten.

Indeling:
Entree, hal met toegang tot alle vertrekken
Ruime woonkamer met veel lichtinval en openslaande deuren naar het terras
Open keuken in rechte opstelling met diverse inbouwapparatuur
Twee slaapkamers, waarvan één met vaste kastenwand
Badkamer met douche, toilet en wastafelmeubel

Tuin:
Rondom gelegen tuin van ca. 200 m² met twee terrassen, groenborders en parkeergelegenheid op eigen terrein.

Bijzonderheden:
Vrijstaande bungalow in een fraai duingebied
Rustige ligging met veel privacy
Woonoppervlakte ca. 46 m²
Perceel ca. 200 m²
Onderhoudsvriendelijke tuin met zon rondom
Goede bereikbaarheid via A4, A44 en N206
Nabij strand, zee, duinen en voorzieningen
Uitstekende verhuurmogelijkheden via Europarcs Noordwijks Duinen

Een ideale plek voor wie wil genieten van de natuur, de kust en de rust van Noordwijk!

Kenmerken