| Prijs | € 1.295.000,- k.k. |
| Type object | Woonhuis, herenhuis, half vrijstaande woning |
| Perceeloppervlakte | 998 m² |
| Woonoppervlakte | 202 m² |
| Aanvaarding | In overleg |
| Status | Onder bod |
Schitterend gelegen, verrassend ruim (202 m²), karakteristiek, half vrijstaand herenhuis (‘dubbel landhuis’) uit 1922, met een voor Oegstgeester begrippen jaloersmakend perceel van 998 m². De woning beschikt onder o.a. over een L-vormige woon-eetkamer met en suite schuifseparatie, 6 (slaap)kamers, 5 dakkapellen, ruime hal, keuken met diverse inbouwapparatuur en doorgeefleuk, bijkeuken, (wijn)kelder, 2 wc’s en bergvliering. Niet alleen een riante voortuin, maar een werkelijk schitterend aangelegde, 55 meter diepe en brede, beschutte, L-vormige achtertuin met verhoogd terras, vijver, 2 bergingen en vrijstaande stenen garage achter op het perceel (met de mogelijkheid om hier nog een extra garage te realiseren) met toegang tot het Regentessehof. De woning heeft vele authentieke details o.a. hal- en wandtegels, schouwen, erker, en-suite schuifseparatie en paneeldeuren. Na jarenlange liefdevolle bewoning dient de woning gemoderniseerd te worden, maar dan kunt u de woning ook helemaal maken zoals u dat zelf wil. De ligging is ideaal te noemen; Wandel- en Stadspark het Leidse Hout ligt tegenover de woning, de winkels en horeca van de sfeervolle ‘De Kempenaerstraat’ liggen om de hoek, diverse lagere- en middelbare scholen (waaronder internationale school Rijnlands lyceum), sport- en recreatiefaciliteiten (o.a. hockey, voetbal, tennis, golf, atletiek) en openbaar vervoer zijn op loopafstand en Bio Science Park, Universiteit van Leiden, Akzo Nobel, ESTEC en Avery liggen op fietsafstand. Gunstig gelegen ten opzichte van uitvalswegen (A4/A44) richting Amsterdam/Schiphol en Den Haag, de Kagerplassen, recreatiegebied Klinkenberger-plas en de stranden en duingebieden van Katwijk-Noordwijk-Wassenaar, maar ook het Centraal Station van Leiden (1,7 km), het gezellige historische centrum van Leiden en 2 grote ziekenhuizen (LUMC/Alrijne) liggen nabij. Ieder jaar staat Oegstgeest in de Top 10 Beste Gemeenten om in te wonen en mocht zich in 2022 de beste woongemeente van Zuid-Holland noemen (bron: Elsevier Weekblad) en is de op één na groenste gemeente van Nederland.
Diepe en brede voortuin met afsluitbare zij-achterom. Overdekte en verhoogde entree, tochtportaal met vernieuwde meterkast, ruime hal met toegang tot alle vertrekken te weten garderobe, separaat toilet, ruime (wijn)kelder, keuken en woon-eetkamer. De L-vormige woon-eetkamer met parketvloer is via 2 (paneel)deuren bereikbaar en beschikt in het eetgedeelte aan de achterzijde over openslaande deuren, doorgeefluik naar de keuken en originele en-suite schuifseparatie met inbouwkasten met roedeverdeling. Hout gestookte haard en erker in het woongedeelte aan de voorzijde. Veel lichtinval dankzij de vele raampartijen aan zowel de voor- als achterzijde met vernieuwde en op afstand bedienbare blauwwit gestreepte markiezen. Vanuit de hal, via fraaie boog, toegang tot ruime keuken aan de achterzijde met veel werk- en bergruimte o.a. voorzien van inductiekookplaat met gaspit, afzuigkap, Quooker, koelkast, oven en magnetron. Vanuit de keuken toegang tot de handige bijkeuken met opstelplaats cv-ketel (Nefit 2022) en toegangsdeur naar de achtertuin.
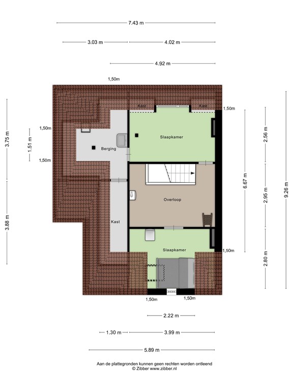
Ruime overloop met aansluiting wasapparatuur, badkamer met douche, toilet en wastafel(meubel) en 4 ruime slaapkamers (waarvan één met 3 inbouwkasten en originele schouw, één met 2 inbouwkasten en één met wastafel en airconditioning zowel warmte als koeling).
Ruime overloop met vliering en opstelplaats van vernieuwde Vaillant ketel (2023) voor warmwatervoorziening, twee slaapkamers met dakkapel waarvan één met doorloop naar een extra kamer met wastafel thans in gebruik als extra inpandige berging.
Diepe en brede voortuin met verhoogde entree (voldoende ruimte om hier een fietsenberging te realiseren). Afsluitbare zij-achterom. Beschutte, fraai beplante, brede, 55 meter diepe, L-vormige achtertuin met verhoogd terras, vijver, twee ruime vrijstaande bergingen, sprinklersysteem met gebruik van grondwater (bespaart waterkosten), robot maaier en vrijstaande stenen garage achter in het perceel. De garage met automatische roldeur is toegankelijk vanuit de Regentesselaan via het Regentesssehof en er bestaat de mogelijkheid om nog een tweede garage op eigen terrein te realiseren.
- Bouwjaar 1922 - Karakteristiek hal vrijstaand herenhuis (‘dubbel landhuis’) met veel originele details - Gebruiksoppervlakte wonen 202 m² - Overige inpandige ruimte 12 m² - Gebouw gebonden buitenruimte 2 m² - Externe bergruimte 32 m² - Inhoud woning 760 m³ - Perceel 998 m² - Centrale, kindvriendelijke ligging, in woonwijk, aan bosrand, nabij scholen, winkels en openbaar vervoer - 6 (slaap)kamers, 5 dakkapellen, 2 vrijstaande bergingen, hoge en lichte L-vorige woon-eetkamer met en suite schuifseparatie, ruime keuken, bijkeuken, (wijn)kelder, bergvliering, met 55 meter diepe L-vormige, beschutte en fraai beplante achtertuin met sprinkler en robot maaier - De woning kent nog uitbreidingsmogelijkheden denk aan een uitbouw aan de achterzijde begane grond - Plat gedeelte hoofddak woning geschikt voor 10 zonnepanelen of aan te brengen op het platte dak van de vrijstaande berging in de achtertuin - Parkeergelegenheid op eigen terrein in afgesloten garage met roldeur geschikt voor 1 auto - Energielabel E; volledig dubbelglas - Gevels gereinigd en opnieuw gevoegd - Nefit cv-ketel (2022) t.b.v. verwarming en Vaillant ketel (2023) t.b.v. warmwatervoorziening - Bouwkundige keuring Perfectkeur d.d. 14 januari 2026 aanwezig - Vele zaken blijven achter zie daarvoor de lijst van zaken - Oplevering in overleg, kan spoedig Koopakte - voor woningen ouder dan 30 jaar is de ouderdoms- en materiaalclausule van toepassing - voor woningen gebouwd voor 1993 is de asbestclausule van toepassing - niet-zelfbewoningsclausule van toepassing
| Referentienummer | 00918 |
| Vraagprijs | € 1.295.000,- k.k. |
| Status | Onder bod |
| Aanvaarding | In overleg |
| Laatste wijziging | Vrijdag 13 februari 2026 |
| Type object | Woonhuis, herenhuis, half vrijstaande woning |
| Soort bouw | Bestaande bouw |
| Bouwperiode | 1922 |
| Dakbedekking | Bitumen Dakpannen |
| Type dak | Samengesteld |
| Keurmerken | Bouwkundige keuring Energie prestatie advies |
| Isolatievormen | Dubbel glas |
| Perceeloppervlakte | 998 m² |
| Woonoppervlakte | 202 m² |
| Inhoud | 760 m³ |
| Oppervlakte overige inpandige ruimten | 12 m² |
| Oppervlakte externe bergruimte | 32 m² |
| Oppervlakte gebouwgebonden buitenruimte | 2 m² |
| Aantal bouwlagen | 4 (en 1 kelder) |
| Aantal kamers | 7 (waarvan 6 slaapkamers) |
| Aantal badkamers | 1 (en 1 apart toilet) |
| Ligging | Aan bosrand Beschutte ligging Dichtbij openbaar vervoer In bosrijke omgeving In centrum In woonwijk Nabij school |
| Type | Voortuin |
| Oriëntering | Zuidoost |
| Tuin 2 - Type | Zijtuin |
| Tuin 2 - Oriëntering | Zuid-west |
| Tuin 2 - Heeft een achterom | Ja |
| Tuin 3 - Type | Achtertuin |
| Tuin 3 - Hoofdtuin | Ja |
| Tuin 3 - Oriëntering | Noord west |
| Tuin 3 - Heeft een achterom | Ja |
| Tuin 3 - Staat | Prachtig aangelegd |
| Energielabel | E |
| CV ketel | Nefit |
| Warmtebron | Gas |
| Bouwjaar | 2022 |
| Eigendom | Eigendom |
| Aantal parkeerplaatsen | 1 |
| Aantal overdekte parkeerplaatsen | 1 |
| Warm water | CV-ketel Elektrische boiler |
| Verwarmingssysteem | Centrale verwarming |
| Keukenvoorzieningen | Inbouwapparatuur |
| Badkamervoorzieningen | Douche Toilet Wastafel Wastafelmeubel |
| Parkeergelegenheid | Vrijstaande stenen garage |
| Heeft een alarm | Ja |
| Heeft kabel-tv | Ja |
| Heeft een rookkanaal | Ja |
| Glasvezelaansluiting aanwezig | Ja |
| Tuin aanwezig | Ja |
| Heeft een garage | Ja |
| Telefoonaansluiting aanwezig | Ja |
| Beschikt over een internetverbinding | Ja |
| Heeft schuur/berging | Ja |
| Heeft een dakraam | Ja |
| Heeft zonwering | Ja |
| Kadastrale aanduiding | Oegstgeest C 5469 |
| Perceeloppervlakte | 543 m² |
| Omvang | Deel perceel |
| Eigendomsituatie | Eigen grond |
| Kadastrale aanduiding | Oegstgeest C 2051 |
| Perceeloppervlakte | 455 m² |
| Omvang | Geheel perceel |
| Eigendomsituatie | Eigen grond |