Beschrijving
Landelijk wonen in een eigentijds gerenoveerde en uitgebouwde woning! Deze mooie woonboerderij werd tot in de puntjes en uitermate sfeervol gemoderniseerd en biedt daarmee een unieke woonbeleving in het mooie Westerkwartier. De woning is perfect voor paardenliefhebbers. Zo heeft de woning meerdere paardenstallen (4) en een schuilstal. Daarnaast zijn de royale rijbak en paddock gedraineerd.
De stijl en sfeer van de woning komt terug in alle vertrekken en is gebaseerd op natuurlijke materialen en kleuren zoals hout, leem en natuursteen gecombineerd met hotel chique accenten zoals sfeervolle verlichting en zwarte elementen. Zowel binnen als buiten is alles op elkaar afgestemd wat zorgt voor rust en eenheid.
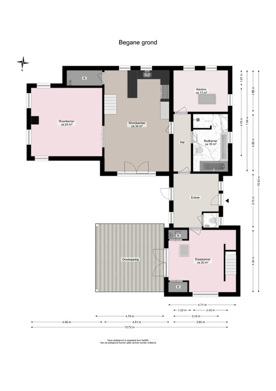
De woonkamer en keuken en suite staan met elkaar in verbinding. De woonkamer heeft een robuuste Tigchelaar kachel voor de knusse winteravonden. De keuken is modern en voorzien van inbouwapparatuur zoals een Quookerkraan en oven. De masterbedroom ligt op de benedenverdieping, net als de luxe badkamer, waardoor de woning levensloopbestendig is. Leuk detail is de vide in de slaapkamer. Op de begane grond is daarnaast nog een praktische studeerkamer. Op de verdieping zijn nog eens drie slaapkamers.
Op het perceel staat verder een riant gastenverblijf met houtkachel en er zijn diverse overdekte terrassen die het buitenleven veraangenamen. Zoals de huidige situatie laat zien biedt het perceel daarnaast tal van mogelijkheden voor iedereen die houdt van landelijk leven, tuinieren en dieren. De prachtige omgeving, dicht bij Drachten, Groningen en op fietsafstand van leuke dorpen die voorzien in scholen en winkels, draagt daar zeker aan bij. Voor velen zal dit een woning zijn die hun woondromen doet uitkomen!
Bijzonderheden:
* Sfeervolle, volledig gemoderniseerde woonboerderij;
* Gelegen op ruim een hectare grond;
* Meerdere paardenstallen en schuilstal;
* Rijbak en paddock gedraineerd;
* Verwarmd middels een Remeha Tzerra Ace CW5;
* Warm water via warmtepompboiler Vaillant aroSTOR;
* 24 zonnepanelen;
* Aanvaarding in overleg;
Plattegronden
Kaleweg 9, Opende-page-001.jpg
Kaleweg 9, Opende-page-002.jpg
Kaleweg 9, Opende-page-003.jpg
Kaleweg 9, Opende-page-004.jpg
Kaleweg 9, Opende-page-005.jpg