Beschrijving

Goed onderhouden vrijstaande woning met royale garage en berging, keurig aangelegde tuin, doorzonwoonkamer, nette keuken, badkamer en drie slaapkamers, rustig en mooi gelegen in groenrijke omgeving op loopafstand van het station, winkelcentra en het centrum.

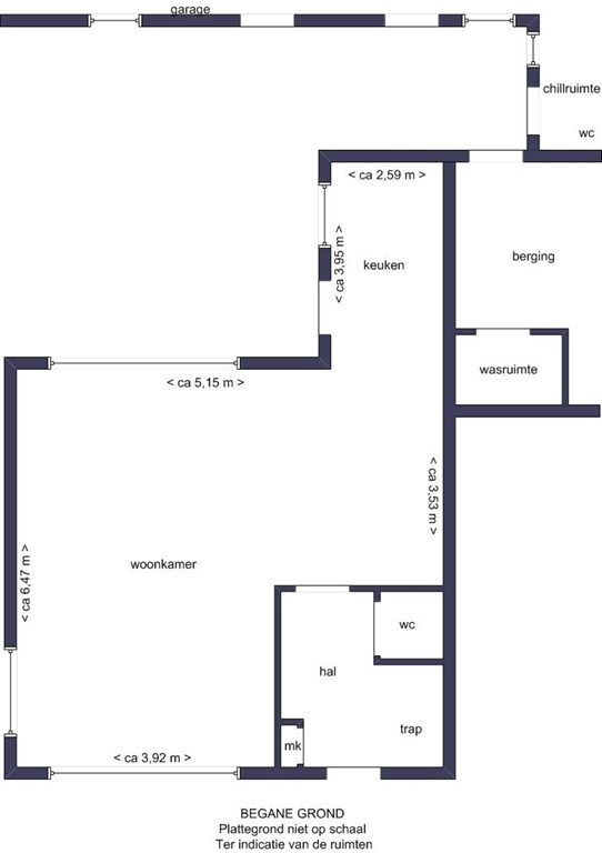
Indeling

Begane grond
De entree biedt toegang tot de hal van de woning. In de hal vindt u de meterkast (6 groepen en aardlek), de trapopgang naar de eerste verdieping, toilet en de woonkamer. In de doorzonwoonkamer is voldoende ruimte voor het plaatsen van zowel een zit- als een eethoek. Aan tuinzijde heeft de woonkamer een grote raampartij die voor veel lichtinval zorgt. De half open keuken is ingericht met een net keukenmeubel in een lichte kleur met een kersenhouten werkblad. In het keukenmeubel zijn o.a. een gaskookplaat, een afzuigkap, een combi-magnetron, een vaatwasser en een. Alle plafonds en wanden op de begane grond zijn voorzien van stucwerk, op de vloeren ligt zeil met een houtprint.

Eerste verdieping

1e verdieping
Op de eerste verdieping vindt u drie slaapkamers en de badkamer. De drie slaapkamers zijn allen voorzien van een ingebouwde kast. De vloeren van de overloop en logeerkamer zijn bedekt met tapijt, zeil of laminaat. Alle wanden zijn gestukadoord, de plafonds van zijn afgewerkt met houten schroten. De badkamer is geheel betegeld en ingericht met een douchegelegenheid en een vast wastafel.

Tweede verdieping

2e verdieping
De royale bergzolder heeft mogelijkheden voor een vaste trap en inrichting met een slaapkamer. Op deze bergzolder is de cv-ketel (Nefit HR combi 2014) geplaatst.

Tuin

Tuin
De op het westen en noorden gelegen achtertuin is keurig aangelegd met sierbestrating, gras en perken en is te bereiken via een eigen achterom. De stenen berging is voorzien van witgoedaansluitingen. Een 2e berging is ingericht als chillruimte met een toilet en een bar. De royale garage is v.v. een elektrische sectionaaldeur met afstandsbediening, een auto kan ook op de oprit geparkeerd worden.

Bijzonderheden

Bouwjaar woonhuis: ca. 1969.
Inhoud: ca. 653m3.
Woonoppervlakte: ca. 100m2, berging/garage/chillruimte  70m2.
Perceeloppervlakte: 409m2.
Aantal kamers: 4.
Aantal slaapkamers: 3.

Algemeen
Deze vrijstaande woning verkeert in een goede staat van onderhoud en kan wat modernisering gebruiken.
Ligging
De Kromstraat is gelegen in een rustige woonwijk, op loopafstand van het station, winkelcentrum de Wolfskooi, het centrum en het buitengebied. Daarnaast vindt u in de directe omgeving o.a. scholen en speel- en sportvoorzieningen.

Kenmerken