Beschrijving
Ben je op zoek naar een ruime woning met mogelijkheden, een groot perceel en ruimte voor werk of hobby? Kom dan eens kijken op Heinsbergerweg 59 D, een levensloopbestendige vrijstaande woning met een vrijstaande loods, gelegen in een fijne woonomgeving.
Met een woonoppervlak van 225 m² biedt deze woning voldoende ruimte voor het hele gezin.
Door de twee slaapkamers en badkamer op de begane grond is de woning levensloopbestendig te gebruiken maar daarmee is dit huis ook perfect voor gezinnen met opgroeiende kinderen en doorstromers die op zoek zijn naar ruimte, comfort en gemak. De woonkamer, de aparte keuken, de praktische bijkeuken en de 3 slaapkamers op de verdieping bieden genoeg ruimte voor iedereen. De twee kelderruimtes zorgen voor extra mogelijkheden en bergruimte.
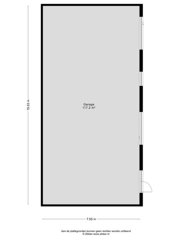
Het perceel heeft een oppervlakte van maar liefst 1725 m², waarvan het grootste gedeelte bestemd is als achtertuin. Hier kun je volop genieten van het buitenleven en heerlijk ontspannen in de zon. De achter op het perceel gelegen loods van circa 117 m² is voor vele doeleinden geschikt.
Klaar om jouw nieuwe droomhuis te vinden? Deze ruime woning met mogelijkheden in Posterholt wacht op jou! Maak snel een afspraak voor een bezichtiging en wie weet wordt dit binnenkort wel jouw nieuwe thuis.
Indeling
Begane grond:
De entree geeft toegang tot de voordeur en de hal. Vanuit de hal met tegelvloer, garderoberuimte, meterkast en trap naar de 1e verdieping zijn de toiletruimte, de woonkamer, keuken, slaapkamer en badkamer bereikbaar.
De woonkamer is ruim van opzet (ca. 42 m²) en is voorzien van een tegelvloer, haardpartij en openslaande deuren naar het terras. De keuken (ca. 16 m²) beschikt over een keurige keukenopstelling met apparatuur (elektrische kookplaat, afzuigkap, oven, vaatwasser), voldoende werk- en kastruimteem een deur naar het terras. In de praktische bijkeuken bevinden zich de witgoedaansluitingen, een deur naar het terras en de toegang naar de kelder.
De ouderslaapkamer (ca. 22 m²) is voorzien van een parketvloer en heeft direct toegang tot de badkamer. De ruime badkamer is voorzien van een ligbad, douche, toilet en een vaste wastafel met wandmeubel. De badkamer is ook vanuit de hal bereikbaar. De tweede slaapkamer (ca. 6 m²) is eveneens voorzien van een parketvloer.
Eerste verdieping
1e verdieping:
Op de eerste verdieping bevinden zich de overloop met vide, 3 slaapkamers en berging. De overloop is voorzien van een tegelvloer. De slaapkamers zijn respectievelijk circa 35, 30 en 13 m² groot en de grootste slaapkamer beschikt over een bergkast met daarin de c.v.-opstelling.
Tweede verdieping
2e verdieping:
Via de berging op de eerste verdieping kan men de vliering bereiken.
Overige verdiepingen
Kelder:
De kelder is verdeeld in twee ruimtes van circa 27 en ca. 19 m². Deze kelderruimte bieden tal van mogelijkheden voor bijvoorbeeld hobbyruimte of mancave maar kunnen ook worden gebruikt als provisie- en opslagruimte. In de tweede kelderruimte staat nu een sauna.
Tuin
Perceel:
De halfronde oprit aan de voorzijde van de woning biedt voldoende parkeergelegenheid op eigen terrein en is afsluitbaar middels twee sierpoorten. De oprit langs de woning geeft toegang tot de achtertuin. De achtertuin is circa 40 meter diep en is een fijne plek voor mensen die op zoek zijn naar ruimte en mogelijkheden. De tuin is voorzien van een vijverpartij, gazon, een prieel, een tuinhuisje en een diversiteit aan bomen en beplanting.
Achter op het perceel is een gemetselde loods gesitueerd. De loods is circa 117 m² groot en voorzien van een loopdeur, twee toegangspoorten, elektra en is afgewerkt met een betonvloer. In de loods is een hefbrug aanwezig.
Bijzonderheden
Algemeen:
Deze levensloop bestendige vrijstaande woning is gelegen in een fijne woonomgeving nabij de voorzieningen, het fraaie buitengebied en de aansluiting op de provinciale weg. De woning is gebouwd in 1996 en is voorzien van spouwmuur- en dakisolatie, houten kozijnen met enekel beglazing, rolluiken, een HR combiketel en heeft een energielabel C.
Het woonoppervlak bedraagt ca. 225 m², de overige inpandige ruimte ca. 56 m², de gebouw gebonden buitenruimte ca. 24 m², externe berging ca. 132 m², de inhoud ca. 1047 m³ en het perceeloppervlak bedraagt 1750 m².
Omgeving:
Posterholt maakt met haar buurtschappen de Borg, de Holst en de Varst deel uit van de gemeente Roerdalen en heeft circa 4000 inwoners. Het dorp is gelegen in een landelijke en groene woonomgeving. Posterholt beschikt over meer dan voldoende voorzieningen zoals een basisschool met kinderopvang, een supermarkt, een bakker, een drogist en diverse andere winkels, een huisartsenpraktijk, een tandartspraktijk, apotheek, diverse horecagelegenheden en tal van sport- en recreatievoorzieningen en verenigingen. Posterholt heeft goede aansluitingen op de diverse provinciale wegen richting Noord- en Zuid-Limburg alsook naar Duitsland.
Plattegronden
182987524_1628626_heins_begane_grond_first_design_20260305_abd4ce.jpg
182987524_1628626_heins_eerste_verdiepi_first_design_20260305_0fc722.jpg
182987524_1628626_heins_zolder_first_design_20260305_e781d6.jpg
182987524_1628626_heins_kelder_first_design_20260305_5e7bde.jpg
182987524_1628626_heins_garage_first_design_20260305_13a0ec.jpg
182987524_1628626_heins_berging_first_design_20260305_e7b129.jpg