Beschrijving

Tussen het 'Leeghwaterpark' en het centrum van Purmerend vindt u dit schitterend, gevarieerd en compacte woonwijkje genaamd 'Klein Where'. Door de verschillende kleuren gevelsteen en wisselende kapvormen heeft het rijtje een heel speelse en aantrekkelijke uitstraling. 
Dit huis betreft er een van het grootste type genaamd 'De Brouwer' (maar liefst 614m³) met daaraan zelfs toegevoegd een grote glazen serre staat nu te koop wegens emigratieplannen. Aan de achterzijde heeft u mooi ruim uitzicht door ligging in verlengde van de entree met binnenplaats waaraan deze 11 Hofwoningen alle hun eigen parkeerplaats hebben! Bijkomend voordeel is dat u daardoor straks langer genieten kan de ondergaande zon.
Deze woning is zeer luxe, strak en ruimtelijk ingedeeld werkelijk om zó te betrekken!

Indeling

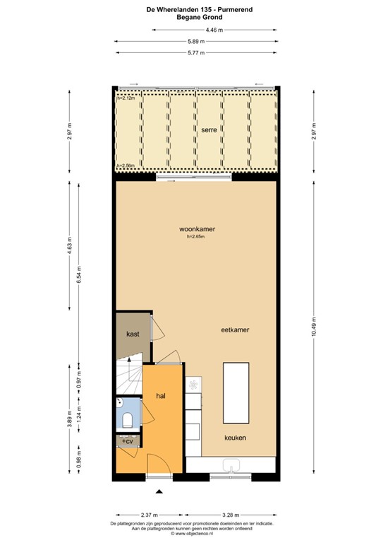
Hal, modern toilet, trapopgang, witte hoogglans frontkeuken, brede woonkamer en glazen serre met toegang tot zonnige achtertuin (zw)

Eerste verdieping

Overloop, drietal slaapkamers variërend van bijna 10 tot 16m², badkamer en separate toiletruimte.

Tweede verdieping

Grote overloop vierde-, en vijfde slaapkamer (beiden ca. 12m²)

Overige verdiepingen

Praktische vliering met stahoogte.

Tuin

Beide tuinen zijn voorzien van onderhoudsvrije bestrating met groot type licht tegels. De achtertuin is afgeschermd door toegangspoort en solide schuttingen rondom waardoor privacy gegarandeerd is.

Bijzonderheden

-Grootste type met bijna 180m² woongenot (161m² met extra glazen serre van 17,5m²)
-Brede schuifpui 
-Zeer luxe woonkeuken
-Hygiënische harde vloerbedekking
-Vloerverwarming op álle verdiepingen
-Airco op álle verdiepingen
-Toepassing rolluiken, screens en interne raamdecoratie
-5 tal grote slaapkamers
-Rechte gevels aan voor en achterzijde (614m³)
-Drietal dakvensters
-Flinke vliering met ruime stahoogte
-Buitenverlichting alsmede opbouwverlichting inclusief
-Eigen parkeerplaats aansluitend aan achtertuin (op zuid-westen)
-Elektrische auto dus eenvoudig thuis laden door plaatsen eigen wallbox
-Eigen grond

Kenmerken