| Adres: | Johanna Naberstraat 152, 1442 BD Purmerend |
| Prijs | € 310.000,- k.k. |
| Type object | Appartement, portiekflat |
| Woonoppervlakte | 74 m² |
| Aanvaarding | Direct |
| Status | Verkocht |
WONEN OP LOOPAFSTAND VAN CENTRUM PURMEREND Heerlijk licht appartement aan de rustige zijde van dit complex gelegen op de 3e verdieping met zicht op groene woonwijk en grenzend aan het prachtig vernieuwde Kooimanpark. De woning is deels gemoderniseerd en voorzien van inbouwkeuken met kookplaat, oven, afzuigkap, koel-diepvriescombinatie. Verder zijn er 2 ruime slaapkamers en een grote hal in het appartement aanwezig. Op de begane grond is een praktische berging gesitueerd voor opslag en stalling fietsen. Het appartement is op loopafstand van het gezellige centrum van Purmerend met zijn winkels, terrasjes en restaurants. Het openbaar vervoer is op loopafstand en uitvalswegen naar o.a. Amsterdam via de A-7 zijn nabij.
Entree met brievenbussen, trapopgang en binnendoor met toegang tot de berging.
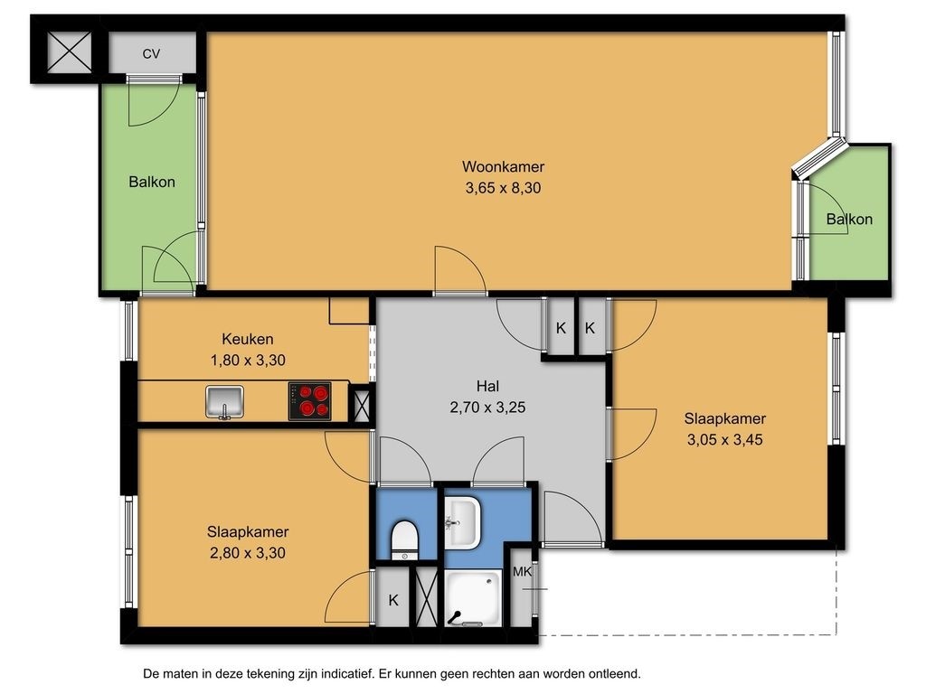
Derde verdieping Entree, hal, keuken, doorzon woonkamer met balkons aan weerszijden, 2 ruime slaapkamers, separate toiletruimte met naastgelegen badkamer voorzien van wastafel en douche. Eigen berging op de begane grond.
Tweetal balkons voor genieten van de ochtend,- alsmede middag/avondzon.
- Grootonderhoud uitgevoerd met plaatsing nieuwe kunststof ramen en kozijnen - Vrij uitzicht aan beide zijden - Voldoende parkeergelegenheid op de openbare weg - Nabij Kooimanpark en centrum Purmerend - Maandelijkse servicekosten bedragen €260,- - Aanvaarding kan desgewenst spoedig
| Referentienummer | 00415 |
| Vraagprijs | € 310.000,- k.k. |
| Servicekosten | € 260,- |
| Inrichting | Niet gestoffeerd |
| Inrichting | Niet gemeubileerd |
| Status | Verkocht |
| Aanvaarding | Direct |
| Laatste wijziging | Maandag 15 december 2025 |
| Type object | Appartement, portiekflat |
| Woonlaag | 3e woonlaag |
| Soort bouw | Bestaande bouw |
| Bouwperiode | 1962 |
| Dakbedekking | Bitumen |
| Type dak | Platdak |
| Keurmerken | Energie prestatie advies |
| Isolatievormen | Volledig geïsoleerd |
| Woonoppervlakte | 74 m² |
| Woonkameroppervlakte | 30,3 m² |
| Keukenoppervlakte | 5,94 m² |
| Inhoud | 240 m³ |
| Oppervlakte externe bergruimte | 6 m² |
| Oppervlakte gebouwgebonden buitenruimte | 6 m² |
| Aantal bouwlagen | 1 |
| Aantal kamers | 3 (waarvan 2 slaapkamers) |
| Aantal badkamers | 1 (en 1 apart toilet) |
| Ligging | Aan park Aan rustige weg |
| Heeft een energiecertificaat | Ja |
| Energielabel | C |
| CV ketel | Intergas HRE |
| Warmtebron | Gas |
| Bouwjaar | 2023 |
| Combiketel | Ja |
| Eigendom | Eigendom |
| Warm water | CV-ketel |
| Verwarmingssysteem | Centrale verwarming |
| Ventilatie methode | Mechanische ventilatie |
| Badkamervoorzieningen | Douche Wastafel |
| Heeft een balkon | Ja |
| Heeft kabel-tv | Ja |
| Heeft schuur/berging | Ja |
| Heeft ventilatie | Ja |
| Ingeschreven bij de KvK | Ja |
| Jaarlijkse vergadering | Ja |
| Periodieke bijdrage | Ja |
| Reservefonds | Ja |
| Meer jaren onderhoudsplan | Ja |
| Onderhoudsverwachting | Ja |
| Opstal verzekering | Ja |
| Kadastrale aanduiding | Purmerend D 1538 |
| Omvang | Appartementsrecht of complex |
| Indexnummer | 24 |
| Kadastrale aanduiding | |
| Eigendomsituatie | Eigen grond |