Beschrijving

Fijne gezinswoning met uitgebouwde begane grond en veelzijdige zolderverdieping.

Aan de rustige Einder Coolhoff in het dorpse Puth ligt deze verzorgde en instapklare tussenwoning met een verrassend ruime indeling. Binnen tref je een uitgebouwde begane grond met een lichte woonkamer en een royale leefkeuken aan de achterzijde, waardoor er net dat extra stukje woonruimte is ontstaan. Op de eerste verdieping zijn drie slaapkamers en een recent vernieuwde badkamer aanwezig. De tweede verdieping met dakkapel is een volwaardige extra ruimte en leent zich uitstekend als vierde slaapkamer, werkkamer of hobbyruimte. De woning is goed onderhouden en voorzien van energielabel A, tien zonnepanelen in eigendom en drie airco’s die zowel kunnen koelen als verwarmen. In combinatie met kunststof kozijnen met HR++ beglazing en grotendeels aanwezige rolluiken zorgt dit voor een aangenaam binnenklimaat en lage energielasten. Aansluitend aan de woning bevindt zich het overdekte terras, met daarnaast een tuinhuis met elektra en een eigen achteringang.

Puth staat bekend om zijn gemoedelijke karakter en groene omgeving. Dagelijkse voorzieningen, basisscholen en uitvalswegen richting Sittard, Heerlen en Valkenburg bevinden zich op korte afstand. Tegelijkertijd woon je hier rustig, met volop mogelijkheden om te wandelen en te fietsen in de directe omgeving.

Indeling

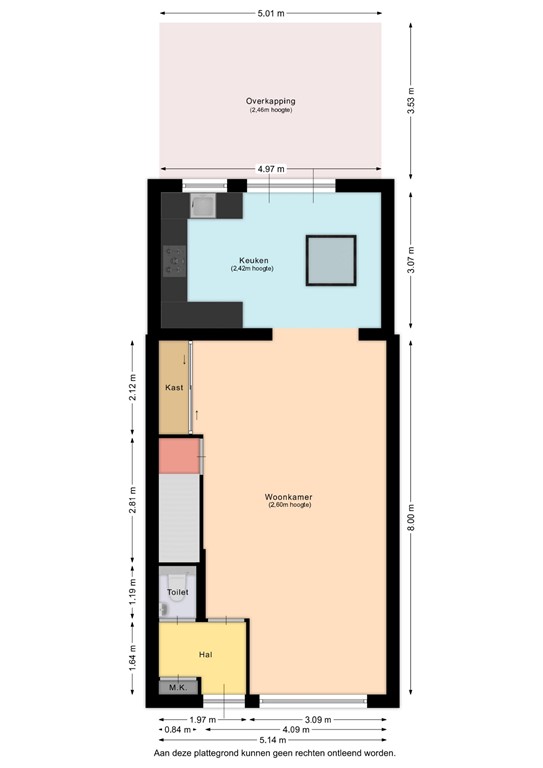
Bij aankomst valt direct de verzorgde voortuin op, die zorgt voor een nette en uitnodigende eerste indruk. Via de entree kom je binnen in de ontvangsthal, die is afgewerkt met een visgraatvloer en direct een warme sfeer uitstraalt. In de hal bevinden zich de garderobe, de meterkast en het toilet. Het toilet is uitgevoerd met een zwevend closet en een fonteintje.

Vanuit de hal bereik je de woonkamer, die eveneens is voorzien van een fraaie PVC visgraatvloer. De woonkamer profiteert van een prettige lichtinval en biedt volop ruimte voor een comfortabele zithoek. Een vaste inbouwkast met schuifdeuren zorgt voor extra bergruimte en draagt bij aan een opgeruimd geheel. Het aanwezige rolluik aan de voorzijde biedt extra comfort en privacy. Via het tussenportaal is de trapopgang naar de eerste verdieping bereikbaar.

Aan de achterzijde van de woning bevindt zich de uitgebouwde leefkeuken. Door deze aanbouw is een royale ruimte ontstaan die naadloos aansluit op de woonkamer. De open keuken is uitgevoerd in een U-opstelling en beschikt over dezelfde visgraatvloer, wat zorgt voor een mooi geheel. Dankzij de aanwezige inbouwspots en de ruime werk- en kastruimte is het een aangename plek om te koken en te verblijven. De keuken is uitgerust met onder meer een 5-pits gasfornuis met afzuigkap, een combi heteluchtoven, een koelkast, een vriezer en een vaatwasser. Daarnaast is hier een airco geplaatst die zowel kan koelen als verwarmen.

Via de openslaande deuren is er toegang tot het overdekte terras in de achtertuin. Bij de deuren is een elektrisch rolluik aanwezig en dankzij de lichtkoepel valt er extra daglicht binnen, wat deze ruimte bijzonder aangenaam maakt. Door de aanbouw is de begane grond opvallend ruim en licht opgezet.

Eerste verdieping

De met tapijt beklede trap leidt naar de eerste verdieping. Op de overloop ligt een laminaatvloer en vanaf hier zijn drie slaapkamers en de badkamer bereikbaar. Alle slaapkamers zijn afgewerkt met een laminaatvloer en beschikken over veel daglicht. De kamers hebben fijne afmetingen en zijn voorzien van rolluiken. De hoofdslaapkamer is daarnaast uitgerust met een airco die zowel kan koelen als verwarmen, wat zorgt voor extra comfort.

De badkamer is in 2024 vernieuwd en uitgevoerd in een rustige en verzorgde stijl. De ruimte is voorzien van inbouwspots en beschikt over een douchecabine met regendouche en glazen douchewand, een badkamermeubel met veel opbergruimte, een wastafel met spiegel, een ligbad en een zwevend toilet. Ook hier is een rolluik aanwezig.

Tweede verdieping

Via een vaste trap bereik je de tweede verdieping. Deze verdieping is afgewerkt met een laminaatvloer en beschikt over een dakkapel, waardoor er veel daglicht binnenvalt. De ruimte is voorzien van inbouwspots en een airco die kan koelen en verwarmen, wat zorgt voor een aangename temperatuur gedurende het hele jaar. De aanwezige inbouwkasten bieden volop bergruimte en de witgoedaansluitingen zijn netjes weggewerkt in een kast. Dankzij de goede afmetingen en het prettige lichtinval is deze verdieping uitstekend geschikt als vierde slaapkamer, werkkamer of hobbyruimte.

Tuin

De achtertuin is verzorgd aangelegd en biedt een prettige combinatie van terras, groen en praktische voorzieningen. Direct aan de woning bevindt zich een overdekt terras met verlichting, waardoor je hier al vroeg in het voorjaar en tot in de avonduren comfortabel buiten kunt zitten. 

Achterin de tuin staat een houten tuinhuis dat is voorzien van elektra en uitstekend geschikt is voor het opbergen van tuinmeubilair en gereedschap. Dankzij de aanwezige achterom is de tuin ook praktisch bereikbaar.

Bijzonderheden

Energielabel A
Voorzien van 10 zonnepanelen (eigendom)
Drie airco’s aanwezig, geschikt voor koelen en verwarmen
Geheel voorzien van kunststof kozijnen met HR++ beglazing
Grotendeels uitgerust met rolluiken
Uitgebouwde begane grond met extra leefruimte
Badkamer vernieuwd in 2024
Vierde slaapkamer of werkkamer mogelijk op de tweede verdieping
Eigen achterom
Rustige woonomgeving met groen karakter
Huurovereenkomst cv installatie dient mee overgenomen te worden (34.94 p.m.)

De informatie is met de nodige zorgvuldigheid door ons samengesteld. Er kunnen geen rechten worden ontleend aan deze advertentie en brochure en aanvaarden wij geen enkele aansprakelijkheid voor enige onvolledigheid, onjuistheid of anderszins, dan wel de gevolgen daarvan. Maatvoeringen en oppervlakten zijn indicatief.

Kenmerken