Beschrijving

Luxe twee-onder-een-kapwoning in kleinschalige wijk De Oudenborch!    

Aan de rand van het vriendelijke dorp Rhenoy, in de geliefde en kleinschalige woonwijk De Oudenborch, staat deze verrassend ruime twee-onder-een-kapwoning. Met een woonoppervlakte van 146 m², drie slaapkamers én een royale zolderverdieping met volop mogelijkheden, is dit een huis dat moeiteloos meegroeit met jouw woonwensen. En met een onlangs fraai aangelegde achtertuin mét overkapping is het hier ook buiten volop genieten.

Wij adviseren je de brochure van deze woning te downloaden van onze website.
In deze brochure vind je uitgebreide informatie met extra foto's evenals plattegronden en kadastrale gegevens.

Indeling

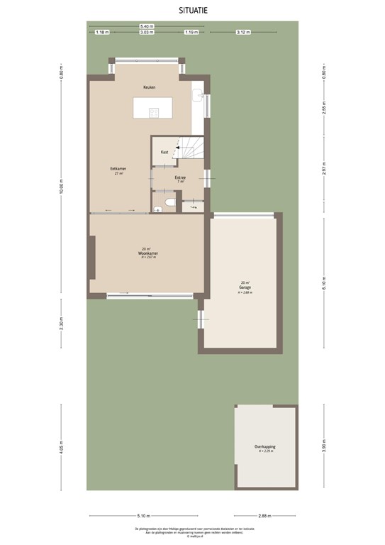
De entree bevindt zich aan de zijkant van de woning. Vanuit de hal heb je toegang tot het toilet met fonteintje, de meterkast, trapopgang naar de eerste verdieping en keuken. Ook is er een praktische trapkast met extra bergruimte. De begane grond is strak afgewerkt met een PVC-vloer en comfortabele vloerverwarming.

Een stijlvolle, zwarte aluminium tussendeur brengt je naar de eetkeuken. De keuken ligt aan de voorzijde van de woning en is uitgevoerd met een kookeiland met een robuust betonnen werkblad en een wandmeubel. Dankzij het zijraam en de ramen aan de voorzijde valt het daglicht mooi naar binnen. 
De keuken heeft een rustige uitstraling en is uitgevoerd met alle benodigde inbouwapparatuur: een koelkast, combimagnetron, vaatwasser, oven, inductie kookplaat, afzuigkap en opbergruimte in de lades en kasten. 
In de keuken is ruim plaats voor een grote eettafel.

De keuken en woonkamer worden van elkaar gescheiden door een zwart aluminium frame met rookglas—een fraaie blikvanger. 
De woonkamer is strak afgewerkt en voorzien van een sfeervolle gashaard en schuifpui naar de achtertuin.

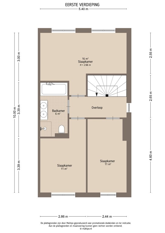
Eerste verdieping

Op de eerste verdieping zijn vanaf een ruime overloop drie slaapkamers en de badkamer te bereiken. Ook is hier de trapopgang naar zolder.
De hoofdslaapkamer ligt aan de voorzijde van de woning en kijkt uit op de voortuin en de straat. Deze kamer is voorzien van drie ramen. Slaapkamers II en III liggen aan de achterzijde.  
De badkamer is uitgevoerd in een tijdloze combinatie van wit en zandkleurig tegelwerk. Hier vind je een douchecabine, ligbad, dubbele wastafel met waskommen, wandcloset en een handdoekradiator. De ruimte is mechanisch geventileerd.

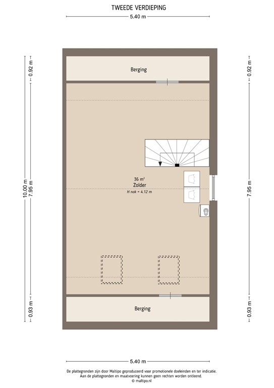
Tweede verdieping

De grote zolder heeft een nokhoogte van maar liefst 4,12 meter en een oppervlakte van 36 m2. Op deze verdieping kunnen met gemak twee extra slaapkamers worden gerealiseerd. Op deze verdieping vind je de wasmachine en droger, CV-ketel en de mechanische ventilatie en een zee van ruimte. Door de dakramen is het licht.

Tuin

De voortuin is verzorgd aangelegd met twee platanen, hortensia’s en een beukenhaag. Op de oprit is ruimte voor twee auto’s. De garage is zowel van buitenaf als vanuit de achtertuin toegankelijk.

Via de houten poort kom je in de achtertuin, deze ligt op het noordoosten en wordt omringd door een donkere houten schutting. De tuin is in 2023 opnieuw aangelegd en biedt een bestraat terras aansluitend aan de achtergevel, een stukje (kunst)gras en beplanting langs het perceel en langs de pergola. 
Onder de overkapping zit je heerlijk beschut: een fijne plek om tot rust te komen.

Bijzonderheden

Voor technische kenmerken en bijzonderheden verwijzen wij je naar de brochure. 

Rhenoy is een dorp in het hart van de Betuwe, ligt direct aan de rivier de Linge en telt circa 675 inwoners. De gemeente West Betuwe is op 1 januari 2019 ontstaan door een fusie van de gemeenten Geldermalsen, Neerijnen en Lingewaal. Rhenoy ligt daarnaast centraal tussen de snelwegen A15 en A2. Waarbij de A2 binnen enkele minuten te bereiken is. Ideaal, want zo ben je binnen 30 minuten autorijden in Utrecht of Den Bosch! Rhenoy is een sociaal dorp met een sterk verenigingsleven, kent vele jaarlijkse terugkerende activiteiten en heeft een eigen dorpsraad. Aan de rand van Rhenoy staat het dorpshuis 'De Betuwe Poort'. Deze naam is gekozen omdat het aan de 'ingang' van de Betuwe staat. De dichtstbijzijnde grotere plaatsen zijn Leerdam, Beesd en Geldermalsen.

Interesse gewekt? Schakel meteen je eigen aankoopmakelaar in.
Jouw aankoopmakelaar komt op voor jouw belang en bespaart je tijd, geld en zorgen.

Kenmerken