Beschrijving

EEN INSTAPKLARE MAISONETTE WONING MET BALKON EN ENERGIELABEL A!

YESS! WAT EEN PLUSPUNTEN HEEFT DEZE WONING:

1.	Keurig nette afwerking, woning is instap klaar; 
2.	Zeer goed onderhouden en keurig verzorgd;
3.	Ruime woonkamer met open keuken;
4.	Centraal gelegen, alle voorzieningen zijn dichtbij;
5.	Twee ruime slaapkamers;
6.	Volledig geïsoleerd;
7.	Energielabel A;
8.	Voldoende vrij parkeergelegenheid in de straat;
9.	Houten kozijnen met HR++ beglazing, geschilderd in 2024;
10.	Gezonde en actieve VvE!

Krijg je hier ook het YESS-gevoel van? Dan nodigen wij je heel graag uit voor een bezichtiging van deze leuke woning! 

DE OMGEVING:
De wijk Bolnes biedt een perfecte combinatie van rust, groen en centrale ligging. Deze kindvriendelijke wijk is rijk aan natuur met het Schinnenbaanpark en het Randpark op korte wandelafstand, waar je heerlijk kunt ontspannen en genieten van buitenactiviteiten. Voor een dagje natuur ligt het Donckse Bos op nog geen 10 minuten fietsen.

De gunstige ligging van de woning maakt het dagelijks leven uiterst comfortabel. Supermarkten zoals Lidl, Dirk van den Broek en Hoogvliet zijn binnen handbereik en het wijkwinkelcentrum 'de Werf' biedt een breed scala aan winkels voor al je dagelijkse benodigdheden. Scholen bevinden zich op fietsafstand, ideaal voor gezinnen.

Daarnaast is de bereikbaarheid uitstekend: met een snelle verbinding naar Rotterdam via de uitvalswegen A15 en A16, en openbaar vervoer op korte afstand, kun je gemakkelijk de stad in. Ook de waterbus-opstapplaats ligt vlakbij, net als sportvoorzieningen voor een actief en sociaal leven.

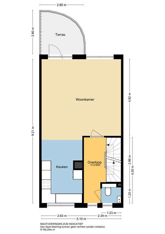
DE INDELING:
Begane grond:
Eigen entree met garderobe, meterkast en trapopgang naar de verdieping.

1e Verdieping:
De centrale overloop biedt toegang tot het toilet met fonteintje, trapopgang naar de 2e verdieping en woonkamer.
De woonkamer is heerlijk ruim, heeft een optimale lichtinval en toegang tot het balkon aan de achterzijde. Deze is op het noordoosten gelegen, heeft ook zon en daarnaast een fraai uitzicht op het omliggende groen.
De moderne open keuken is gelegen aan de voorzijde en is in hoek opstelling. Er is diverse inbouwapparatuur zoals een 4-pits gaskookplaat, afzuigkap, spoelbak, vaatwasser, koelkast, vriezer, oven en een combi-magnetron. 

2e Verdieping:
De overloop geeft toegang tot de twee ruime slaapkamers, de badkamer en een wasruimte.
Beide slaapkamers zijn aan de achterzijde van de woning gelegen. 
De badkamer is voorzien van douchehoek voorzien van regendouche, wastafel in meubel, radiator en tweede toilet. 
De wasruimte heeft een opstelplaats voor de wasmachine, wasdroger, cv-ketel en mechanische ventilatie.

Berging:
Op straatniveau aan de achterzijde van de woning bevindt zich een ruime berging v.v. elektra.

DE AFMETINGEN:
Voor de afmetingen en indeling, zie de plattegrond.

DE BIJZONDERHEDEN:
- Woonoppervlakte 87 m²;
- Externe bergruimte 6 m²;
- Inhoud 293 m²;
- Volledig geïsoleerd van de bouw;
- Verwarming en warm water middels C.V.-ketel (2009);
- Strakke badkamer, keuken en toilet;
- Bouwjaar 2010;
- Energielabel A;
- Actieve VvE met een bijdrage van €109,46 per maand;
- Oplevering in overleg.

De Meetinstructie is gebaseerd op de NEN2580. De Meetinstructie is bedoeld om een meer eenduidige manier van meten toe te passen voor het geven van een indicatie van de gebruiksoppervlakte. De Meetinstructie sluit verschillen in meetuitkomsten niet volledig uit, door bijvoorbeeld interpretatieverschillen, afrondingen of beperkingen bij het uitvoeren van de meting.
Alle verstrekte informatie moet beschouwd worden als een uitnodiging tot het doen van een bod of om in onderhandeling te treden. Er kunnen geen rechten worden ontleend aan deze woninginformatie.

WIL JE EEN AFSPRAAK MAKEN OM DEZE WONING TE BEZICHTIGEN? JE MAG ONS BELLEN, MAILEN , APPEN OF LAAT EEN REACTIE ACHTER VIA DEZE SITE!

Kenmerken