Beschrijving
        
Licht, Ruimte en Comfort op een Toplocatie in Roosendaal
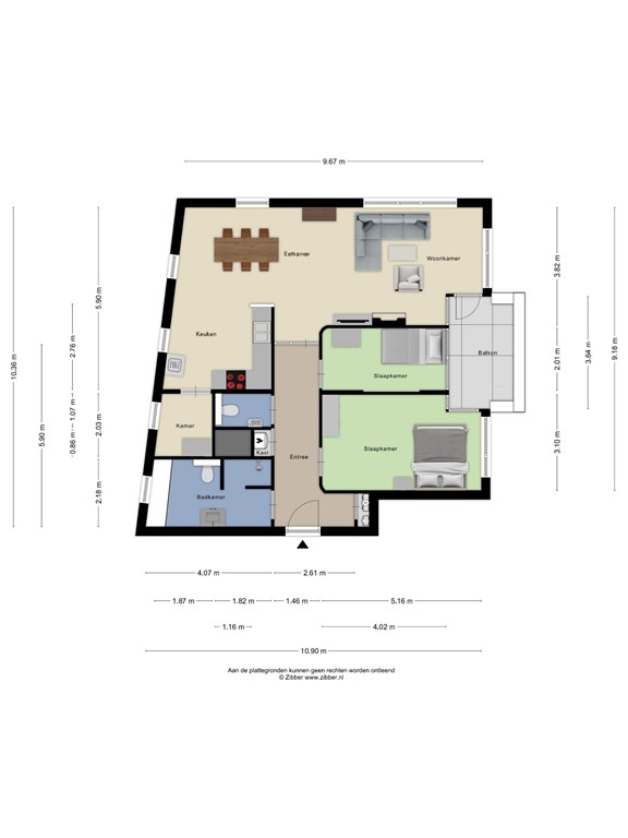
Ben je op zoek naar een comfortabel, ruim en goed gelegen appartement? Dan is dit 3-kamerappartement op de derde verdieping van het moderne appartementencomplex Standerdmolen precies wat je zoekt! Met een royaal woonoppervlak van ca. 96 m², een zonnig balkon op het zuiden, een eigen parkeerplaats in de afgesloten parkeergarage én toegang tot gezamenlijk appartement voor recreatie, combineert dit appartement rust, ruimte en bereikbaarheid in één aantrekkelijk geheel.
Gelegen op korte afstand van het bruisende stadscentrum van Roosendaal, het ziekenhuis en diverse voorzieningen, woon je hier heerlijk centraal, maar toch in alle rust. Dankzij de uitstekende verbinding met uitvalswegen ben je bovendien zo onderweg.
         
     
    
            Indeling
        
Doordacht en Praktisch
Via de nette centrale entree met lift en trap bereik je het appartement op de derde verdieping. De ruime hal heet je welkom en biedt toegang tot alle vertrekken.
De lichte woonkamer is een fijne plek om te ontspannen en staat in directe verbinding met het zonnige balkon op het zuiden. Hier geniet je heerlijk van de zon en een fraai uitzicht – een perfecte plek voor een kop koffie of een goed boek.
De keuken is praktisch ingedeeld in een hoekopstelling en voorzien van diverse inbouwapparatuur zoals vaatwasser, koelkast, combi-oven magnetron, viezer. Aangrenzend bevindt zich een bijkeuken: ideaal voor extra opbergruimte.
Het appartement beschikt over twee ruime slaapkamers, een riante badkamer met inloopdouche, wastafel en aansluiting voor de wasmachine. Daarnaast is er een separaat tweede toilet – wel zo prettig!
         
     
    
            Balkon
        
Heerlijk royaal balkon gelegen op het zuiden en tegelijkertijd zonnebescherming voor het appartement, om het zo koel te houden binnen.
         
     
    
            Bijzonderheden
        
Pluspunten op een rij:
+ Bouwjaar 1999 – volledig geïsoleerd met energielabel A+
+ Goed onderhouden, mooie vloer en wanden netjes. Heeft maar één eigenaar gehad 
+ Woonoppervlakte ca. 96 m²
+ Heerlijk balkon op het zuiden
+ Twee ruime slaapkamers
+ Complete badkamer + separaat tweede toilet
+ Eigen parkeerplaats in afgesloten parkeergarage
+ Inpandige berging op de begane grond
+ Gezamenlijke ontmoetingsruimte voor bewoners
+ VvE-bijdrage ca. € 320,88,- per maand
+ Comfortabel wonen met alles binnen handbereik
Of je nu op zoek bent naar rust, ruimte, een centrale ligging of een zorgeloze woonomgeving: dit appartement biedt het allemaal. Kom je snel een kijkje nemen?