| Prijs | € 1.595.000,- k.k. |
| Type object | Woonhuis, villa, vrijstaande woning |
| Perceeloppervlakte | 861 m² |
| Woonoppervlakte | 225 m² |
| Aanvaarding | In overleg |
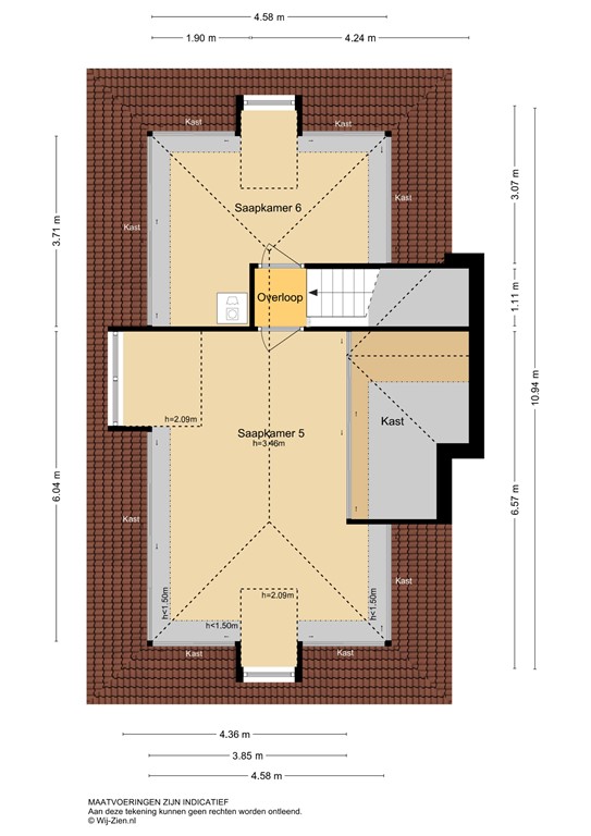
EEN UNIEKE KANS: VRIJSTAAND WONEN OP ÉÉN VAN DE MOOISTE PLEKKEN VAN DE REGIO: DE ICONISCHE ’S-GRAVENWEG! Wonen op een plek waar rust, ruimte én bereikbaarheid perfect samenkomen? Dit is zo’n zeldzame locatie waar je elke dag het gevoel hebt dat je buiten woont… maar toch zó in de stad bent. Deze villa op ’s-Gravenweg 724-J ligt verscholen op een exclusief villapark en biedt je precies dat: privacy, klasse en een droomligging die je maar zelden tegenkomt. YESS! DIT WIL JE NIET MISSEN – DE HIGHLIGHTS OP EEN RIJ: 1. Toplocatie aan de geliefde en karakteristieke ’s-Gravenweg 2. Gelegen op een exclusief en afgesloten villapark met alleen vrijstaande woningen 3. Volledig vrij gelegen aan water en groen – ultiem gevoel van rust en privacy 4. Riante woonoppervlakte van ca. 225 m² 5. Dubbele garage én brede oprit voor meerdere auto’s 6. Maar liefst 6 slaapkamers en 2 badkamers – ideaal voor gezin of werken aan huis 7. Luxe open keuken met granieten werkblad en Siemens apparatuur 8. Vloerverwarming op de begane grond 9. Volledig geïsoleerd en energielabel A 10. Grote zonnige tuin aan het water met vijver en veel privacy! Krijg je ook dat YESS-gevoel bij het lezen van deze punten? Dan nodigen wij je heel graag uit voor een bezichtiging van deze bijzondere villa! DE LIGGING: Hier woon je écht op een toplocatie. De ’s-Gravenweg staat bekend als één van de meest gewilde en karaktervolle lanen van de regio – een plek waar rust, historie en exclusief wonen samenkomen. En deze villa ligt misschien wel op één van de mooiste stukjes: verscholen op een afgesloten villapark, omringd door groen en water. Aan de achterzijde geniet je van volledige vrijheid, zonder inkijk, met een prachtig uitzicht over het water en de natuur. Hier hoor je vogels, zie je het water kabbelen en kom je écht tot rust. En toch… alles ligt binnen handbereik. Binnen enkele minuten loop je naar metrostation Capelsebrug, en met 10 minuten sta je midden in Rotterdam. Ook uitvalswegen (A16/A20), winkels, scholen en het Kralingse Bos liggen vlakbij. Rustig wonen, maar met de stad letterlijk om de hoek – beter wordt het niet. DE INDELING: Begane grond: De elektrische poort opent zich en je rijdt de brede oprit op, een gevoel van thuiskomen in stijl. Binnenkomend in de ruime hal valt direct de lichtinval op, dankzij de hoge plafonds en grote ramen die deze woning doordrenken met zonlicht. In de hal is er een prachtige trap, het toilet, de meterkast en toegang tot de woonkamer. De royale woonkamer is een heerlijke, lichte leefruimte met een sfeervolle erker en grote raampartijen rondom. Vanuit elke hoek kijk je uit over groen en water, wat zorgt voor een rustgevende sfeer. De vloer is voorzien van lichte vloertegels met vloerverwarming en de afwerking is tot in de puntjes verzorgd. Er zijn openslaande deuren wat een fijne verbinding geeft met de tuin. De open keuken is uitgevoerd in een luxe, tijdloze stijl met granieten blad en hoogwaardige apparatuur: een 5-pits gaskookplaat, afzuigkap, combimagnetron, oven, koelkast, vaatwasser en veel kastruimte. Aansluitend is er de serre met een speelse ronding, de ideale plek voor lekker tafelen! Via deze ruimte is er de bijkeuken met wasruimte en doorgang naar de dubbele garage. Boven de garage is een vliering aanwezig met betonvloer, het is hier ongeveer 70 cm hoog De tuin is zonder twijfel één van de parels van deze villa. Zuidgericht, groen, verzorgd en met een directe ligging aan het water. Hier geniet je van de rust, het geluid van vogels en het kabbelende water, een plek waar elke dag als vakantie voelt. De tuin is speels en groen aangelegd met veel beplanting, meerdere parkeerplaatsen aan de voorzijde, een fijn terras en een prachtige vijver met kooikarpers. Een groot deel van de tuin is onderheid waardoor het niet zal verzakken. Tevens is er nog een vrijstaande houten berging. Eerste verdieping: Je komt op deze verdieping op de luxe vide, wat de woning een hele hoogwaardige uitstraling geeft. Op deze verdieping zijn vier slaapkamers, waarvan de master bedroom toegang heeft tot het balkon met uitzicht over de tuin en het water en is voorzien van een inloopkast. De verdieping beschikt over twee nette badkamers. De hoofdbadkamer is via de master bedroom bereikbaar en voorzien van ligbad, douche, toilet en wastafelmeubel. De tweede badkamer met douche, wastafel en extra toilet Tweede verdieping: Hier bevinden zich nog twee ruime slaapkamers met dakramen en veel bergruimte. Deze kamers zijn ideaal als logeerkamer, werkruimte of hobbykamer. In één van deze kamers is er ruimte voor de opstelplaats voor de wasmachine en droger. DE AFMETINGEN: Voor de afmetingen en indeling, zie de plattegronden. DE BIJZONDERHEDEN: - Energielabel A; - Gelegen op een villapark; - Dubbele garage en ruime oprit; - Volledig geïsoleerd; - Vloerverwarming op de begane grond; - CV-installatie Atag Q42CR uit 2020; - Airconditioning aanwezig; - Elektrisch bedienbare zonnewering/markies; - Alarm installatie 2 groepen, begane grond en eerste verdieping; - Bouwjaar 2005; - Woonoppervlakte 225 m²; - Perceeloppervlakte 861 m²; - Inhoud 967 m³; - Berging 12 m², garage 30 m²; - Bijdrage villapark: €600,- per jaar voor onderhoud, verlichting en beveiliging; - Oplevering in overleg. De Meetinstructie is gebaseerd op de NEN2580. De Meetinstructie is bedoeld om een meer eenduidige manier van meten toe te passen voor het geven van een indicatie van de gebruiksoppervlakte. De Meetinstructie sluit verschillen in meetuitkomsten niet volledig uit, door bijvoorbeeld interpretatieverschillen, afrondingen of beperkingen bij het uitvoeren van de meting. Alle verstrekte informatie moet beschouwd worden als een uitnodiging tot het doen van een bod of om in onderhandeling te treden. Er kunnen geen rechten worden ontleend aan deze woninginformatie. Ben jij net zo enthousiast als wij over deze villa? Bel, mail of app ons gerust voor een afspraak of laat je gegevens achter via deze site!
| Referentienummer | 00501 |
| Vraagprijs | € 1.595.000,- k.k. |
| Aanvaarding | In overleg |
| Type object | Woonhuis, villa, vrijstaande woning |
| Soort bouw | Bestaande bouw |
| Bouwperiode | 2005 |
| Dakbedekking | Dakpannen |
| Type dak | Samengesteld |
| Isolatievormen | HR-glas Volledig geïsoleerd |
| Perceeloppervlakte | 861 m² |
| Woonoppervlakte | 225 m² |
| Inhoud | 968 m³ |
| Oppervlakte overige inpandige ruimten | 30 m² |
| Oppervlakte externe bergruimte | 12 m² |
| Oppervlakte gebouwgebonden buitenruimte | 8 m² |
| Aantal bouwlagen | 3 |
| Aantal kamers | 7 (waarvan 6 slaapkamers) |
| Aantal badkamers | 2 (en 1 apart toilet) |
| Ligging | Aan rustige weg Aan water Beschutte ligging Dichtbij openbaar vervoer In woonwijk Nabij school |
| Type | Tuin rondom |
| Hoofdtuin | Ja |
| Oriëntering | Zuid-west |
| Staat | Prachtig aangelegd |
| Energielabel | A |
| CV ketel | Atag |
| Warmtebron | Gas |
| Bouwjaar | 2020 |
| Combiketel | Ja |
| Eigendom | Eigendom |
| Aantal parkeerplaatsen | 5 |
| Aantal overdekte parkeerplaatsen | 2 |
| Warm water | CV-ketel |
| Verwarmingssysteem | Centrale verwarming Vloerverwarming (gedeeltelijk) |
| Ventilatie methode | Mechanische ventilatie |
| Keukenvoorzieningen | Inbouwapparatuur |
| Badkamervoorzieningen Badkamer 1 | Douche Ligbad Toilet Wastafelmeubel |
| Badkamervoorzieningen Badkamer 2 | Douche Toilet Wastafelmeubel |
| Parkeergelegenheid | Inpandige garage |
| Heeft airco | Ja |
| Heeft een alarm | Ja |
| Heeft een balkon | Ja |
| Heeft kabel-tv | Ja |
| Tuin aanwezig | Ja |
| Heeft een garage | Ja |
| Beschikt over een internetverbinding | Ja |
| Heeft schuur/berging | Ja |
| Heeft een dakraam | Ja |
| Heeft ventilatie | Ja |
| Kadastrale aanduiding | Kralingen H 1456 |
| Perceeloppervlakte | 861 m² |
| Omvang | Geheel perceel |
| Eigendomsituatie | Eigen grond |