Beschrijving
Welkom aan de Aegidiusstraat 179 te Kralingen, gelegen in een van de meest geliefde en karaktervolle straten van Kralingen.
Toch woon je hier midden in de stad, op loopafstand van de Lusthofstraat met haar gezellige winkels, boetiekjes en eetgelegenheden.
Ook het Kralingse Bos en de Plas liggen om de hoek ideaal voor sport, ontspanning of een picknick.
Alles aan deze woning ademt kwaliteit, licht en luxe een plek waar elk gezinslid zich direct thuis voelt en waar het dagelijkse leven moeiteloos overgaat in ontspannen genieten.
U kiest voor deze woning:
• Bouwjaar 2016
• Energielabel A
• Volledig eigen grond
• Tussenwoning in Kralingen
• Gebruiksoppervlakte wonen 137m2
• Het is een vier (4) kamerwoning en een zolder
• Er zijn 2 dakkapellen geplaats op zolder, waardoor een vijf (5) kamerwoning is te maken
• Aan de voorzijde van de woning is er een inpandige berging aanwezig met plek voor meerdere fietsen met een
eigen deur
• Vanwege de beschutte ligging is dit een heerlijke plek om te vertoeven
• De ligging middenin Kralingen-Oost zorgt ervoor dat alle voorzieningen binnen handbereik zijn, waarbij de
Lusthofstraat met een diversiteit aan speciaalzaken, restaurants en supermarkten letterlijk op steenworp afstand
ligt
• Geheel voorzien van houten kozijnen
• Voorzien van dubbele beglazing
• Verwarming en warm water middels CV-ketel (2016)
• Voor de maatvoering verwijzen we u graag naar de plattegronden.
• Oplevering in overleg, kan snel
Reageren via john@devastgoedexperts.nl
Indeling
De indeling van de woning is bijzonder efficiënt met op de begane grond onder andere een woonkamer aan de achterzijde en een open keuken aan de voorzijde.
Er is een berging met een eigen deur.
Eerste verdieping
Op de slaapverdieping zijn maar liefst drie slaapkamers, een badkamer aanwezig en aansluiting voor de wasmachine en droger.
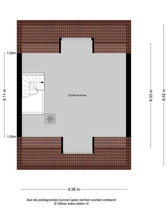
Tweede verdieping
Zolderverdieping een open ruimte voorzien van twee dakkapellen en de uniek hoge nok zorgt voor een bijzonder ruimtelijk gevoel.
Bijzonderheden
In de omgeving
Tevens is er in de wijk een ruime keuze aan (basis)scholen, kinderopvang en sportfaciliteiten en bieden het Kralingse Bos en de Kralingse Plas voldoende mogelijkheden om te kunnen ontspannen.
Het stadscentrum is op ongeveer 10 minuten fietsafstand gelegen.
Dit maakt deze plek tot een zeer centrale locatie voor stadsliefhebbers.
Er is een gunstige ligging ten opzichte van de Erasmus Universiteit, openbaar vervoer (metro en tram) en de uitvalswegen A16 en A20.
In de wijk geldt betaald parkeren. Een vergunning is aan te vragen bij de gemeente.
Gebruiksoppervlak Wonen
De getoonde gebruiksoppervlakten zijn berekend conform de in de branche geldende meetinstructie.
Deze is gebaseerd op de NEN 2580. Deze meetinstructie is bedoeld om een meer eenduidige manier van meten toe te passen het geven van een indicatie van de gebruiks - oppervlakte. De meetinstructie sluit verschillen in meetuitkomsten niet volledig uit, door bijvoorbeeld interpretatieverschillen, afrondingen of beperkingen bij het uitvoeren van de meting.
Koper kan geen rechten ontlenen aan de opgegeven maatvoering/meetrapport. Koper wordt voor het tot stand komen van een overeenkomst in de gelegenheid gesteld de woning op te (laten) meten.
Internet-/Brochure-informatie
De brochure alsmede de middels internet verstrekte informatie is met de grootst mogelijke zorg samengesteld en geeft een zo duidelijk mogelijk beeld van de woning die wordt aangeboden.
Verkoper en/of verkopend makelaar geven geen garantie op volledige juistheid van deze informatie. Koper wordt nadrukkelijk in de gelegenheid gesteld de woning en apparatuur voor het tot stand komen van een overeenkomst te inspecteren op merk type en werking.
Rechtsgeldige koopovereenkomst pas ná ondertekening
Een mondelinge overeenstemming tussen de particuliere verkoper en de particuliere koper is niet rechtsgeldig. Met andere woorden: er is geen koop. Er is pas sprake van een rechtsgeldige koop als de particuliere verkoper en de particuliere koper de koopovereenkomst hebben ondertekend. Dit vloeit voort uit artikel 7:2 Burgerlijk Wetboek. Een bevestiging van de mondelinge overeenstemming per e-mail of een toegestuurd concept van de koopovereenkomst wordt overigens niet gezien als een ‘ondertekende koopovereenkomst’.
Plattegronden
180535780_1599705_aegid_begane_grond_first_design_20251220_a42c75.jpg
180535780_1599705_aegid_eerste_verdiepi_first_design_20251220_62ba43.jpg
180535780_1599705_aegid_tweede_verdiepi_first_design_20251220_e3addb.jpg
Schermafbeelding 2025-12-21 om 11.23.41.png