Beschrijving

DEZE WONING DOET MEE AAN DE LANDELIJKE OPEN HUIZEN DAG!
Op zaterdag 28 maart ben je tussen 11.00 en 15.00 uur van harte welkom om vrijblijvend binnen te lopen. Een afspraak maken is niet nodig!
Liever eerder bezichtigen? Bel dan naar 085-3033413 voor het plannen van een afspraak.

Wat een fantastische, karaktervolle dubbele bovenwoning is dit! Hier woon je in stijl, met veel ruimte, sfeer en een verrassende indeling die je meteen het gevoel van thuiskomen geeft.

YESS! DIT WIL JE NIET MISSEN – DE HIGHLIGHTS OP EEN RIJ:

1.	Dubbele bovenwoning met ca. 93 m² woonoppervlakte;
2.	Gelegen op het populaire Noordereiland;
3.	Twee volwaardige slaapkamers;
4.	Ruime, lichte woonkamer met hoge ramen;
5.	Grote eetkeuken van bijna 4 meter breed;
6.	Badkamer én separaat toilet;
7.	Charmante details: hoge plafonds, mooie lichtval, karakteristieke kap op zolder;
8. Geheel voorzien van nieuwe houten kozijnen met HR ++ beglazing en een nieuwe Cv-ketel uit 2025;
9.	Gelegen op eigen grond;
10. Unieke ligging midden in de Maas met alle voorzieningen binnen handbereik.

Krijg je ook dat YESS-gevoel bij het lezen van deze punten? Dan nodigen wij je heel graag uit voor een bezichtiging van deze leuke woning!

DE LIGGING:
Wonen op het Noordereiland is wonen op een van de meest bijzondere plekken van Rotterdam. Dit eiland, midden in de Maas, voelt als een rustig dorp in de stad. De statige herenhuizen, historische sfeer en fijne woonstraten maken het een plek waar je direct verliefd op wordt.

Je wandelt zo over de Maaskade, met indrukwekkend uitzicht op de skyline, de Hef en de Willemsbrug. In de directe omgeving vind je leuke buurtwinkels, gezellige koffietentjes en goede restaurants. En wil je naar de andere kant van de rivier? Dan sta je binnen enkele minuten in het bruisende stadscentrum, op de Kop van Zuid of in De Kuip.

Het Noordereiland is bovendien ideaal voor rustzoekers die het stadsleven niet willen missen: de verkeersdrukte is beperkt, de straten zijn sfeervol en breed, en de waterkant is altijd dichtbij voor een ontspannen wandeling of een momentje uitzicht. Een plek die je moet ervaren om te begrijpen waarom de bewoners hier zo graag blijven.


DE INDELING
Bij binnenkomst beschik je over de gedeelde entree op de begane grond. Vanuit hier leidt een vaste trap je naar de eerste woonlaag, waar het woongedeelte zich bevindt.

Tweede verdieping
Op de overloop vind je direct het separate toilet, evenals de trapopgang naar de bovenste woonlaag. Vanuit de overloop stap je de lichte en sfeervolle woonkamer aan de straatzijde binnen. Dankzij de hoge ramen stroomt het daglicht royaal naar binnen, wat de ruimte een open en aangename uitstraling geeft. De fraaie vloer en warme sfeer maken dit tot een plek waar je je meteen thuis voelt, een ideale leefruimte om te ontspannen na een drukke dag.
Aan de achterzijde van de woning bevindt zich de ruime eetkeuken. Dit is werkelijk een heerlijke leefruimte waar koken, tafelen en gezellig samen zijn centraal staan. Door de royale lichtinval en de mogelijkheid om een grote eettafel te plaatsen, voelt deze keuken als het hart van de woning. De keuken is praktisch ingedeeld en voorzien van een afzuigkap, 4-pits gasstel, oven (geplaatst in 2024) vaatwasser (vernieuwd in 2025) en losse koelkast. Hier geniet je van lange, gezellige avonden met vrienden of familie.

Derde verdieping
De bovenste verdieping herbergt twee fijne slaapkamers, elk met hun eigen charme. De master bedroom is een echte eyecatcher: de karakteristieke balken, de hoogte tot in de nok en de warme uitstraling van de kap geven deze kamer een rustgevende en bijna loftachtige sfeer. Een ideale plek om je even volledig terug te trekken.
De tweede slaapkamer is een fijne, multifunctionele ruimte die perfect dienst kan doen als kinder-, werk- of logeerkamer. De praktische indeling biedt volop mogelijkheden. In de kamer is bovendien een handige bergkast aanwezig met de cv-ketel en witgoedaansluiting, ideaal voor extra opbergruimte en een efficiënte indeling.
Op deze verdieping bevindt zich ook de badkamer. Deze is netjes en functioneel ingericht, voorzien van een douchecabine, een wastafelmeubel en een tweede toilet. Alles wat je nodig hebt voor een comfortabele start van de dag.

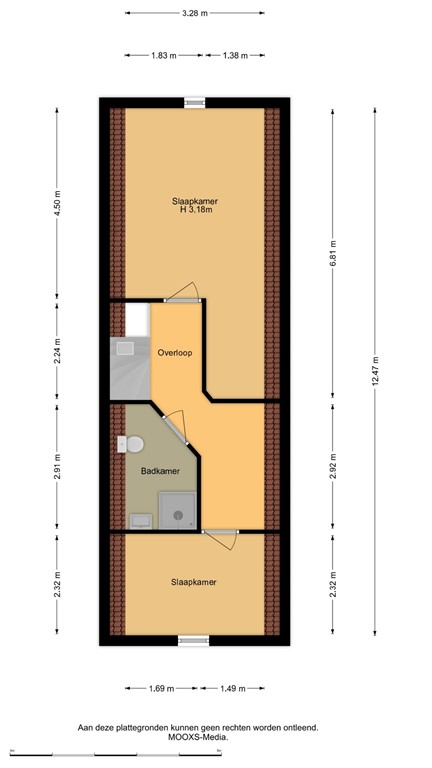
DE AFMETINGEN:
Voor de afmetingen en indeling, zie de plattegrond.

DE BIJZONDERHEDEN:
•	Bouwjaar 1885;
•	Energielabel D ;
•	HR++ beglazing;
•	Verwarming en warm water middels C.V-ketel (merk: Intergas, bouwjaar: 2025, eigendom);
•	Vve bijdrage: € 105,60,- per maand;
•	Actieve Vve met meerjarenonderhoudsplan;
•	Woonoppervlakte van 93 m2;
•	2 ruime slaapkamers;
•	Wonen op een unieke plek in Rotterdam;
•	Gelegen in een rustige straat met voldoende parkeergelegenheid;
•	Nabij diverse voorzieningen;
•	Oplevering in overleg, gewenst vanaf 1 juni 2026, uiterlijk eind juni 2026.

De Meetinstructie is gebaseerd op de NEN2580. De Meetinstructie is bedoeld om een meer eenduidige manier van meten toe te passen voor het geven van een indicatie van de gebruiksoppervlakte. De Meetinstructie sluit verschillen in meetuitkomsten niet volledig uit, door bijvoorbeeld interpretatieverschillen, afrondingen of beperkingen bij het uitvoeren van de meting.

Alle verstrekte informatie moet beschouwd worden als een uitnodiging tot het doen van een bod of om in onderhandeling te treden. Er kunnen geen rechten worden ontleend aan deze woninginformatie.

Ben jij net zo enthousiast als wij over deze woning? Bel, mail of app ons gerust voor een afspraak of laat je gegevens achter via deze site!


Here is the English translation:

What a fantastic, character-filled double upper-floor apartment this is!
Here you live in style, with plenty of space, atmosphere, and a surprising layout that instantly makes you feel at home.

YES! YOU DON’T WANT TO MISS THIS – THE HIGHLIGHTS AT A GLANCE:

1. Double upper-floor apartment with approx. 93 m² of living space;
2. Located on the popular Noordereiland;
3. Two full-sized bedrooms;
4. Spacious, bright living room with high windows;
5. Large eat-in kitchen nearly 4 meters wide;
6. Bathroom and separate toilet;
7. Charming details: high ceilings, beautiful natural light, and a characteristic attic roof;
8. Fully fitted with new wooden window frames with HR++ glazing and a new central heating boiler (2025);
9. Located on freehold land;
10. Unique location in the middle of the Maas River, with all amenities within easy reach.

Do you get that same YES-feeling when reading these points? Then we would be delighted to invite you for a viewing of this lovely home!

THE LOCATION

Living on the Noordereiland means living in one of the most special places in Rotterdam. This island, situated in the middle of the Maas, feels like a peaceful village within the city. The stately townhouses, historic atmosphere, and pleasant residential streets make it a place you instantly fall in love with.

You can stroll along the Maaskade with impressive views of the skyline, De Hef, and the Willemsbrug. In the immediate vicinity you’ll find charming local shops, cozy coffee spots, and excellent restaurants. Want to cross the river? Within minutes you’re in the vibrant city center, on Kop van Zuid, or at De Kuip.

The Noordereiland is also ideal for those seeking tranquility without missing out on city life: traffic is limited, streets are wide and atmospheric, and the waterfront is always nearby for a relaxing walk or a moment to enjoy the view. A place you truly need to experience to understand why residents love to stay here.

THE LAYOUT

Upon entering, you use the shared entrance on the ground floor. From here, a fixed staircase leads you to the first residential level where the living area is located.

Second Floor

On the landing you’ll find the separate toilet and the staircase to the top floor. From the landing you enter the bright and inviting living room at the front of the property. Thanks to the high windows, daylight flows in abundantly, giving the room an open and pleasant feel. The attractive flooring and warm ambiance make this a space where you immediately feel at home—ideal for unwinding after a busy day.

At the rear of the apartment is the spacious eat-in kitchen. This is truly a wonderful living space where cooking, dining, and spending time together take center stage. Thanks to the generous natural light and room for a large dining table, the kitchen feels like the heart of the home. The kitchen is practically laid out and equipped with an extractor hood, 4-burner gas stove, oven (installed in 2024), dishwasher (renewed in 2025), and a freestanding refrigerator. A perfect place for long, cozy evenings with friends or family.

Third Floor

The top floor features two pleasant bedrooms, each with its own charm. The master bedroom is a real eye-catcher: the characteristic beams, the height up to the ridge, and the warm feel of the roof structure give this room a calming, almost loft-like atmosphere—an ideal retreat.

The second bedroom is a versatile space, perfectly suited as a child’s room, home office, or guest room. Its practical layout offers plenty of possibilities. This room also includes a convenient storage closet housing the central heating boiler and laundry connections, ideal for extra storage and an efficient layout.

This floor also contains the bathroom, which is neatly and functionally finished with a shower cabin, vanity unit, and a second toilet—everything you need for a comfortable start to the day.

DIMENSIONS

For dimensions and layout, please refer to the floor plans.

PARTICULARS

- Year of construction: 1885;
- Energy label: D;
- HR++ glazing;
- Heating and hot water via central heating boiler (brand: Intergas, year: 2025, owned);
- Homeowners’ association (VvE) contribution: €105.60 per month;
- Active VvE with a multi-year maintenance plan;
- Living area: 93 m²;
- 2 spacious bedrooms;
- Living in a unique location in Rotterdam;
- Situated on a quiet street with ample parking;
- Close to various amenities;
- Delivery in consultation, preferably from June 1, 2026, no later than the end of June 2026.

The measurement instruction is based on NEN 2580 and is intended to provide a more uniform method of measuring usable floor area. Differences in measurement outcomes cannot be completely excluded due to interpretation differences, rounding, or limitations during measurement.

All information provided should be considered an invitation to make an offer or enter into negotiations. No rights can be derived from this property information.

Are you just as enthusiastic about this home as we are?
Feel free to call, email, or message us to schedule an appointment, or leave your details via this website!

Kenmerken