Beschrijving

LICHT, LUCHT & TWEE BALKONS – HOEKAPPARTEMENT MET ZON-GARANTIE!
Op zoek naar een instapklaar appartement met nét dat beetje extra? Dit heerlijke 3-kamer hoekappartement op de derde/bovenste verdieping combineert licht, ruimte en twee balkons (ja, echt twee!) op een fijne plek in Rotterdam.

Dankzij de hoekligging profiteer je hier van extra ramen en een prachtige lichtinval gedurende de dag. ’s Ochtends koffie in de zon op het oostbalkon, ’s avonds nog even nagenieten op het westbalkon. Zonliefhebbers opgelet: dit zit wel goed.

De afwerking is netjes, de badkamer modern en de sfeer prettig. Hier hoef je geen weken te klussen — koffers uitpakken en wonen maar.

RUSTIG WONEN, SNEL IN DE STAD
Je woont hier in een rustige wijk in Rotterdam-Zuid, met alle dagelijkse voorzieningen binnen handbereik. Supermarkt, openbaar vervoer en uitvalswegen? Alles dichtbij.

Even ontspannen? Het park en diverse sportverenigingen liggen om de hoek. Werk je in de zorg of heb je een drukke baan? Dan is dit een ideale uitvalsbasis: rustig thuiskomen, maar de stad altijd binnen bereik.

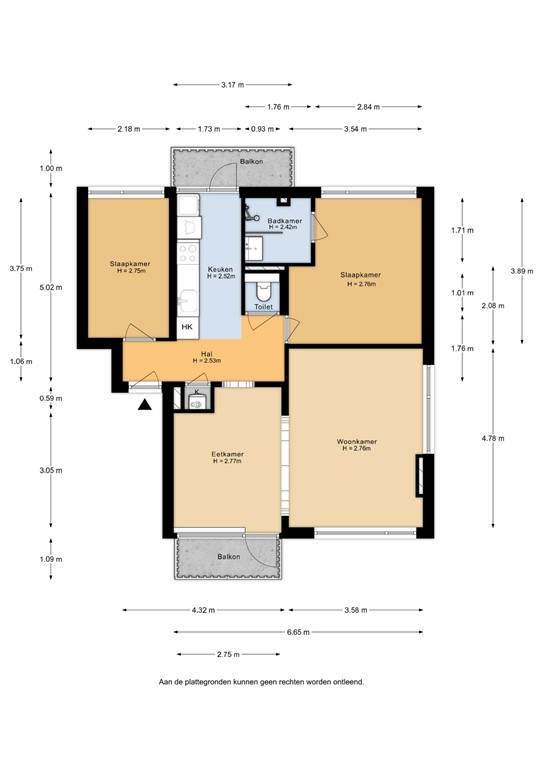
DE INDELING
Via de afgesloten entree bereik je het trappenhuis en de bergingen.

Boven kom je binnen in de hal met separaat toilet. Vanuit hier zijn vrijwel alle ruimtes bereikbaar.

De woonkamer aan de voorzijde is heerlijk licht en biedt voldoende ruimte voor een royale zithoek én een gezellige eethoek. De extra zijramen maken hier echt het verschil — het daglicht stroomt naar binnen.

De afgesloten keuken is praktisch ingericht en voorzien van een inductiekookplaat, combi magnetron/oven, koel-/vriescombinatie en volop bergruimte. Ook vind je hier de aansluiting voor de wasmachine. Vanuit de keuken stap je zo het balkon op het oosten op — perfect voor een rustige start van de dag.

Het tweede balkon, gelegen op het westen en bereikbaar vanuit de woonkamer, is dé plek om na een lange werkdag nog even van de avondzon te genieten.

Aan de achterzijde bevinden zich twee slaapkamers. De moderne badkamer beschikt over een inloopdouche en wastafelmeubel. De extra kamer maakt het appartement flexibel in gebruik: logeerkamer, thuiskantoor of walk-in closet? Jij bepaalt.

WAT MAAKT DIT APPARTEMENT AANTREKKELIJK?
• Instapklaar hoekappartement
• Extra lichtinval dankzij zijramen
• Twee balkons (oost én west)
• Eigen berging/hobbyruimte (ca.11m2) op de begane grond
• Gelegen op eigen grond

Een licht, praktisch en comfortabel appartement op een fijne locatie — ideaal als eerste koopwoning of als slimme stap in de Rotterdamse woningmarkt.

BIJZONDERHEDEN
	•	Gelegen op de 3e verdieping
	•	Bouwjaar 1960
	•	Woonoppervlakte ca. 68 m²
	•	Balkons voor en achter, ieder ca. 3 m²
	•	Eigen grond
	•	Energielabel E
	•	Verwarming en warm water via combi-ketel (2016)
	•	Actieve VvE, bijdrage € 237,81 per maand
	•	Privéberging/hobbyruimte op de begane grond (maar liefst ca. 11 m²)
	•	Oplevering in overleg
	•	Vraagprijs € 249.950 k.k.

IDEALE START
Of je nu je eerste koopwoning zoekt, regelmatig thuiswerkt of gewoon comfortabel wilt wonen met buitenruimte — dit appartement biedt een fijne thuisbasis.

Berichtje van de bewoonster:
Mijn eerste eigen huis en wat heb ik hier zes fantastische jaren gewoond. Het is een fijn huis in een rustige buurt met alles dichtbij. Door het vele groen hier in de wijk kon ik mij heerlijk terugtrekken voor een wandeling en met de metro om de hoek was ik zo in de stad. De ideale balans tussen rust en de gezellige drukte. Dat maakte het voor mij erg prettig om hier te wonen.

Zie jij jezelf hier al zitten op het balkon in de zon? 
Wacht dan niet te lang en plan snel een bezichtiging via Funda. Woningen als deze trekken vaak veel belangstelling en aanvragen worden op volgorde van binnenkomst behandeld.

Voor alle afmetingen verwijzen wij naar de plattegrond en het meetrapport. Heb je serieuze interesse? Dien dan direct via Funda een bezichtigingsaanvraag in – wij laten je de woning graag persoonlijk zien.

BOS Makelaardij is de VastgoedNederland (VBO)-makelaar van de verkoper. Wij adviseren je om een eigen aankoopmakelaar mee te nemen die jouw belangen kan behartigen bij de aankoop van deze woning.

Kenmerken