Beschrijving

Welkom bij Meerdijk 23: een lichte, verrassende eengezinswoning op een aantrekkelijke hoeklocatie in een kindvriendelijke wijk van Rotterdam. Gebouwd in 1963, gelegen op een perceel van 178 m² en recent voorzien van nieuw buitenschilderwerk (2025), biedt deze woning direct een instapklaar gevoel. Bovendien is in 2024, in verband met het ophogen van de straat, de gehele riolering vernieuwd — een duurzame verbetering waar u jarenlang profijt van heeft.

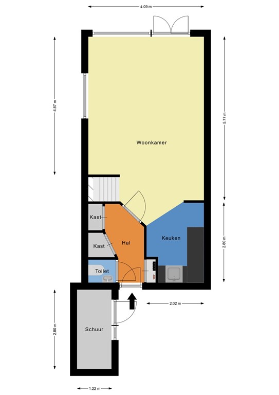
Ruimte en licht
Dankzij de hoekligging profiteert u van extra ramen en daardoor veel daglicht. De woonkamer is aan de achterzijde gelegen en biedt directe toegang tot de ruime achtertuin. Daarnaast zijn er diverse mogelijkheden voor toekomstige uitbouw aan de zijkant of aan de achterzijde van de woning, zodat u de woning naar eigen wens kunt vergroten.

Tuin en ligging
De ruime, zonnige achtertuin is ideaal voor tuinliefhebbers, kinderen of gezellige barbecue avonden. Alle voorzieningen zoals winkels, scholen, sportclubs en openbaar vervoer liggen op loop- of fietsafstand, en het centrum van Rotterdam bereikt u snel en eenvoudig. Rondom de tuin is een nieuwe schutting geplaatst, aan de straatzijde in 2023 en naar buren is deze in 2025 vernieuwd.

Praktisch en veelzijdig
De woning beschikt over goed formaat slaapkamers, geschikt voor gezin, logees of thuiswerk. De degelijke bouw, handige indeling en volop bergruimte maken dit huis geschikt voor elke levensfase. Bovendien is er een mogelijkheid voor een extra opbouw op de eerste verdieping.

Tuin

Bij deze woning hoort een verrassend ruime achtertuin op het zuidwesten gelegen met extra zijtuin, perfect voor wie houdt van buiten leven. Dankzij de gunstige hoekligging profiteert u van veel zon én privacy.

De achtertuin combineert het beste van twee werelden: een verzorgd gazon voor groen en speelruimte, en een strak betegeld terras voor ontspannen loungen of gezellig dineren. De sfeervolle, met klimop begroeide pergola vormt een charmante blikvanger en biedt een natuurlijke scheiding tussen de zitplek en het grasgedeelte. Langs de randen zorgen volwassen beplanting en kleurrijke borders voor een groene omlijsting.

Achterin de tuin vindt u een praktische houten berging, ideaal voor fietsen, tuingereedschap of barbecue. De extra zijtuin geeft niet alleen meer buitenruimte, maar ook een vrijer gevoel en mogelijkheden voor bijvoorbeeld een speelplaats, kruidentuin of tweede terras.

Hier heeft u alle ruimte om te ontspannen, te tuinieren én te genieten van lange zomerdagen in uw eigen groene oase.

Bijzonderheden

Kadastraal bekend; het woonhuis met ondergrond, tuin en verder toebehoren gelegen te 3079 TB Rotterdam, Meerdijk 23, kadastraal bekend gemeente IJsselmonde, sectie B, nummer 6178 ter grootte van een are en achtenzeventig centiare (1 a 78 ca),

• Eigen grond
• Bouwjaar: 1963
• Woonoppervlak: 71m² (inhoud: 185³)
• Buitenschilderwerk in 2025 gedaan
• Volledige riolering in 2024 vervangen in de woning.
• Verwarming d.m.v. Cv-ketel uit 2015
• Energielabel E geldig tot 09-04-2027
• Oplevering in overleg, kan snel.

• Ondanks dat grote zorgvuldigheid is betracht bij het samenstellen van de verkoopinformatie wordt voor de onjuistheid van de vermelde gegevens door de eigenaar noch door de verkopend makelaar enige aansprakelijkheid aanvaard.

• Rechtsgeldige koopovereenkomst pas ná ondertekening: Een mondelinge overeenstemming tussen de particuliere verkoper en de particuliere koper is niet rechtsgeldig. Met andere woorden: er is (nog) geen koop. Er is pas sprake van een rechtsgeldige koop als de particuliere verkoper en de particuliere koper de koopovereenkomst hebben ondertekend. Dit vloeit voort uit artikel 7:2 Burgerlijk Wetboek. Een bevestiging van de mondelinge overeenstemming per e-mail of een toegestuurd concept van de koopovereenkomst wordt overigens niet gezien als een ‘ondertekende koopovereenkomst’.

Kenmerken