Beschrijving
Sfeervol Appartement met Balkon in Rotterdam – Ideaal voor Starters!
Bent u op zoek naar een charmant appartement dat u direct kunt betrekken? Dit appartement aan de Tapuitstraat 98C biedt volop mogelijkheden! Met 2 slaapkamers, een zonnig balkon op het westen, en gelegen in de levendige wijk Rotterdam-Charlois, is dit de ideale plek voor starters of kleine gezinnen. De woning is onderdeel van een portiekflat met 2 verdiepingen, beschikt over energielabel B en is voorzien van een cv-ketel uit 2017. Het bouwjaar is 1947. Kortom: een sfeervol appartement waar u zorgeloos kunt wonen!
Ligging en Omgeving Dit appartement is gelegen in de wijk Charlois, een levendige en centraal gelegen buurt in Rotterdam. In de directe omgeving vindt u diverse winkels, horeca en recreatiemogelijkheden* Supermarkt: op slechts 2 minuten loopafstand.
* Winkelcentrum Zuidplein: slechts 6 minuten rijden.
* Openbaar vervoer: bushalte op 5 minuten lopen, metrostation op 10 minuten lopen.
* Scholen: meerdere basisscholen en een middelbare school op 7 minuten rijden.
* Parkeren: gratis parkeren in de straat.
Indeling
Begane grond
Gezamenlijke entree met bellentableau en brievenbussen. Op de tweede verdieping bevindt zich de ingang van de woning. De ruime woonkamer biedt veel lichtinval en is voorzien van een laminaatvloer. Vanuit de woonkamer heeft u toegang tot het balkon op het westen, waar u heerlijk kunt genieten van de middag- en avondzon. De halfopen keuken is uitgerust met moderne apparatuur, zoals een gasfornuis, oven en afzuigkap. Daarnaast bevinden zich op deze verdieping een aparte wc, een eetkamer en een slaapkamer. Vanuit de eetkamer is een derde slaapkamer te realiseren.
Eerste verdieping
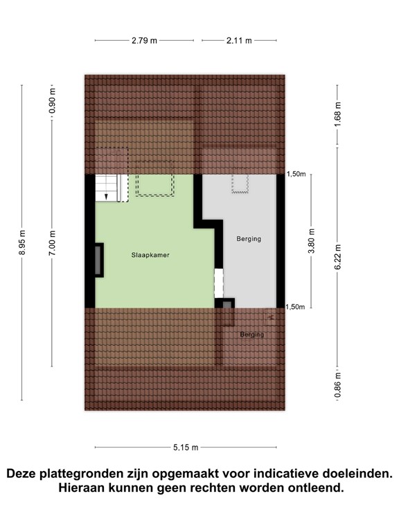
Op de eerste verdieping van de woning bevindt zich de tweede slaapkamer en een walk-in closet.
Slaapgedeelte Het appartement beschikt over twee slaapkamers, met de mogelijkheid voor een derde slaapkamer op de begane grond van de woning. De badkamer is eenvoudig en voorzien van een douche en wastafel.
Balkon
Het balkon op het westen biedt een fijne plek om te ontspannen en van de zon te genieten.
Bijzonderheden
* Woonoppervlakte: 75 m².
* Bouwjaar: 1947.
* Energielabel B.
* Cv-ketel uit 2017.
* Balkon op het westen.
* Geen erfpacht.
Samenvatting
* 2 slaapkamers.
* Ruime woonkamer met veel lichtinval.
* Halfopen keuken met moderne apparatuur.
* Balkon op het westen.
* Gelegen in de levendige wijk Rotterdam-Charlois.
* 2 verdiepingen.
* Mogelijkheid tot realiseren van een derde slaapkamer.
* Walk-in closet op de tweede verdieping van de woning.
Een sfeervol appartement op een gunstige locatie. Maak snel een afspraak voor een bezichtiging en ontdek de mogelijkheden van deze leuke woning!
Plattegronden
166895063_1528748_tapui_tweede_verdiepi_first_design_20241213_853776.jpg
166895063_1528748_tapui_derde_verdiepin_first_design_20241213_18d3c4.jpg
166895063_1528748_tapui_berging_first_design_20241213_d7f796.jpg
166895063_1528748_tapui_berging_first_design_20241213_3dbd0f.jpg