Beschrijving

Sportparklaan 1 Schoonoord
Verrassend ruime vrijstaande woning 

Op korte afstand van de sporthal en de winkels van Schoonoord staat deze vrijstaande, degelijk gebouwde semibungalow met vrijstaande garage. De woning is op solide wijze opgetrokken en staat op een ruim hoekperceel, waardoor je geniet van veel privacy en een vrij uitzicht op de omgeving. De diepe voortuin grenst samen met het aangrenzende fietspad aan de Slenerweg, terwijl de voordeur is gesitueerd aan de rustige Sportparklaan.

Dankzij de gunstige hoekligging is er minder bebouwing rondom en kun je heerlijk de straat inkijken. De woning is gebouwd met lichte baksteen, wat zorgt voor een frisse en karakteristieke uitstraling.

Deze stevige en goed onderhouden woning, gebouwd in 1995, staat op een perceel van 611 m² eigen grond. De aanwezige vloer-, muur- en dakisolatie en de dubbele beglazing dragen bij aan zowel comfort als energiezuinigheid en verklaren het huidige energielabel C. De ligging van het dak maakt het bovendien aantrekkelijk om zonnepanelen te plaatsen en met bijvoorbeeld een hybride ketel kun je de woning eenvoudig toekomstbestendig en nog energiezuiniger maken.

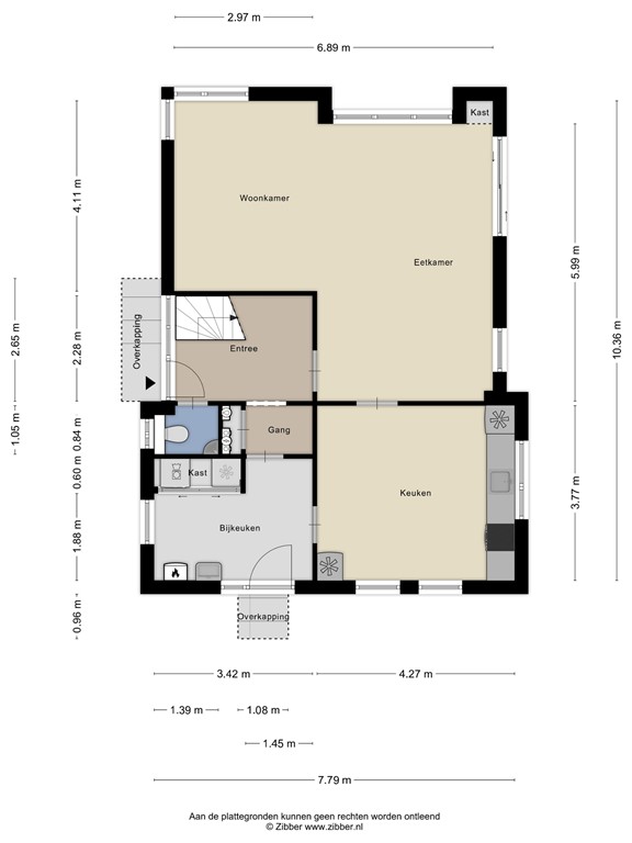
De indeling van de woning is als volgt:

Rondom het perceel is een groene haag aangebracht en een ijzeren hekwerk bij de oprit. Je kunt je auto parkeren op eigen terrein op de oprit of in de vrijstaande houten garage. De voordeur is aanwezig, maar het is gebruikelijk om via de achterdeur en de bijkeuken de woning binnen te stappen. 

De bijkeuken is ruim van afmeting en voorzien van een kastenwand met daarachter de aansluitingen voor een wasmachine en/of droger op stahoogte en ruimte voor je voorraad en de cv-ketel. Praktisch is de extra gootsteen met wam en koud water. 

Je loopt vervolgens door naar de gesloten keuken. De nette inbouwkeuken is in een hoekopstelling geplaatst en voorzien van de nodige inbouwapparatuur. Fijn is de raampartij met zicht op de mooie tuin.
Zowel de keuken als de bijkeuken is voorzien van vloerverwarming middels retourleidingen naar de cv-ketel.

De L-vormige woonkamer biedt zowel zicht op de tuin als op de straat. De gehele begane grond is voorzien van lichte plavuizen. De woning beschikt overal over centrale verwarming met de bijbehorende radiatoren.

Eerste verdieping:
Middels een vaste trap met vide bereik je de eerste verdieping. De hoge nok zorgt ervoor dat er vier ruime slaapkamers aanwezig zijn. De masterbedroom heeft een kastenwand en toegang tot een balkon.

De nette badkamer is volledig betegeld en voorzien van een wastafelmeubel, een tweede toilet, een douchehoek en een designradiator.  

Tweede verdieping:
Middels vlizotrap bereikbare zolder.

De woning is in de loop der jaren goed onderhouden en zorgvuldig bewoond. Daardoor is het relatief eenvoudig om de woning naar eigen smaak en wensen aan te passen.

Tuin:
De oprit naar de garage toe is praktisch voorzien van bestrating. Doordat het metselwerk aan de voorzijde schuin wegloopt tot aan de grond, kun je hierachter heerlijk beschut op het terras zitten. De zonwering is prettig bij warm weer. Rondom de woning kun je lopen door de aangebrachte tegels, handig om een trap te plaatsen en je ramen te wassen.  Grasmaaien is niet meer nodig, want er is een robotmaaier aanwezig (ter overname). Door de aanwezige waterbron kun je de planten makkelijk voorzien van water. 

De tuin is volledig afgesloten met een hekwerk en een groene haag waardoor je veel privacy ervaart. De woning is rondom bereikbaar. Het fietspad grenzend aan de diepe voortuin zorgt ervoor dat je makkelijk overal komt. De bus rijdt bij regelmaat richting Emmen, Assen, Groningen. Kortom, een ideale thuisbasis.

De grote garage annex schuur is ideaal om je auto, fiets of tuingereedschap te stallen. 

Bijzonderheden:
•	Degelijk gebouwde ruime vrijstaande woning met vier slaapkamers en garage
•	Volledig geïsoleerd (1995)
•	Inclusief zonwering, waterbron en robotmaaier
•	Energielabel C

Het dorp:
Schoonoord is gelegen tussen Emmen en Assen en is goed bereikbaar vanaf de provinciale weg. Het dorp is van alle gemakken voorzien zoals een supermarkt, een slager, een bakker, een basisscholen, een bloeiend verenigingsleven, diverse sportverenigingen, een zorgcentrum en maatschappelijke voorzieningen. Het dorp is letterlijk omringd met natuur in de vorm van bossen, heidevelden en diverse zwemplassen. De liefhebber van rust, ruimte en natuur wordt hier zeker blij van.

Oplevering in overleg.

Meer informatie over de woning en de omgeving kun je lezen op de website sportparklaan1.nl.
Zie jij jezelf al wonen nabij de dorpskern van Schoonoord? Bel of mail dan voor een afspraak. We laten je deze woning graag zien.
Proclaimer
Zwanenburg Makelaardij is verantwoordelijk voor de inhoud van deze informatie en doet er alles aan deze actueel en juist te houden. Je kunt ervan uit gaan dat de teksten, kenmerken en maatvoeringen met de grootste zorgvuldigheid zijn opgesteld en berekend. Kom je desondanks toch iets tegen dat niet correct of verouderd is, dan stellen wij je reactie bijzonder op prijs.

Kenmerken