Beschrijving

Oldengaerde 39 Sleen
Praktische woning

In ons prachtige dorp Sleen staat deze goed onderhouden twee-onder-een-kapwoning met vier slaapkamers, een halfopen keuken in hoekopstelling, een ruime woonkamer en genoeg opbergruimte. 

Daarnaast is deze woning gelegen in een jonge buurt in een rustige wijk aan een groene brink met prachtige bomen. Dit kan zomaar de plek zijn om aan een nieuw hoofdstuk van je leven te beginnen.

De woning is in 1989 traditioneel gebouwd en voorzien van vloer-, muur- en dakisolatie en dubbele beglazing. Met drie slaapkamers op de eerste verdieping en een vierde slaapkamer op de tweede verdieping is deze woning zeker geschikt als eengezinswoning of wie graag vrienden of familie laat logeren. Voor ieder wat wils. 

Oprit
Ideaal is dat je tot wel vier auto’s op de ruime oprit kunt parkeren. De woning is op de hoek gelegen, heeft veel privacy en een eigen achterom. De ingang van de woning is voorzien van een overkapping. Zo stap je droog binnen in deze praktische woning.

De indeling van deze woning is als volgt:

Begane grond
Als je binnenkomt in de hal, heb je gelijk links van je het toilet en de meterkast. Rechts is de trap naar boven. Als je rechtdoor loopt kom je binnen in de prachtige ruime woonkamer die doorloopt naar de eetkamer en de keuken. Eén grote leefruimte dus. 

Vanuit de keuken heb je toegang tot de bijkeuken. Deze ruimte is ideaal voor je voorraad eten of je stofzuiger. Met de deur stap je de tuin in. 

Naast de bijkeuken kom je in een ruime berging, gerealiseerd door de garage iets kleiner te maken. Deze ruimte is geïsoleerd en vind je de witgoedaansluitingen. Zo kun je je was prima uit het zicht hangen. Vanuit deze ruimte is een deur naar de garage annex berging en naar de tuin. De garage heeft een kantel-/loopdeur naar de straatzijde. Praktisch is dat je vanaf de straat ook naar de achtertuin kunt lopen.

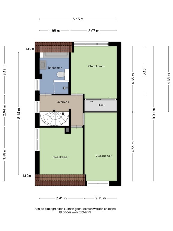
Eerste verdieping
De eerste verdieping begint bij de overloop. Op deze verdieping zijn drie ruime slaapkamers en een praktisch ingerichte badkamer. De badkamer is voorzien van een douche, een toilet, een wastafel en een ligbad.

Op de tweede verdieping is de vierde slaapkamer met een vaste trap bereikbaar en heeft daarnaast extra bergruimte op de overloop.

Extern
De tuin is weliswaar compact maar door de indeling ruim en gezellig ingericht. Ideaal op het hele jaar door te genieten. Met de garage, de overkapping en de oprit is er genoeg plek om te parkeren. 

Energielabel
Het huidige energielabel C is nog geldig maar de woning is inmiddels verduurzaamd. Zo is de woning nu voorzien van 10 zonnepanelen en airconditioning, zijn alle buitendeuren voorzien van dubbel glas en is de bijkeuken aan de binnenkant voorzien van isolatie. 

Bijzonderheden 
-	De woning is voorzien van nieuwe riolering
-	Aan de zijkant en achterkant is met de buren een nieuwe schutting geplaatst 
-	Het dak van de garage is deels vervangen en voorzien van boeien en bitumen
-	Er is een wateraansluiting in de berging en een buitenkraan
-	Op het dak zijn 10 zonnepanelen aangebracht
-	Er is airconditioning aanwezig voor een fijn leefklimaat
-	De bijkeuken is van binnenuit geïsoleerd
-	In de voordeur is dubbel glas geplaatst

Het brinkdorp Sleen biedt een vriendelijke en gezellige omgeving om in te wonen. Naast een supermarkt vind je er ook een warme bakker, een huisartsenpraktijk, een tankstation, een manege, twee basisscholen en diverse (sport)verenigingen.

Oplevering in overleg.

Wil je meer weten over de woning? Kijk dan op de website oldengaerde39.nl.

Omgeving
- De woning is gelegen op korte afstand van winkel- en sportvoorzieningen en twee basisscholen
- Sleen heeft een goede aansluiting naar de N34 en A37 richting Emmen/Hoogeveen
- Het treinstation Nieuw-Amsterdam ligt op korte afstand richting Emmen/Zwolle
- Er zijn wandel-, fiets- en MTB routes in de directe omgeving
- Op fietsafstand ligt Ermerstrand in Erm met een waterskibaan en openluchtzwembad Bosbad in Noord-Sleen

Proclaimer
Zwanenburg Makelaardij is verantwoordelijk voor de inhoud van deze informatie en doet er alles aan deze actueel en juist te houden. Je kunt ervan uitgaan dat de teksten, kenmerken en maatvoeringen met de grootste zorgvuldigheid zijn opgesteld en berekend. Kom je desondanks toch iets tegen dat niet correct of verouderd is, dan stellen wij jouw reactie bijzonder op prijs.

Kenmerken