| Prijs | € 375.000,- k.k. |
| Type object | Woonhuis, eengezinswoning, twee onder een kap woning |
| Perceeloppervlakte | 431 m² |
| Woonoppervlakte | 102 m² |
| Aanvaarding | In overleg |
| Status | Verkocht |
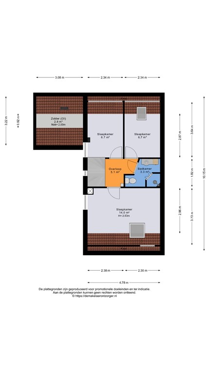
Instapklare helft van een dubbel woonhuis met garage, riant tuinhuis en energielabel C In een kindvriendelijke buurt staat aan de Wiekenas 19 deze goed onderhouden helft van een dubbel woonhuis (bouwjaar 1987). Met een woonoppervlakte van ca. 102 m², een royale zolder, een in 2024 volledig geïsoleerde garage en een sfeervol buitenverblijf (2018), biedt deze woning veel wooncomfort. Dankzij recente verbeteringen – waaronder HR++ beglazing (2024), buitenschilderwerk (2024) en een vernieuwd toilet (2025) – is het huis instapklaar en energiezuinig (label C). Indeling Begane grond • Entree met meterkast (glasvezel aanwezig) • Vernieuwd toilet • Sfeervolle woonkamer met houtkachel en schuifpui naar de tuin • Leefkeuken met diverse inbouwapparatuur • Bijkeuken met wasmachine-/drogeraansluiting en doorgang naar buiten én de garage • Garage (2024): volledig geïsoleerd, gerenoveerd en voorzien van elektrische overheaddeur Eerste verdieping • Overloop • Drie slaapkamers • Badkamer met douche en tweede toilet Tweede verdieping • Royale zolder, in te richten als vierde slaapkamer, werk- of hobbyruimte Buiten De verzorgde tuin biedt veel privacy en beschikt over een ruim buitenverblijf met houtkachel en elektra. Dit buitenverblijf is afsluitbaar met verandazeil, waardoor je er het hele jaar door van kunt genieten. Aan de rechterzijde van de tuin een afdak voor houtopslag. Bijzonderheden • Bouwjaar: 1987 | Woonoppervlakte: ca. 102 m² | Inhoud: ca. 435 m³ • Perceeloppervlakte: 431 m² • Energielabel C • CV-combiketel: 2015 • Glasvezel beschikbaar • Aanvaarding: februari 2026, of eerder in overleg Ligging De woning ligt in een rustige straat met veel gezinnen, op korte afstand van winkels, scholen en sportvoorzieningen. Dankzij de centrale ligging zijn Assen en de A28 snel bereikbaar.
| Referentienummer | 05219 |
| Vraagprijs | € 375.000,- k.k. |
| Inrichting | Niet gestoffeerd |
| Inrichting | Niet gemeubileerd |
| Status | Verkocht |
| Aanvaarding | In overleg |
| Laatste wijziging | Donderdag 30 oktober 2025 |
| Type object | Woonhuis, eengezinswoning, twee onder een kap woning |
| Soort bouw | Bestaande bouw |
| Bouwperiode | 1987 |
| Dakbedekking | Dakpannen |
| Type dak | Zadeldak |
| Isolatievormen | Ankerloze spouwmuren Dakisolatie Grotendeels dubbel glas HR-glas Muurisolatie |
| Perceeloppervlakte | 431 m² |
| Woonoppervlakte | 102 m² |
| Woonkameroppervlakte | 49,43 m² |
| Keukenoppervlakte | 4,91 m² |
| Inhoud | 435 m³ |
| Aantal bouwlagen | 3 |
| Aantal kamers | 5 (waarvan 4 slaapkamers) |
| Aantal badkamers | 1 (en 1 apart toilet) |
| Ligging | Aan rustige weg Beschutte ligging Dichtbij openbaar vervoer In bosrijke omgeving Nabij school Nabij snelweg |
| Type | Achtertuin |
| Hoofdtuin | Ja |
| Oriëntering | Zuid-west |
| Heeft een achterom | Ja |
| Staat | Goed onderhouden |
| Energielabel | C |
| CV ketel | HR++ |
| Warmtebron | Gas |
| Bouwjaar | 2015 |
| Combiketel | Ja |
| Eigendom | Eigendom |
| Aantal parkeerplaatsen | 3 |
| Aantal overdekte parkeerplaatsen | 1 |
| Warm water | CV-ketel |
| Verwarmingssysteem | Centrale verwarming Houtkachel |
| Keukenvoorzieningen | Inbouwapparatuur |
| Badkamervoorzieningen | Douche Toilet Wastafel |
| Parkeergelegenheid | Inpandige garage |
| Heeft kabel-tv | Ja |
| Heeft een rookkanaal | Ja |
| Glasvezelaansluiting aanwezig | Ja |
| Tuin aanwezig | Ja |
| Heeft een garage | Ja |
| Telefoonaansluiting aanwezig | Ja |
| Beschikt over een internetverbinding | Ja |
| Heeft een dakraam | Ja |
| Heeft een schuifpui | Ja |
| Kadastrale aanduiding | Smilde L 1443 |
| Perceeloppervlakte | 337 m² |
| Omvang | Geheel perceel |
| Eigendomsituatie | Eigen grond |
| Kadastrale aanduiding | Smilde L 2557 |
| Perceeloppervlakte | 94 m² |
| Omvang | Geheel perceel |
| Eigendomsituatie | Eigen grond |