| Prijs | € 750.000,- k.k. |
| Type object | Woonhuis, eengezinswoning, vrijstaande woning |
| Perceeloppervlakte | 571 m² |
| Woonoppervlakte | 152 m² |
| Aanvaarding | In overleg |
| Status | Verkocht |
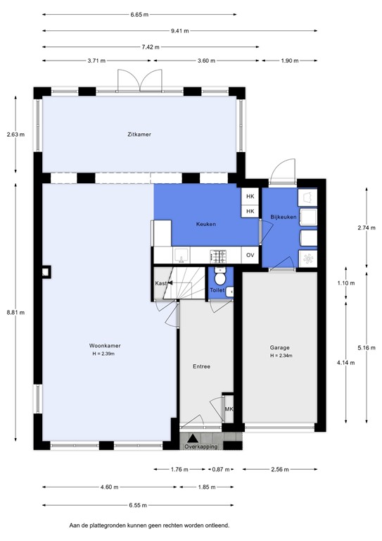
Wat een ruimte, in deze onberispelijk bijgehouden en instapklare vrijstaande woning met garage en mooie grote zonnige tuin! Na de succesvolle verkoop van nummers 48, 46 en 44 (en in het verleden ook al nummer 42), ben ik zeer verheugd dat ik nu opnieuw de verkoop mag begeleiden van 1 van de 5 vrijstaande woningen, die door Ouwehand Bouw uit Katwijk in 1997 aan de Hilsondusstraat in Strijen gebouwd zijn. Ditmaal is het (voor de tweede keer) de beurt aan nummer 42. Het is niet dat mijn opdrachtgevers hier niet prettig wonen, integendeel. Ten tijde van de aankoop bestond het gezin uit 3 personen. En nu 'nummer drie' uitgevlogen is', is het huis wel heel groot geworden, voor met zijn tweeën. Tel daarbij op: 1) de lokroep van de geboortestreek, 2) het feit dat de geboortestreek dichterbij het uitgevlogen kind is, 3) het feit dat de ouders die nog in de geboortestreek wonen ouder worden, 4) er iets bijzonder moois en levensloopbestendigs op het pad (regeren is vooruitzien) kwam! Wanneer je door de straat rijdt, dan valt het niet op, maar wanneer je goed kijkt, dan zie je pas waarin deze woning afwijkt van de andere woningen; Deze woning is (in 2001) op de begane grond maar liefst 3 meter uitgebouwd, daarboven bevindt zich – aansluitend aan de hoofdslaapkamer - een groot en zonnig dakterras. De bruto inhoud is 622 m³, de gebruiksoppervlakte wonen is 152 m², de overige inpandige ruimte 24 m², de gebouwgebonden buitenruimte 26 m² en de externe bergruimte 6 m². De woning is gelegen op een mooi vlak en diep perceel van 571 m² eigen grond, De woning is voorzien van een Energielabel B, dak-, gevel- en vloerisolatie en geheel van dubbele/isolerende beglazing in hardhouten kozijnen. Verwarming en warmwatervoorziening geschiedt d.m.v. een Vaillant EcotecHR combiketel uit 2024 en in de keuken is er een Quooker aanwezig. Er valt ook nog wel het een en ander te vertellen over de prachtige en zeer gewilde locatie: De woning is zeer rustig gelegen aan een ventweg, parallel lopend aan de Hilsondusstraat, de heerlijk brede en groene hoofdstraat van de rustige, kindvriendelijke en zeer prettig leefbare woonwijk 'Land van Essche'-2. Aan de achterzijde bevinden zich geen woningen en is er uitzicht over de mooie vlakke kleipolder "Land van Essche". De overbuurpanden bevinden zich op meer dan 40 meter afstand, hier ervaart u vrijheid! De prachtig aangelegde, zeer verzorgde en groene tuin ligt op het zuidoosten en in de tuin is een 'op het zuidwesten gerichte' overkapping geplaatst, die er voor zorgt dat je het ontbijt kan nuttigen in de schaduw en later op de dag kunt genieten van het zonnetje. Aan voorzijde is er aan linker- en rechterzijde gelegenheid om te parkeren op eigen erf (en in de garage) en aan linkerzijde naast de woning is een houten fietsenberging geplaatst. De indeling is als volgt: hal met toilet, meterkast, trapopgang en toegang tot de grote fraaie L-vormige living van 60 m², bestaande uit de oorspronkelijke doorzonwoonkamer, de uitbouw/tuinkamer (met openslaande tuindeuren en aan 3 zijden ramen, waardoor de lichtinval uitzonderlijk groot is) en de ruime eetkeuken met in 2022 geplaatste luxe inbouwkeuken v.v. inbouwapparatuur en natuurstenen aanrechtblad. Vanuit de keuken is er toegang tot de bijkeuken (met aansluitingen en afvoeren t.b.v. de wasapparatuur en een loopdeur naar de tuin en naar de inpandige garage). De indeling van de verdieping – die vanwege de dwarskapconstructie en de ruimte boven de garage aanzienlijk groter is dan verwacht - is als volgt: royale overloop, mooie ouderslaapkamer met vaste kast en openslaande deuren naar het dakterras, prima tweede slaapkamer met vaste kasten, leuke derde en vierde slaapkamer en luxe en strakke – in 2019 vernieuwde – badkamer met dakkapel, inloopdouche, designradiator, tweede toilet en badkamermeubel met wastafel. Boven de slaapetage bevindt zich een bevloerde bergzolder met onder meer de c.v.-ketel. Met serieuze gegadigden maken we gaarne een afspraak voor een vrijblijvende bezichtiging van dit exclusieve en smaakvol afgewerkte woonhuis. We zijn 6 dagen per week van 8 uur 's morgens tot 10 uur s avonds telefonisch bereikbaar als u een afspraak wilt maken voor een bezichtiging. Bezichtigingen zijn eveneens 6 dagen per week mogelijk.
| Referentienummer | 07088 |
| Vraagprijs | € 750.000,- k.k. |
| Inrichting | Niet gestoffeerd |
| Inrichting | Niet gemeubileerd |
| Status | Verkocht |
| Aanvaarding | In overleg |
| Laatste wijziging | Woensdag 17 december 2025 |
| Type object | Woonhuis, eengezinswoning, vrijstaande woning |
| Soort bouw | Bestaande bouw |
| Bouwperiode | 1997 |
| Dakbedekking | Dakpannen |
| Type dak | Dwarskap |
| Isolatievormen | Dakisolatie Dubbel glas HR-glas Muurisolatie Vloerisolatie Volledig geïsoleerd |
| Perceeloppervlakte | 571 m² |
| Woonoppervlakte | 152 m² |
| Inhoud | 662 m³ |
| Oppervlakte overige inpandige ruimten | 24 m² |
| Oppervlakte externe bergruimte | 6 m² |
| Oppervlakte gebouwgebonden buitenruimte | 25 m² |
| Aantal bouwlagen | 3 |
| Aantal kamers | 6 (waarvan 4 slaapkamers) |
| Aantal badkamers | 1 (en 1 apart toilet) |
| Ligging | Aan rustige weg In woonwijk Nabij school Open ligging Vrij uitzicht |
| Type | Tuin rondom |
| Oriëntering | Zuidoost |
| Heeft een achterom | Ja |
| Staat | Prachtig aangelegd |
| Energielabel | B |
| CV ketel | Vaillant Eco-Tec Plus 2532-CW4 |
| Warmtebron | Gas |
| Bouwjaar | 2024 |
| Combiketel | Ja |
| Eigendom | Eigendom |
| Aantal parkeerplaatsen | 3 |
| Aantal overdekte parkeerplaatsen | 1 |
| Warm water | CV-ketel |
| Verwarmingssysteem | Centrale verwarming |
| Ventilatie methode | Mechanische ventilatie |
| Keukenvoorzieningen | Inbouwapparatuur |
| Badkamervoorzieningen | Inloopdouche Toilet Wastafel Wastafelmeubel |
| Parkeergelegenheid | Inpandige garage |
| Tuin aanwezig | Ja |
| Heeft een garage | Ja |
| Heeft schuur/berging | Ja |
| Heeft ventilatie | Ja |
| Kadastrale aanduiding | Strijen V 580 |
| Perceeloppervlakte | 441 m² |
| Omvang | Geheel perceel |
| Eigendomsituatie | Eigen grond |
| Kadastrale aanduiding | Strijen V 892 |
| Perceeloppervlakte | 130 m² |
| Omvang | Geheel perceel |
| Eigendomsituatie | Eigen grond |