| Prijs | € 635.000,- k.k. |
| Type object | Woonhuis, eengezinswoning, half vrijstaande woning, dijkwoning |
| Perceeloppervlakte | 550 m² |
| Woonoppervlakte | 125 m² |
| Aanvaarding | In overleg |
| Status | Onder bod |
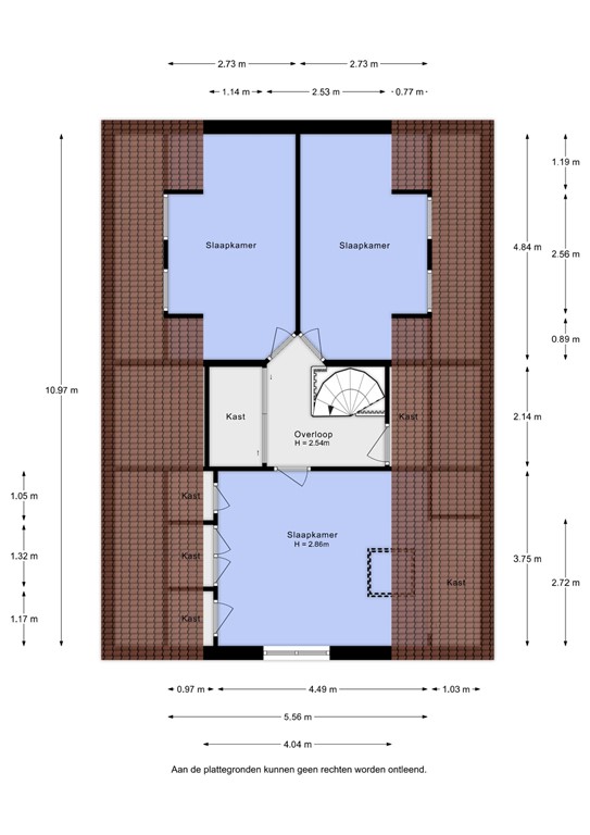
Alle beschikbare plaatsen in de agenda staan volgeboekt. Graag alleen nog reacties per e-mail! Over wanneer je handen jeuken en er niets meer toe doen is op nummer 23 Wie de moeite neemt om langs al die prachtige foto's te scrollen, die vindt aan het einde ervan een paar prachtige sfeerbeelden met sneeuw en ijs, uit de privécollectie van de eigenaar. Het is er 365 dagen per jaar fantastisch wonen. Aan de achterzijde van deze woning kunt u elke dag genieten van de zonsopkomst en aan de voorzijde van de zonsondergang. Aan de achterzijde heeft u kilometers ver vrij uitzicht over de landerijen van het Nationale Landschap Hoeksche Waard. Aan de voorzijde ligt de Strijense Haven. De tuin is zodanig dat er altijd een plekje in de zon en een plekje beschut te vinden is, voor elk wat wils. Voor elk wat wils is sowieso een slogan die uitstekend past bij dit geweldige 'complex', bestaande uit een in uitstekende staat verkerend heerlijk ruim huis met 125 m² gebruiksoppervlakte wonen (447 m³ bruto inhoud), een grote vlakke tuin (totale perceelgrootte ca. 550 m², een fijne geïsoleerde schuur van 50 m², een carport en een echte en gave Oostenrijkse Bierstube met buitenkeuken. Wanneer je hier komt wonen, dan neemt het aantal vrienden vast snel (nog verder) toe!! Er is zelfs een zwembadje in de tuin! De tuin is afgescheiden met een hek en een elektrische poort, waardoor de honden netjes en veilig op het eigen terrein blijven. En aansluitend aan de eigen grond wordt nog een stuk dijkweiland gehuurd van de boer, die er schuin achter woont. De boer staat niet onwelwillend tegenover het opnieuw verhuren, de koper zal dat t.z.t. met de achterbuurman moeten bespreken. De eerste en logische vraag die dan bij vrijwel iedereen op zal komen is de navolgende: 'waarom ga je in hemelsnaam weg hier'? Nou, dat zal ik u haarfijn uitleggen... natuurlijk is het met pijn in het hart, want de verkopers hebben ziel en zaligheid in het 'binnen- en buitengebeuren gestoken, maar wanneer er verderop aan de dijk een mooi groot vrijstaand woonhuis, met alles net wat meer - en ook nog eens een ligging aan het water - geruime tijd te koop staat en je er meerdere malen per dag langsrijdt en het gras steeds hoger groeit, dan gaan de handen steeds meer jeuken, 'to the point of no return', dat beide verkopers het er volledig over eens waren... we zetten de stap. Even terugkomend op nummer 23, want dat is per slot van rekening ook de woning waar het hier om gaat! Het is inmiddels alweer een jaar of 25 geleden, dat ik een klein eenvoudig dijkhuisje aan de Kooilandsedijk 23 mocht verkopen aan deze mensen. Inmiddels is er behalve de toplocatie niets meer van te herkennen. De woning is inmiddels 2 x vergroot d.m.v. een uitbouw 'in de breedte' en '1 x naar achteren', de vloer is van beton en voorzien van vloerverwarming, het dak is nieuw, alles is geïsoleerd, er is een Energielabel A, airco, een lading zonnepanelen en een luxe badkamer en keuken. De indeling is als volgt: entree, hal met garderobe en toegang tot de speelse en zeer royale living van circa 50 m², bestaande uit de grote woonkamer met meterkast en trapopgang en de royale open woonkeuken met complete inbouwkeuken en kook-/spoeleiland met eetbar. Vanuit de woonkamer is er toegang tot het toilet en een binnenhal met toegang tot de gave badkamer (395 x 198) en de wasruimte/ bijkeuken (met de aansluitingen en afvoeren t.b.v. de wasapparatuur en) met toegang tot de c.v.-ruimte met HR excellent ketel. Op de verdieping is de indeling als volgt: royale overloop met inloopkast, grote ouderslaapkamer (449 x 397 exclusief inbouwkasten) en prima tweede en derde slaapkamer (464 x 273 elk, beide voorzien van een dakkapel). We kunnen er nog veel meer over vertellen, maar dat komt vanzelf bij de bezichtiging. Wacht niet te lang met reageren, het aantal reacties op de socials was beduidend hoger dan gebruikelijk. Vol is vol.
| Referentienummer | 07100 |
| Vraagprijs | € 635.000,- k.k. |
| Inrichting | Niet gestoffeerd |
| Inrichting | Niet gemeubileerd |
| Status | Onder bod |
| Aanvaarding | In overleg |
| Laatste wijziging | Zaterdag 7 februari 2026 |
| Type object | Woonhuis, eengezinswoning, half vrijstaande woning, dijkwoning |
| Soort bouw | Bestaande bouw |
| Bouwperiode | 1922 |
| Dakbedekking | Dakpannen |
| Type dak | Zadeldak |
| Keurmerken | Energie prestatie advies |
| Isolatievormen | Dakisolatie Dubbel glas HR-glas Muurisolatie Vloerisolatie Volledig geïsoleerd |
| Perceeloppervlakte | 550 m² |
| Woonoppervlakte | 125 m² |
| Inhoud | 447 m³ |
| Oppervlakte externe bergruimte | 50 m² |
| Oppervlakte gebouwgebonden buitenruimte | 17 m² |
| Aantal bouwlagen | 2 |
| Aantal kamers | 4 (waarvan 3 slaapkamers) |
| Aantal badkamers | 1 (en 1 apart toilet) |
| Ligging | Aan rustige weg Beschutte ligging Dichtbij openbaar vervoer Nabij snelweg Open ligging Platteland Vrij uitzicht |
| Type | Tuin rondom |
| Oriëntering | Zuiden |
| Staat | Goed onderhouden |
| Energielabel | A |
| CV ketel | Nefit Ecomline HR |
| Warmtebron | Gas |
| Bouwjaar | 2022 |
| Combiketel | Ja |
| Eigendom | Eigendom |
| Aantal parkeerplaatsen | 6 |
| Aantal overdekte parkeerplaatsen | 2 |
| Warm water | CV-ketel |
| Verwarmingssysteem | Centrale verwarming Vloerverwarming |
| Badkamervoorzieningen | Dubbele wastafel Inloopdouche |
| Parkeergelegenheid | Vrijstaande houten garage |
| Tuin aanwezig | Ja |
| Heeft een garage | Ja |
| Heeft schuur/berging | Ja |
| Heeft zonnepanelen | Ja |
| Kadastrale aanduiding | Strijen V 207 |
| Perceeloppervlakte | 405 m² |
| Omvang | Geheel perceel |
| Eigendomsituatie | Eigen grond |