Beschrijving
Deze ruime en uitgebouwde hoekwoning is gelegen in de geliefde wijk De Kleis in Uitgeest. Een rustige, groene en kindvriendelijke woonomgeving aan de zuidwestzijde van het spoor, waar comfort, ruimte en bereikbaarheid samenkomen. De wijk is ruim opgezet met brede trottoirs, veel groen en een doordachte indeling van de woonblokken. Verkeersremmende maatregelen zorgen ervoor dat het hier veilig en prettig wonen is voor zowel kinderen als volwassenen.
Alle dagelijkse voorzieningen bevinden zich in de directe omgeving. Kinderopvang, basisscholen, sportfaciliteiten en een supermarkt zijn te vinden in en rondom woonplan De Kleis. Ook de centra van Uitgeest en Heemskerk zijn eenvoudig bereikbaar. Het NS-station ligt op slechts vijf minuten loopafstand en biedt uitstekende verbindingen richting Alkmaar, Amsterdam en Haarlem. Met de auto bereikt u snel de A9, waardoor ook omliggende steden goed bereikbaar zijn.
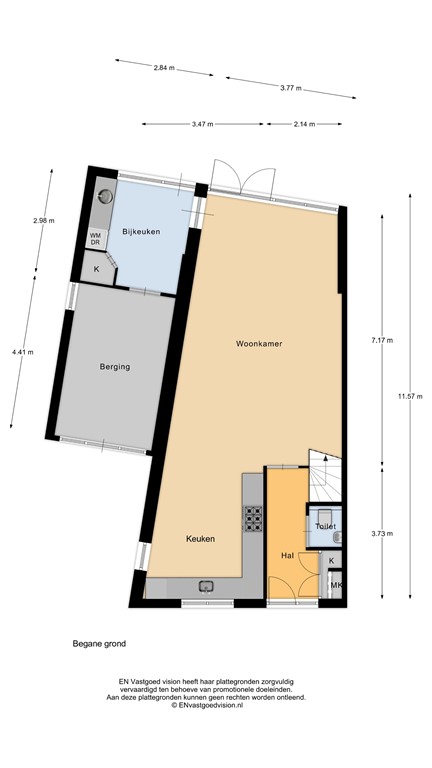
Bij binnenkomst ervaart u direct de prettige sfeer van de lichte en strak afgewerkte woonkamer. De woning is praktisch ingedeeld met de keuken aan de voorzijde en de zithoek aan de achterzijde. Hierdoor is er veel daglicht en optimaal contact met de achtertuin. Via de openslaande deuren loopt u zo naar buiten.
De keuken is uitgevoerd in een hoekopstelling en voorzien van diverse inbouwapparatuur, wat zorgt voor comfort en gebruiksgemak in het dagelijks leven.
Een bijzonder pluspunt van deze woning is de zijuitbouw met inpandig bereikbare bijkeuken. Deze multifunctionele ruimte is voorzien van een extra keukenblok, aansluitingen voor wasmachine en wasdroger en biedt directe toegang tot de achtertuin. De bijkeuken geeft ook directe toegang tot de schuur.
De achtertuin is verzorgd aangelegd met een combinatie van bestrating en beplanting. Dankzij de aanwezige overkapping kunt u hier het hele jaar door genieten van het buitenleven, ongeacht het seizoen.
Op de eerste verdieping bevinden zich drie goed bemeten slaapkamers en een complete badkamer. De badkamer is uitgerust met een douche, toilet en twee wastafels.
Via een vaste trap bereikt u de tweede verdieping. Hier bevindt zich een ruime vierde slaapkamer met dakkapel en praktische inbouwkasten, wat zorgt voor extra lichtinval en veel bergruimte. Deze verdieping is ook uitstekend geschikt als werk- of hobbyruimte.
Kortom, een comfortabele en goed onderhouden hoekwoning met uitbouw, vier slaapkamers en een fijne tuin, gelegen in een rustige en kindvriendelijke wijk met uitstekende voorzieningen en een gunstige ligging ten opzichte van openbaar vervoer, uitvalswegen en natuur.
Bijzonderheden
• Energielabel C
• Woonoppervlakte circa 120 m²
• Inhoud circa 455 m³
• Hoekwoning met zijuitbouw
• Eigen parkeerplaats bij de woning
• Vier slaapkamers
• Kindvriendelijke woonomgeving
• Praktische inpandig bereikbare bijkeuken
Plattegronden
179481523_waterdief_27_u_tuin_20251120_999534.jpg
179481523_waterdief_27_u_begane_grond_20251120_97e6f8.jpg
179481523_waterdief_27_u_1e_verdieping_20251120_b82928.jpg
179481523_waterdief_27_u_2e_verdieping_20251120_9e5a5a.jpg